Найти в Дзене
Инженер ПГС

Беседка. Проектирование...

Беседка — это разновидность легкого крытого садово-паркового сооружения без сплошных стен, предназначенного для отдыха и защиты от солнца и осадков (п. 3.4.10 разд. 3 ГОСТ Р 56891.3-2016, утв. Приказом Росстандарта от 10.03.2016 N 136-ст). Исходные данные от Заказчика: Предварительный проектный материал для согласования с Заказчиком: Внесение изменений в проектный материал (№1): Внесение изменений в проектный материал (№2): Внесение изменений в проектный материал (№3): Итоговый проектный материал (фрагменты отдельных чертежей): Данный проектный материал сформирован в объеме: Эскизный проект как стадия проектирования, определяющая предварительные планировочные, объемно - пространственные параметры и архитектурно-художественные решения объекта проектирования. На этой стадии определилось визуальное оформление основной идеи проекта и продумывание общих концептуальных решений по всем задачам, которым должен отвечать данный проект. Проектирование фундамента – комплекс мер, направленные на

Беседка — это разновидность легкого крытого садово-паркового сооружения без сплошных стен, предназначенного для отдыха и защиты от солнца и осадков (п. 3.4.10 разд. 3 ГОСТ Р 56891.3-2016, утв. Приказом Росстандарта от 10.03.2016 N 136-ст).

Исходные данные от Заказчика:

Предварительный проектный материал для согласования с Заказчиком:

Внесение изменений в проектный материал (№1):

Внесение изменений в проектный материал (№2):

Внесение изменений в проектный материал (№3):

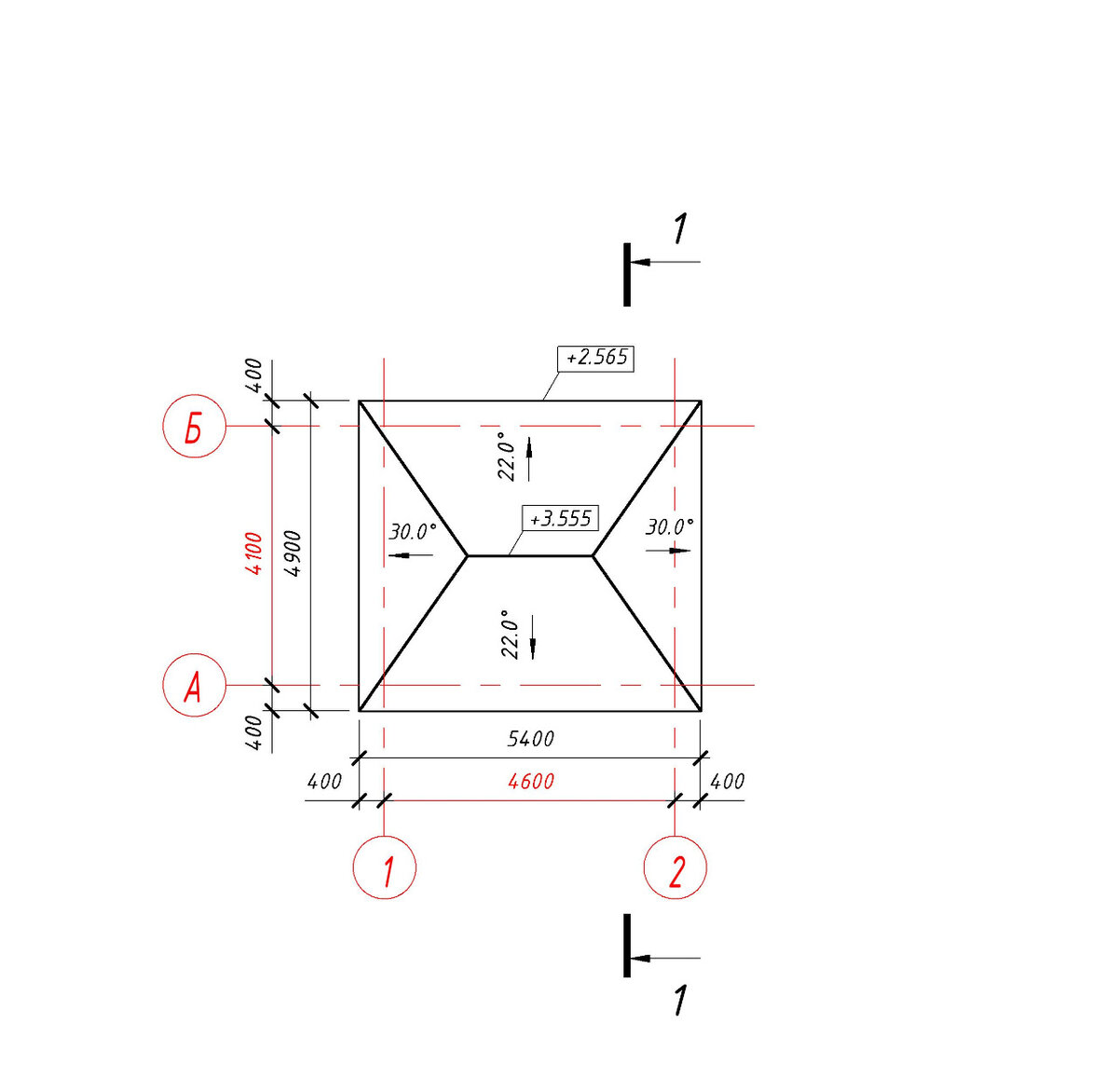
Итоговый проектный материал (фрагменты отдельных чертежей):

Данный проектный материал сформирован в объеме:

Эскизный проект как стадия проектирования, определяющая предварительные планировочные, объемно - пространственные параметры и архитектурно-художественные решения объекта проектирования. На этой стадии определилось визуальное оформление основной идеи проекта и продумывание общих концептуальных решений по всем задачам, которым должен отвечать данный проект.

Проектирование фундамента – комплекс мер, направленные на изучение геологических характеристик стройплощадки (глубина залегания подземных вод, сезонные трансформации почвы, химический состав грунта и т.д.), изучение плана будущего сооружения, расчёт предполагаемых нагрузок, оптимизация размеров фундаментного основания в соответствии с усадкой, осуществление проверочных расчетов и изготовлению необходимых чертежей (с учетом Изм.1, Изм.2, Изм.3).

Проектирование кровли - не состоялось...

Далее своими словами себе было сказано:

Желаю себе невероятного везения и неиссякаемого источника вдохновения! Пусть моя муза никогда меня не покидает! Желаю себе несметных сокровищ, уникальных возможностей, финансового благополучия, душевного равновесия... Да в первую очередь здоровья, отсутствия неудач и прочего жизненного негатива! Сил и желания справляться с невзгодами! Будут силы и здоровье, будут свежие идеи — будет и все остальное!

Уважаемая аудитория Заказчиков!

У Вас есть вопросы по проектированию - задавайте их прямо в комментариях!

С уважением, руководитель проектов, Виталий Дельдекин!