Добавить в корзинуПозвонить
Найти в Дзене

Ремонт для холостяка в одной из старых квартир Москвы: ДО и ПОСЛЕ

Квартира в доме 1957 года постройки сразу же после покупки начала причинять неудобства своему новому владельцу. Стены отлично проводили звук, через крышу отлично проходила дождевая вода. Выхода было два — или перепродать жильё тут же, или сделать ремонт. Владелец выбрал второй вариант, и не ошибся. Теперь в квартире действительно комфортно жить. Прочитайте статью, и узнайте, как удалось достигнуть такого результата. Не забывайте ставить лайки ❤️ и подписываться — ваша поддержка помогает развитию канала и улучшению качества контента. Чтобы квартира была не только стильной, но и удобной, важно продумать весь интерьер до мелочей. В этом вам поможет бесплатный концепт дизайна. Его можно получить тут: 👉получить👈. Квартира ДО ремонта Пока ремонт не был сделан, в квартире было довольно жутко находиться. Посмотрите только на прихожую — напоминает коммуналку, не правда ли? О том, как выглядят настоящие коммуналки в центре Петербурга, вы можете узнать из этой статьи. На кухне ситуация не отлич
Оглавление

Квартира в доме 1957 года постройки сразу же после покупки начала причинять неудобства своему новому владельцу. Стены отлично проводили звук, через крышу отлично проходила дождевая вода. Выхода было два — или перепродать жильё тут же, или сделать ремонт. Владелец выбрал второй вариант, и не ошибся. Теперь в квартире действительно комфортно жить. Прочитайте статью, и узнайте, как удалось достигнуть такого результата.

Не забывайте ставить лайки ❤️ и подписываться — ваша поддержка помогает развитию канала и улучшению качества контента.

Чтобы квартира была не только стильной, но и удобной, важно продумать весь интерьер до мелочей. В этом вам поможет бесплатный концепт дизайна. Его можно получить тут: 👉получить👈.

Квартира ДО ремонта

Пока ремонт не был сделан, в квартире было довольно жутко находиться. Посмотрите только на прихожую — напоминает коммуналку, не правда ли?

О том, как выглядят настоящие коммуналки в центре Петербурга, вы можете узнать из этой статьи.

-2

На кухне ситуация не отличалась в лучшую сторону. Плитка местами начинала отваливаться, а коммуникации неэстетично торчали из стен.

-3

В ванной был сделан более современный ремонт, но его качество было далеко не самым высоким.

-4

Квартира ПОСЛЕ ремонта

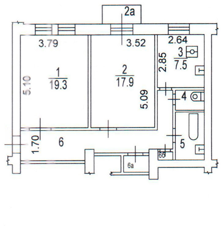
Первым шагом стала серьёзная перепланировка. Изменения вы можете видеть на этом плане:

-5

Согласовывать переделку было сложно, но в конце концов, это удалось сделать. О трудностях согласования перепланировок я писала тут.

Из гостиной, коридора и кухни создали единое пространство. Это нивелировало главный недостаток жилища — нехватку места.

-6

> > >НАЖМИТЕ ЗДЕСЬ< < <

-7

В спальне удалось выделить место под встроенные шкафы, а пространство в ванной получилось увеличить за счёт объединения с туалетом.

-8
-9

В прихожей поставили большой шкаф, и украсили помещение картиной.

-10

А на балконе заменили стандартное остекление на панорамное, что позволило получать гораздо больше естественного света в помещении.

-11

Впечатлила ли вас эта переделка? Делитесь эмоциями в комментариях 👇👇👇 — открытая дискуссия позволяет мне лучше понять интересы читателей.

-12

DOMEO - бренд №1 в России по ремонту и дизайну. Уже 11 лет профессионалы DOMEO делают качественный ремонт и дизайн по фиксированным ценам. Все прорабы сертифицированы Knauf, а все дизайнеры — выпускники МАРХИ и БВШД!

Качественно сделать ремонт самому — не только сложно, но и дорого. Предлагаю просто посчитать, во сколько обойдётся вам профессиональный ремонт: 👉ссылка👈. Кстати, сервис бесплатный, а внесение данных занимает всего 30 секунд.

Больше интересного о ремонтах читайте тут: Невероятное превращение ванной в старинном доме.