Найти в Дзене
Журнал PR FLAT

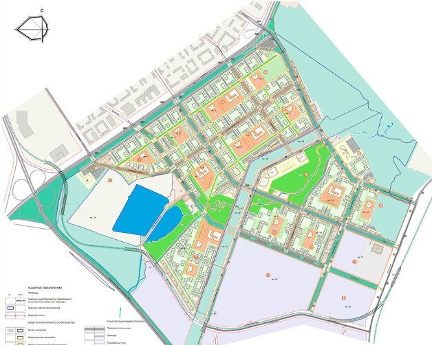
Екатеринбург. Финально утверждён проект застройки второго Академического

«Академический-2» появится на участке в границах улицы Лучистой, Полевского тракта и ЕКАД. Первые дома начнут строить от перекрёстка ул. Лучистой и ул. Чемпионов. Масштабный проект напротив микрорайона Солнечный в южном направлении займёт 493,2 га территории. В первом квартале второго Академического запроектировано 176,2 тыс. кв. м жилья и детский сад на 350 малышей. Весь микрорайон будет включать 13 кварталов на 1,93 млн кв. м жилья, рассчитанных на 64,3 тыс. новосёлов. Среди инфраструктуры: 11 детских садов, 5 школ, паркинги и парковочные площадки на 11 200 машино-мест, спорткомплекс, школа искусств, больницы и поликлиники, станция скорой помощи, пожарное депо, а также парковые зоны, складские и производственные комплексы. Этот район с центром Екатеринбурга свяжут трамвайные и автобусные маршруты, появится наземное метро. Новости недвижимости

«Академический-2» появится на участке в границах улицы Лучистой, Полевского тракта и ЕКАД. Первые дома начнут строить от перекрёстка ул. Лучистой и ул. Чемпионов.

Финально утверждён проект застройки второго Академического
Финально утверждён проект застройки второго Академического

Масштабный проект напротив микрорайона Солнечный в южном направлении займёт 493,2 га территории.

В первом квартале второго Академического запроектировано 176,2 тыс. кв. м жилья и детский сад на 350 малышей.

Весь микрорайон будет включать 13 кварталов на 1,93 млн кв. м жилья, рассчитанных на 64,3 тыс. новосёлов. Среди инфраструктуры: 11 детских садов, 5 школ, паркинги и парковочные площадки на 11 200 машино-мест, спорткомплекс, школа искусств, больницы и поликлиники, станция скорой помощи, пожарное депо, а также парковые зоны, складские и производственные комплексы.

Этот район с центром Екатеринбурга свяжут трамвайные и автобусные маршруты, появится наземное метро.

Новости недвижимости