Найти в Дзене

Современный дизайн двухкомнатной квартиры

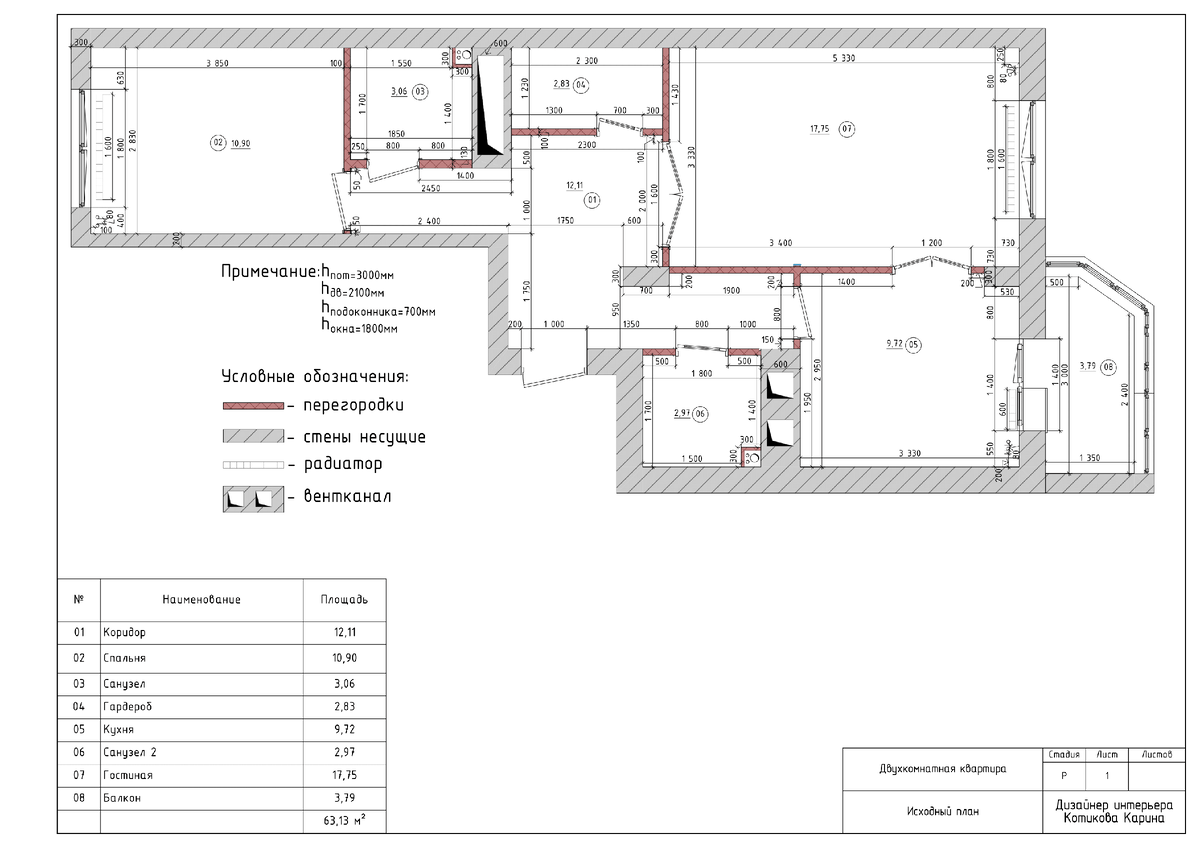
Молодая пара с ребенком приобрели двухкомнатную квартиру площадью 63,14 м2, главными запросами по дизайну были отдельная комната ребенку, совмещенная кухня-гостиная и мастер-спальня. Изначально план помещения выглядел так: Для создания комфорта всем членам семьи я предложила следующую планировкусо всеми пожеланиями: Из пожеланий по стилю и цветовой палитре – современный стиль, бежевые оттенки. Начнем с прихожей, которую заказчики хотели максимально полезно использовать. В решении этой задачи помог встроенный гардеробный шкаф до потолка в цвет стен. Далее перемещаемся в кухню-гостиную. Кухонный гарнитур включает в себя модули с духовым шкафом, электрической панелью, мойкой и посудомоечной машинкой. Также здесь разместился встроенный холодильник и обеденная зона. За счет светлых тонов кухню-гостиную удалось сделать визуальног просторной и стильной. Спальня родителей с комодом и шкафом для хранения вещей. Также, я решила сделать для молодой пары "собственный санузел", который расположе

Молодая пара с ребенком приобрели двухкомнатную квартиру площадью 63,14 м2, главными запросами по дизайну были отдельная комната ребенку, совмещенная кухня-гостиная и мастер-спальня.

Изначально план помещения выглядел так:

-2

Для создания комфорта всем членам семьи я предложила следующую планировкусо всеми пожеланиями:

-3

Из пожеланий по стилю и цветовой палитре – современный стиль, бежевые оттенки.

Начнем с прихожей, которую заказчики хотели максимально полезно использовать. В решении этой задачи помог встроенный гардеробный шкаф до потолка в цвет стен.

Далее перемещаемся в кухню-гостиную. Кухонный гарнитур включает в себя модули с духовым шкафом, электрической панелью, мойкой и посудомоечной машинкой. Также здесь разместился встроенный холодильник и обеденная зона. За счет светлых тонов кухню-гостиную удалось сделать визуальног просторной и стильной.

Спальня родителей с комодом и шкафом для хранения вещей. Также, я решила сделать для молодой пары "собственный санузел", который расположен в их комнате.

В комнате для сына я разместила односпальную кровать, рабочий стол со шкафом и полками для учебных принадлежностей, а также гардеробный шкаф.

Второй санузел стал санузлом для ребенка и гостевым, что очень удобно для всех членов семьи.

Если Вы тоже планируете ремонт в своей квартире и хотите грамотно распланировать хранение вещей, обращайтесь по номеру телефона +375447372704 Беларусь.