Добавить в корзинуПозвонить
Найти в Дзене
Лесстрой Портал

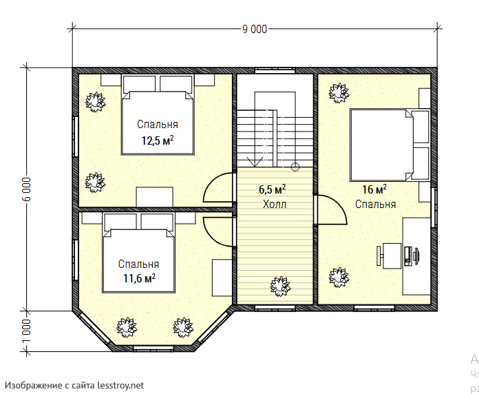
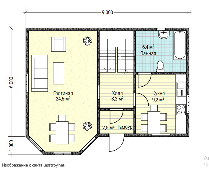
Жилой дом "Шуваловский" от 2 950 000 рублей

Двухэтажный дом площадью застройки 6х9м, общей площадью 100м2 и стоимостью от 2 950 000 рублей. От нашего подрядчика Интекс Строй Ссылка на проект: https://lesstroy.net/user/40588/project/83821/ Комплектации дома под ключ каркас 150мм Фундамент: ЖБ сваи (150х150х3000мм)
Несущие стены: Строганная доска 150x50 камерной сушки
Наружная отделка: Имитация бруса -AB класса!
Внутренняя отделка: Потолок евровагонка,пол - Quick Deck 16мм, стены - имитация бруса!
Утепление: RockWool(плита), 150мм
Окна: ПВХ двухкамерные, Veka
Входная дверь: Металлическая
Кровельное покрытие: Металлочерепица 0,45мм
Проживание бригады: Бытовка 2х3м
Доставка: Входит в стоимость до 500км
Комплектации дома под ключ брус 150мм Фундамент: ЖБ сваи (150х150х3000мм)
Несущие стены: Профилированный брус 140х140мм камерной сушки
Наружная отделка: Имитация бруса -AB класса!
Внутренняя отделка: Потолок евровагонка,пол - Quick Deck 16мм
Утепление: RockWool(плита), 150мм
Окна: ПВХ двухкамерные, Veka
Входная дверь: Металлическая
К

Двухэтажный дом площадью застройки 6х9м, общей площадью 100м2 и стоимостью от 2 950 000 рублей. От нашего подрядчика Интекс Строй

Ссылка на проект: https://lesstroy.net/user/40588/project/83821/

Описание проекта

Комплектации дома под ключ каркас 150мм

Фундамент: ЖБ сваи (150х150х3000мм)
Несущие стены: Строганная доска 150x50 камерной сушки
Наружная отделка: Имитация бруса -AB класса!
Внутренняя отделка: Потолок евровагонка,пол - Quick Deck 16мм, стены - имитация бруса!
Утепление: RockWool(плита), 150мм
Окна: ПВХ двухкамерные, Veka
Входная дверь: Металлическая
Кровельное покрытие: Металлочерепица 0,45мм
Проживание бригады: Бытовка 2х3м
Доставка: Входит в стоимость до 500км

Комплектации дома под ключ брус 150мм

Фундамент: ЖБ сваи (150х150х3000мм)
Несущие стены: Профилированный брус 140х140мм камерной сушки
Наружная отделка: Имитация бруса -AB класса!
Внутренняя отделка: Потолок евровагонка,пол - Quick Deck 16мм
Утепление: RockWool(плита), 150мм
Окна: ПВХ двухкамерные, Veka
Входная дверь: Металлическая
Кровельное покрытие: Металлочерепица 0,45мм
Проживание бригады: Бытовка 2х3м
Доставка: Входит в стоимость до 500км