Найти в Дзене

Проект двухэтажного дома «Мельник» | Строительство домов в Москве и Тюмени

Общая площадь дома — 196,7 м², включая террасы площадью 29,1 м². Этот проект сочетает удобство, стиль и эргономику, создавая уютное пространство для жизни и отдыха. Проект «Мельник» создан для тех, кто ценит комфорт. Просторные комнаты, функциональное зонирование и уютные террасы делают его идеальным местом для жизни. В каталоге компании «Веванта» широкий выбор типовых проектов. Благодаря чему каждый сможет найти что-то для себя. Каталог проектов в Тюмени Каталог проектов в Москве Также подписывайтесь на соцсети, чтобы быть в курсе наших акций и новостей! Наш канал в Telegram Мы в «ВКонтакте» Наш YouTube-канал
Оглавление

Общая площадь дома — 196,7 м², включая террасы площадью 29,1 м². Этот проект сочетает удобство, стиль и эргономику, создавая уютное пространство для жизни и отдыха.

Преимущества проекта:

  1. Просторная кухня-гостиная-столовая
  2. Три спальни, включая мастер-спальню с гардеробной
  3. Два санузла
  4. Просторные террасы 18,27 м² и 9,36 м²

Планировка дома:

Первый этаж:

  • Кухня-гостиная-столовая – 40,76 м²
  • Кабинет – 12,29 м²
  • Санузел – 5,90 м²
  • Котельная – 6,35 м²
  • Холл – 13,95 м²
  • Входная зона – 9,67 м²
  • Крыльцо – 9,36 м²

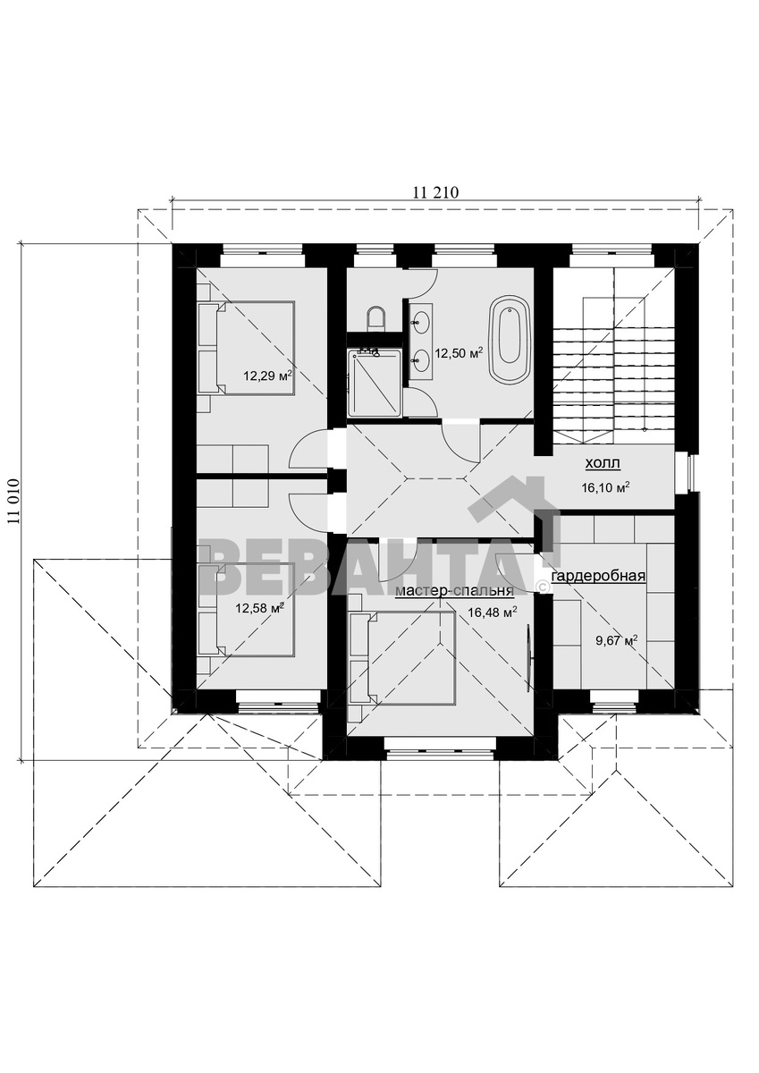
Второй этаж:

  • Спальня 1 – 12,29 м²
  • Спальня 2 – 12,58 м²
  • Мастер-спальня с гардеробной – 16,48 м² + 9,67 м²
  • Ванная комната – 12,50 м²
  • Холл – 16,10 м²

Проект «Мельник» создан для тех, кто ценит комфорт. Просторные комнаты, функциональное зонирование и уютные террасы делают его идеальным местом для жизни.

Ищете другой проект, который вас зацепит?

В каталоге компании «Веванта» широкий выбор типовых проектов. Благодаря чему каждый сможет найти что-то для себя.

Каталог проектов в Тюмени
Каталог проектов в Москве

Также подписывайтесь на соцсети, чтобы быть в курсе наших акций и новостей!

Наш канал в Telegram
Мы в «ВКонтакте»
Наш YouTube-канал