Добавить в корзинуПозвонить
Найти в Дзене
SGHouse

Новая серия проектов в стиле хай-тек

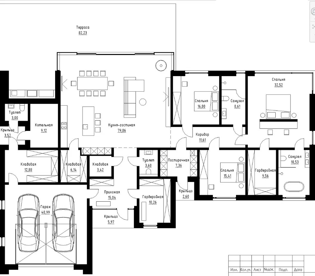
У нас хорошие новости: мы запускаем новую серию проектов в стиле хай-тек. Команда SGhouse подготовила проекты просторных, светлых и домов со строгими линиями и контрастной отделкой. Уникальность серии – контрастный дизайн, панорамное остекление, возможность адаптации под особенности земельного участка и запросы клиента. Проекты рассчитаны на дома площадью 150 м2 с одним – двумя этажами и парковкой, террасами и чётким разграничением зон. Возможно строительство в Москве, МО, Санкт-Петербурге и Ленобласти. Уникальные проекты с просторными домами и аккуратной ландшафтной зоной из экологичных материалов – мечта каждого домовладельца. Хотите узнать больше? Звоните по номеру +79219626627, обсудим детали #sg_house_типовые_проекты #строительныепроекты

У нас хорошие новости: мы запускаем новую серию проектов в стиле хай-тек. Команда SGhouse подготовила проекты просторных, светлых и домов со строгими линиями и контрастной отделкой.

  • Новые дома выполнены из монолитного каркаса с кирпичным или газобетонным заполнением.
  • Для утепления фасада используем тепловату Технониколь, а для облицовки – кирпич, фасадные панели, планкен.
  • Плоская наплавляемая кровля сохраняет полезную площадь и упрощает установку коммуникаций и инженерных систем.

Уникальность серии – контрастный дизайн, панорамное остекление, возможность адаптации под особенности земельного участка и запросы клиента. Проекты рассчитаны на дома площадью 150 м2 с одним – двумя этажами и парковкой, террасами и чётким разграничением зон. Возможно строительство в Москве, МО, Санкт-Петербурге и Ленобласти.

Уникальные проекты с просторными домами и аккуратной ландшафтной зоной из экологичных материалов – мечта каждого домовладельца.

Хотите узнать больше? Звоните по номеру +79219626627, обсудим детали

#sg_house_типовые_проекты #строительныепроекты