Найти в Дзене

Модульный дом 65 кв.м + 2 террасы 43 кв.м всего за 4 115 000 рублей.

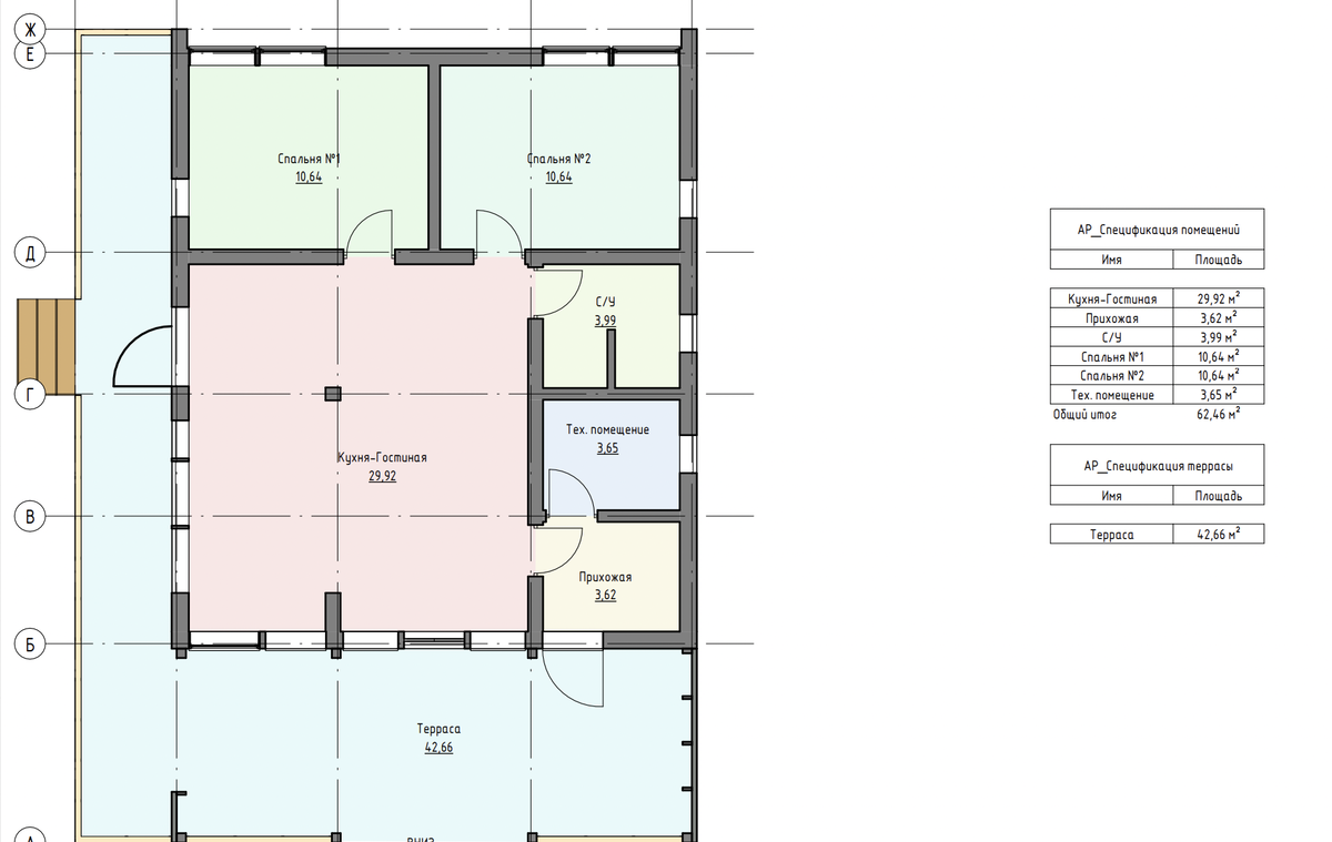
Сегодня мы хотим поделиться с вами нашим недавно сданным обьектом в Красном Селе. Дом Dacar 65 в планировке с двумя спальнями и большой боковой террасой 43 кв.м. Светлый и просторный дом. Две спальни, просторная кухня-гостиная, ванная, тех.помещение, прихожая и терраса, идеально подходят для проживания семьи. Все наши дома изготавливаются уже с отделкой и коммуникациями и доставляются на ваш участке в виде модулей, где монтируются за несколько дней. Комплектация дома:
• Каркас из сухой строганой доски, 1-2 сорт, 145х45мм 195х45мм
• Теплоизоляция - каменная вата Rockwool, пол-200 мм, потолок-250 мм, стены - 150 мм.
• Терраса - 24м²
Окна и двери:
• Двери и окна с двухкамерными стеклопакетами, поворотно-откидные
• Межкомнатные двери белые с шумоизоляцией. Отделка и коммуникации: Наружная отделка:
• Стены торцевые- строганая доска 195х20мм.
• Терраса- на полу террасная доска.
Внутренняя отделка:
• Стены и потолок- имитация бруса 146мм.
• Пол- ламинат с обработкой всех стыков воском.

Сегодня мы хотим поделиться с вами нашим недавно сданным обьектом в Красном Селе. Дом Dacar 65 в планировке с двумя спальнями и большой боковой террасой 43 кв.м.

Дом 65 кв.м+43 кв.м террасы.
Дом 65 кв.м+43 кв.м террасы.

Светлый и просторный дом. Две спальни, просторная кухня-гостиная, ванная, тех.помещение, прихожая и терраса, идеально подходят для проживания семьи.

-2

Все наши дома изготавливаются уже с отделкой и коммуникациями и доставляются на ваш участке в виде модулей, где монтируются за несколько дней.

Комплектация дома:
• Каркас из сухой строганой доски, 1-2 сорт, 145х45мм 195х45мм
• Теплоизоляция - каменная вата Rockwool, пол-200 мм, потолок-250 мм, стены - 150 мм.
• Терраса - 24м²

Окна и двери:
• Двери и окна с двухкамерными стеклопакетами, поворотно-откидные
• Межкомнатные двери белые с шумоизоляцией.

-3

Отделка и коммуникации:

Наружная отделка:
• Стены торцевые- строганая доска 195х20мм.
• Терраса- на полу террасная доска.

Внутренняя отделка:
• Стены и потолок- имитация бруса 146мм.
• Пол- ламинат с обработкой всех стыков воском.
• СУ кафельная плитка в комбинации с имитацией бруса.

Коммуникации:
• Электрика: электрощит, LED-светильники, выключатели, розетки.
• Разводка водоснабжения и разводка водоотведения.
• Приточно-вытяжная вентиляция в помещениях.
• Душ, раковина, унитаз, бойлер 100 литров.
• Сантехника IDDIS
• Тёплый пол в санузле

-4

Стоимость данного проекта 4 115 000 рублей.

Ознакомится со всеми моделями и ценами вы сможете на нашем сайте letwood.ru

Адрес производства: Ленинградская область, Тосненский район, дер. Федоровское, Индустриальный парк "Федоровское", 1-й индустриальный проезд, дом 3к1 , предварительно записаться можно по телефону 8 812 900 00 47 .

#модульные дома

#модульный дом

#модульное строительство

#каркасный дом под ключ

#загородная жизнь