Добавить в корзинуПозвонить
Найти в Дзене
КАТЯ РЕМОНТ

Топ 8 ошибок при ремонте кухни

Я разобрала самые распространенные ошибки при ремонте на кухне, которые приводят к проблемам и неудобству в будущем. Не совершайте такие ошибки, чтобы не переделывать ремонт позже. Ошибка №1. Делать все, не продумав заранее план проектировки Обязательно определитесь с планировкой кухни еще до начала ремонта. Топ самых популярных планировок: Линейная конфигурация – отлично подойдет для маленькой кухни. Г-образная – подойдет для вытянутых помещений. G-образная – находится вдоль трех смежных стен, плюс барная стойка. П-образная – рабочая зона идет вдоль трех смежных стен, или вдоль нескольких противоположных, а между ними может быть барная стойка/обеденный стол. Островная – основная зона располагается вдоль стены, а обеденная – на острове. Ошибка №2. Размещение мойки и варочной панели очень близко Для того чтобы рабочая поверхность между мойкой и варочной панелью была удобной, ее ширина должна быть наибольшей в пределах возможного, так как именно в этой зоне происходит весь процесс приг
Оглавление

Я разобрала самые распространенные ошибки при ремонте на кухне, которые приводят к проблемам и неудобству в будущем. Не совершайте такие ошибки, чтобы не переделывать ремонт позже.

Ошибка №1. Делать все, не продумав заранее план проектировки

Обязательно определитесь с планировкой кухни еще до начала ремонта.

Топ самых популярных планировок:

Линейная конфигурация – отлично подойдет для маленькой кухни.

Добавьте описание
Добавьте описание

Г-образная – подойдет для вытянутых помещений.

Добавьте описание
Добавьте описание

G-образная – находится вдоль трех смежных стен, плюс барная стойка.

-4

П-образная – рабочая зона идет вдоль трех смежных стен, или вдоль нескольких противоположных, а между ними может быть барная стойка/обеденный стол.

Добавьте описание
Добавьте описание

Островная – основная зона располагается вдоль стены, а обеденная – на острове.

Добавьте описание
Добавьте описание

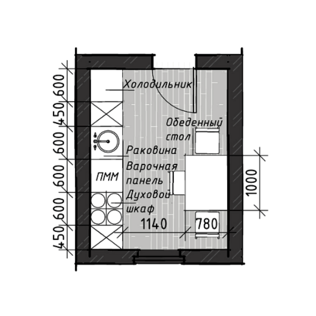
Ошибка №2. Размещение мойки и варочной панели очень близко

Для того чтобы рабочая поверхность между мойкой и варочной панелью была удобной, ее ширина должна быть наибольшей в пределах возможного, так как именно в этой зоне происходит весь процесс приготовления. Рабочее пространство между варочной панелью, мойкой и стеной не должно быть менее 30-40 см.

Добавьте описание
Добавьте описание

Ошибка №3. Мало розеток

По правде говоря, нет определенного правила, какое количество розеток должно быть на кухне, но тем не менее, минимальное – 2-3 шт. Лучше ориентироваться на свои индивидуальные потребности и на количество бытовой техники.

-8

Не располагайте блок с розетками на рабочей поверхности за смесителем мойки и варочной панелью.

Ошибка №4. Неправильная высота стульев и столешницы

-9

Оптимальным расстоянием от уровня рабочей поверхности до согнутого локтя принято считать 15 см.

При выборе высоты стула следует руководствоваться правилом – 30 см от высоты столешницы стола или барной стойки.

Ошибка №5. Неправильная высота при расположении техники

Распространенной проблемой является расположение СВЧ – либо слишком низко, ниже уровня бедра человека, либо слишком высоко (выше уровня глаз). И в том, и в другом случае приходится либо наклоняться, либо вставать на носочки, чтобы дотянуться.

При выборе места под микроволновую печь, следует придерживаться оптимальной высоты от уровня рабочей поверхности до уровня взгляда.

Ошибка №6. Нерабочий треугольник

-11

Постарайтесь не отдалять друг от друга 3 основные зоны: холодильник, мойка и варочная панель.

Сумма сторон треугольника между ними должна быть не более 6,5 м.

Ошибка №7. Непрактичные фасады и столешница

-12

На вашей столешнице и фасадах кухни не должно быть видно отпечатков пальцев и каких-либо разводов. Чтобы избежать таких неприятностей, выбирайте фасады и столешницы с фактурами, например, дерево или камень.

Более гладкие поверхности требуют особого ухода. Предпочтительнее выбирать светлые оттенки материалов, так как на них менее заметны изъяны. Черные матовые поверхности выглядят красиво, но по факту не совсем практичны.

Ошибка №8. Неправильно выбрали краску для стен

На кухню лучше всего подходит моющаяся и влагоустойчивая краска, потому что на кухне очень много влажного воздуха. Кроме того, стены покрашенные такой краской можно мыть - это огромный плюс!

Огромный выбор такой краски есть в линейках Farbitex (бюджетная); Farbitex Profi; Olecolor; Ticiana Deluxe (премиум-сегмент).

#кухня #ремонт своими руками #ремонт в квартире #ремонт кухни #дом и семья #дизайн кухни #кухонные лайфхаки #стройка своими руками #diy