Добавить в корзинуПозвонить
Найти в Дзене

ТЕНЕРИФЕ 119 м2 - проект одноэтажного квадратного дома 12х12 с изолированной кухней

Фишки проекта: ► абсолютно квадратный план (удобно строить, особенно крышу); ► изолированная кухня - для тайного чудодейства у плиты, ну и вообще - кто любит ТАК; ► отсутствие террасы - для тех, у кого есть (или планируется) беседка на участке. Вместо террасы - просто второй выход с небольшим крыльцом; ► легкость перепланировок - можно как угодно двигать перегородки и окна, не меняя конструктив; ► отделка простая, а вид эффектный. А вообще, ТЕНЕРИФЕ - сокращенная версия нашего популярного проекта одноэтажного дома МАДЕЙРА. Урезана с целью экономии. Планировки - 5 вариантов В плане - группа общих помещений (с изолированной кухней), три спальни и хозяйственные помещения (котельная и садовая кладовая). Габарит дома оптимален для устройства 3 отдельных комнат, дневной зоны и подсобных площадей, а конструктив допускает множество планировок. Некоторые из возможных вариантов приводим. Кроме перестановки перегородок, в этом проекте можно передвигать, увеличивать проёмы, не боясь нарушить конс
Оглавление

Фишки проекта:

► абсолютно квадратный план (удобно строить, особенно крышу);

изолированная кухня - для тайного чудодейства у плиты, ну и вообще - кто любит ТАК;

отсутствие террасы - для тех, у кого есть (или планируется) беседка на участке. Вместо террасы - просто второй выход с небольшим крыльцом;

легкость перепланировок - можно как угодно двигать перегородки и окна, не меняя конструктив;

отделка простая, а вид эффектный.

А вообще, ТЕНЕРИФЕ - сокращенная версия нашего популярного проекта одноэтажного дома МАДЕЙРА. Урезана с целью экономии.

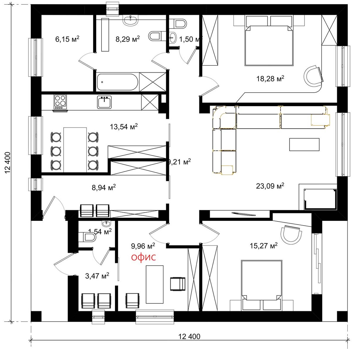
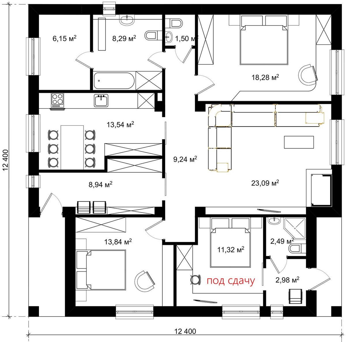
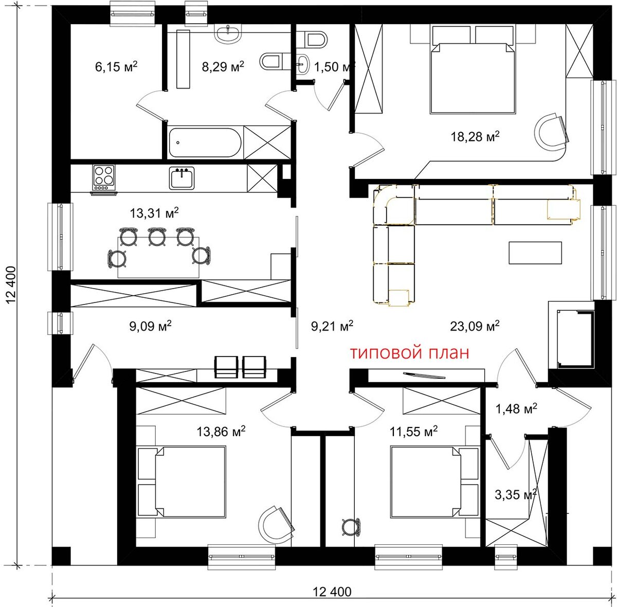
Планировки - 5 вариантов

В плане - группа общих помещений (с изолированной кухней), три спальни и хозяйственные помещения (котельная и садовая кладовая). Габарит дома оптимален для устройства 3 отдельных комнат, дневной зоны и подсобных площадей, а конструктив допускает множество планировок. Некоторые из возможных вариантов приводим.

Кроме перестановки перегородок, в этом проекте можно передвигать, увеличивать проёмы, не боясь нарушить конструктив (так спроектировали специально). Поэтому, в некотором смысле, представленный здесь проект - универсальная коробка для дома на три спальни.

Компоновка может быть практически любая:

НАРУЖНАЯ ОТДЕЛКА

Отделка дома - самая простая. До уровня окон стены облицованы клинкерной плиткой, выше - штукатурка. Полоса фасада над окнами отличается по цвету и немного выступает, создавая красивые пропорции дома. Можно добавить элементы отделки планкеном.

Самый «хрестоматийный» и беспроигрышный вариант - тёмный цоколь, тёмная крыша, 2 близких тона светлой штукатурки и яркое дерево оконных рам.
Самый «хрестоматийный» и беспроигрышный вариант - тёмный цоколь, тёмная крыша, 2 близких тона светлой штукатурки и яркое дерево оконных рам.

►Вот, кстати, похожий дом поменьше - АДРИАТИКА-2, тоже квадратный и тоже три спальни, только площадь 105 м2

КОНСТРУКТИВНЫЕ РЕШЕНИЯ

Фундамент - монолитная лента до глубины промерзания (возможно изменение конструкции «по месту»)
Стены – 400 мм пеноблок, газобетон или аналоги
Перекрытия - из пустотных плит над вентилируемым подпольем.
Кровля – чердачная четырёхскатная шатровая «конвертом»

СОСТАВ ГОТОВОГО ПРОЕКТА ДОМА

► Актуальная цена и информация для приобретения проекта - на странице дома на основном сайте ИНВАПОЛИС

Рабочая документация разработана в типовом составе ИНВАПОЛИС:

Паспорт проекта
Паспорт проекта
Строительно-конструктивный раздел - рабочие чертежи
Строительно-конструктивный раздел - рабочие чертежи

► Другие проекты одноэтажных домов от архитекторов ИНВАПОЛИС можно посмотреть в каталоге на сайте.

► Если Вам интересны наши проекты, подписывайтесь на канал ИНВАПОЛИС-ДЗЕН, смотрите обзоры и подборки домов, задавайте вопросы авторам в комментариях.

► Следить за новостями и смотреть обзоры проектов ИНВАПОЛИС можно также в ТЕЛЕГРАММ-КАНАЛЕ – подписывайтесь, контент немного отличается от ДЗЕН 😊