Добавить в корзинуПозвонить
Найти в Дзене

Проект дома из клеёного бруса "Петергоф"

Проект из клеёного бруса "Петергоф" - это роскошный проект для большой семьи. В доме целых 5 просторных спален! В проекте предусмотрены максимально комфортные решения: видовые балконы, полноценные высокие и прямые потолки второго этажа. Просторная гостиная-столовая с выходом на большую террасу. Имеется финская парная и комната для спорта. Прекрасный вариант как для постоянного, так и для сезонного проживания. Планировка проекта Характеристики проекта Комплектация Базовая комплектация - Домокомплект со сборкой: Комплектация «Теплый контур»: Фундамент – тип и стоимость определяется после обследования участка, преимущественно применяется монолитная железобетонная плита с ростверком, общей высотой от поверхности грунта – 400 мм. Внутренняя отделка и инженерные сети: рассчитываются на основании дизайн-проекта или согласованного с Заказчиком Технического Задания.
Оглавление

Проект из клеёного бруса "Петергоф" - это роскошный проект для большой семьи. В доме целых 5 просторных спален! В проекте предусмотрены максимально комфортные решения: видовые балконы, полноценные высокие и прямые потолки второго этажа. Просторная гостиная-столовая с выходом на большую террасу. Имеется финская парная и комната для спорта. Прекрасный вариант как для постоянного, так и для сезонного проживания.

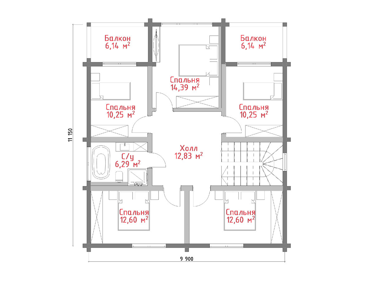
Планировка проекта

Характеристики проекта

  • Общая площадь - 218,62
  • Технология строительства - Клееный брус
  • Площадь внутренних помещений - 165,5
  • Площадь террасы и крыльца - 53,12
  • Габариты - 14,95 х 9,9
  • Этажность - 2
  • Количество комнат - 7
  • Количество санузлов - 2
  • Сауна – Есть
-3

Комплектация

Базовая комплектация - Домокомплект со сборкой:

  • Стены внешние: брус клееный профилированный толщиной 200 мм высотой 190мм.
  • Стены внутренние: столбы клееные конструкционные для последующего формирования каркасных стен.
  • Несущие элементы: столбы и балки клееные конструктивные видовые.
  • Перекрытия, стропила, обсадные коробки - сухой строганный антисептированный пиломатериал.
  • Подкладная доска под несущие стены, опорная доска и лаги террас – сухой строганный пиломатериал – лиственница или импрегнированный пиломатериал.
  • Комплект для сборки - нагеля, утеплители межвенцовые и в чашку; крепеж.
  • Каналы для коммуникаций – заводское изготовление.
  • Сборка комплекта.

Комплектация «Теплый контур»:

  • Домокомплект со сборкой;
  • Крыша включает в себя:
  1. Кровельное покрытие на выбор: металлочерепица, гибкая черепица, цементно-песчаная черепица.
  2. Водосточная система, снегозадержатели, вентканалы с колпаками.
  3. Утепление крыши 250 мм, гидро-ветроизоляция, пароизоляция, вентрейка.
  • Окна: металлопластиковые толщиной 70 мм.
  • Внешняя отделка включает в себя:
  1. Элементы деревянной отделки крыши (свесы и ветровые доски).
  2. Наличники на окна и двери.
  3. Покраска в 3 слоя, шлифовка.

Фундамент – тип и стоимость определяется после обследования участка, преимущественно применяется монолитная железобетонная плита с ростверком, общей высотой от поверхности грунта – 400 мм.

Внутренняя отделка и инженерные сети: рассчитываются на основании дизайн-проекта или согласованного с Заказчиком Технического Задания.

-4