Добавить в корзинуПозвонить
Найти в Дзене
СХП проект

Проект типа "дубль дом"

Дом с двухскатной крышей без свесов, в стиле барнхаус Общий размер дома 12,5х8 метров. В доме имеется просторная кухня-гостиная, 3 спальни и небольшой санузел. Дом спроектирован по каркасной технологии. Утепление стен 200 мм перекрытие и кровля так-же имеют утепление 200 мм. С переднего и заднего фаса большие панорамные окна. Для заказа проекта пишите в телеграмм канал https://t.me/shpproekt. #каркасный дом #проектирование домов #проект дома #проектирование дома #каркасный дом #дубльдом #барнхаус #проект коттеджа #загородныйдом

Дом с двухскатной крышей без свесов, в стиле барнхаус

Передний фасад
Передний фасад

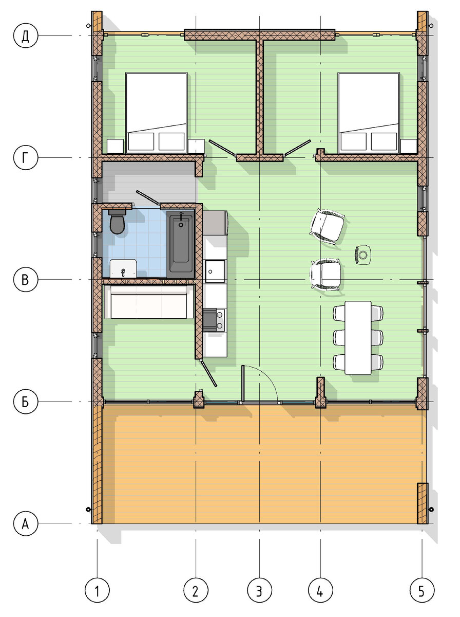
Общий размер дома 12,5х8 метров.

В доме имеется просторная кухня-гостиная, 3 спальни и небольшой санузел.

Планировка дома
Планировка дома

Дом спроектирован по каркасной технологии.

Утепление стен 200 мм перекрытие и кровля так-же имеют утепление 200 мм.

-3

С переднего и заднего фаса большие панорамные окна.

Задний фасад.
Задний фасад.

Для заказа проекта пишите в телеграмм канал https://t.me/shpproekt.

#каркасный дом #проектирование домов #проект дома #проектирование дома #каркасный дом #дубльдом #барнхаус #проект коттеджа #загородныйдом