Найти в Дзене

Особенности вентиляции в квартире 50 м²

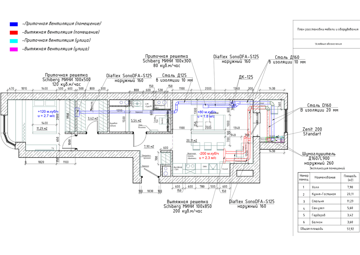
Рассмотрим вариант внедрения системы вентиляции на примере проекта, сделанного нашим инженером-проектировщиком. Представлена планировка квартиры, в которой реализована система приточно-вытяжной принудительной вентиляции на базе нашей установки Zenit 200 Standart.
Данная модель обладает следующими характеристиками: Zenit 200 Standart — отличное решение для квартир и частных домов площадью до 80 м² и расположенных в регионах, где температура наиболее холодной пятидневки соответствует значениям не ниже -25 °С. Квартира, в которой проектировалась система, имеет общую площадь 52 м². Приток свежего воздуха организован в спальню и зону гостиной, вытяжка — из зоны кухни. В данном случае оборудование располагается на утепленной лоджии, что обеспечивает удобный доступ для её обслуживания. Бесшумность работы вентиляции достигается благодаря использованию шумоглушителей и гибких тепло- и звукоизолированных воздуховодов Diaflex Sono-DFA, а также правильным подбором диаметров воздуховодов, чтобы с

Рассмотрим вариант внедрения системы вентиляции на примере проекта, сделанного нашим инженером-проектировщиком. Представлена планировка квартиры, в которой реализована система приточно-вытяжной принудительной вентиляции на базе нашей установки Zenit 200 Standart.

Приточно-вытяжная установка Zenit 200 Standart
Приточно-вытяжная установка Zenit 200 Standart

Данная модель обладает следующими характеристиками:

  • Воздухообмен 200 м³/ч при напоре 100 Па;
  • Пластинчатый теплообменный аппарат с двумя ступенями рекуперации, КПД 70%;
  • Тепло- и шумоизоляция Saint-Gobain толщиной 50 мм, что позволяет размещать оборудование в холодных зонах;
  • Карманные фильтры тонкой очистки класса F5, задерживающие до 65% мелких частиц размером больше 0,4 мкм;
  • Подключение к системе «Умный дом» по протоколу Modbus RTU;
  • Wi-Fi управление с мобильного телефона.

Zenit 200 Standart — отличное решение для квартир и частных домов площадью до 80 м² и расположенных в регионах, где температура наиболее холодной пятидневки соответствует значениям не ниже -25 °С.

Квартира, в которой проектировалась система, имеет общую площадь 52 м².

Схема приточно-вытяжной вентиляции в квартире
Схема приточно-вытяжной вентиляции в квартире

Приток свежего воздуха организован в спальню и зону гостиной, вытяжка — из зоны кухни.

В данном случае оборудование располагается на утепленной лоджии, что обеспечивает удобный доступ для её обслуживания. Бесшумность работы вентиляции достигается благодаря использованию шумоглушителей и гибких тепло- и звукоизолированных воздуховодов Diaflex Sono-DFA, а также правильным подбором диаметров воздуховодов, чтобы скорость движения воздуха на ответвлениях от магистрали не превышала 3 м/с.

В качестве воздухораспределительных устройств использовались дизайнерские вентиляционные решетки скрытого монтажа SCHIBERG модельного ряда МИНИ.

Дизайнерская решетка SCHIBERG МИНИ
Дизайнерская решетка SCHIBERG МИНИ

В заключение хотелось бы дать несколько советов проектировщикам:

  • Вентиляционное оборудование следует размещать в месте с возможностью проводить обслуживание (в данном случае это замена фильтров раз в полгода).
  • Для подключения адаптеров решеток к вентиляционной сети следует применять гибкие воздуховоды с изоляцией: они упростят соединение и погасят остаточные шумы от работы вентиляционного оборудования.
  • При проектировании стараться делать как можно меньше поворотов, ответвлений и пересечений для снижения сопротивления движению воздуха.
  • Использовать воздуховоды соответствующих диаметров, чтобы скорость воздуха на ответвлениях от магистрали не превышала 3 м/с.