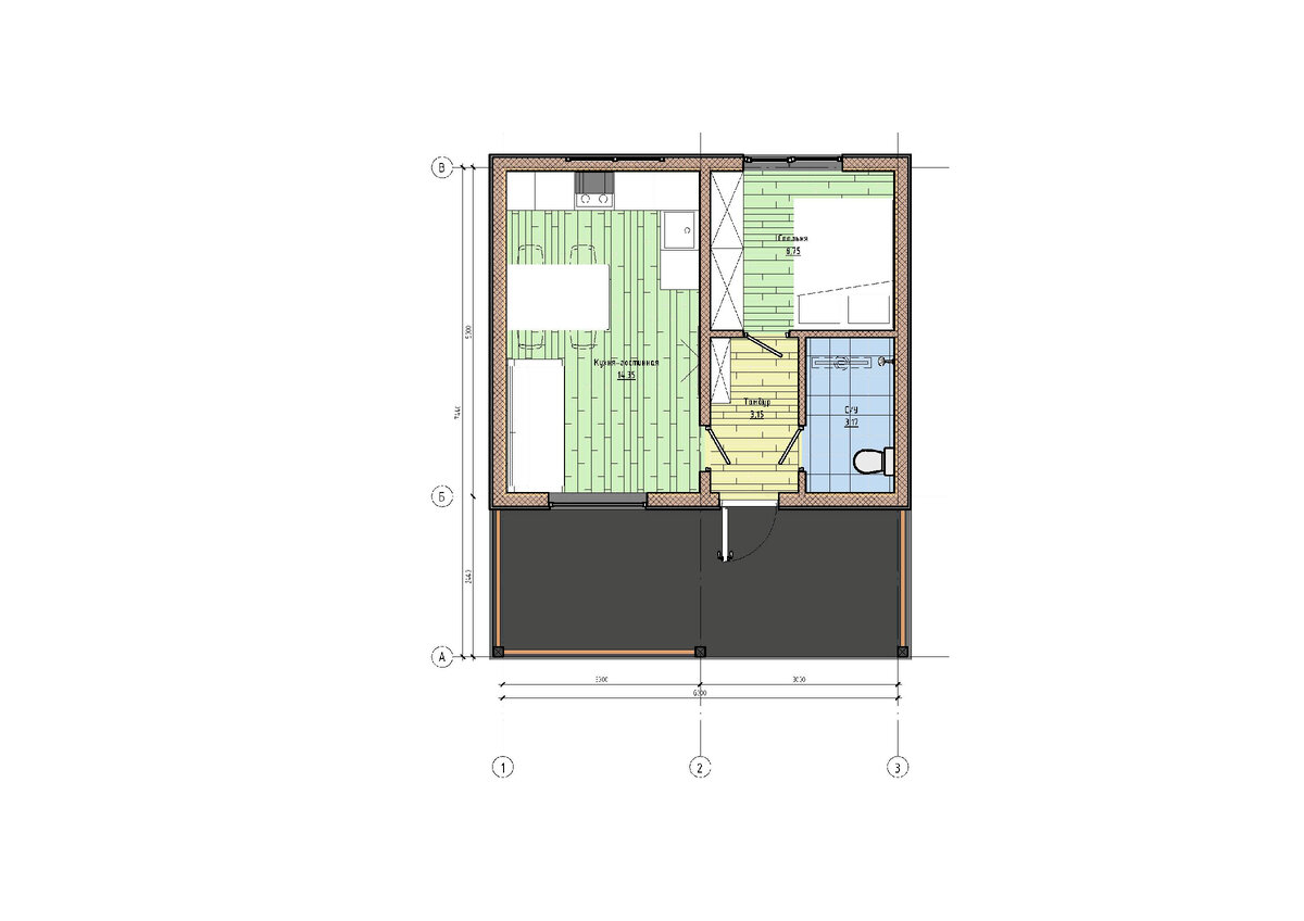
Представляю вашему вниманию проект маленького одноэтажного дома размером 5 на 6 м Общая площадь дома 24 кв.м. площадь террасы 14 кв.м. В доме имеется; - 1 cпальня - кухня гостиная - санузел - просторная терраса
Представляю вашему вниманию проект маленького одноэтажного дома размером 5 на 6 м Общая площадь дома 24 кв.м. площадь террасы 14 кв.м. В доме имеется; - 1 cпальня - кухня гостиная - санузел - просторная терраса
...Читать далее
Представляю вашему вниманию проект маленького одноэтажного дома размером 5 на 6 м
Общая площадь дома 24 кв.м. площадь террасы 14 кв.м.