Найти в Дзене
Филдс

Дизайнеры превратили «убитую» типовую двушку 66 м² в старом фонде в квартиру мечты для мужчины с собакой: фото до и после

Дизайнеры Ольга Трегубова и Марина Ерпулёва из студии MO Interior Design оформили евродвушку 66 м² для мужчины и его собаки. Интерьер выполнили в спокойных тонах, весь функционал полностью отвечает требованиям заказчика. Планировка Квартира до ремонта Гостиная Для отделки комнаты использовали краску Little Greene, на пол уложили инженерную доску. Диван поставили спинкой к проходу, чтобы очертить границы гостиной. Напротив находится зона с камином, с обеих сторон её симметрично обрамляют высокие дверные проёмы с наличниками до потолка. Телевизор скрыли за фасадами навесной секции. Кухня Кухонный гарнитур встроили в нишу. Его изготовили на заказ по эскизам дизайнеров. Фасады нейтрального оттенка не перегружают пространство. Фартук из кварцевого агломерата дублирует столешницу. Спальня Для стен в спальне выбрали более глубокий оттенок краски, нежели в гостиной. Обивка кровати имеет ярко выраженную текстуру. Привычную симметрию разбивает подвес только над одной из прикроватных тумб.
Оглавление

Дизайнеры Ольга Трегубова и Марина Ерпулёва из студии MO Interior Design оформили евродвушку 66 м² для мужчины и его собаки. Интерьер выполнили в спокойных тонах, весь функционал полностью отвечает требованиям заказчика.

  • Общая площадь: 66 м²
  • Место: Москва
  • Тип дома: дом 1957 года постройки
  • Высота потолка: 3,2 м
  • Количество комнат: евродвушка
  • Кто здесь живет: мужчина
  • Бюджет: 6,5 млн рублей (актуально на момент 2019-2020 гг.)
  • Дизайнеры: Ольга Трегубова и Марина Ерпулёва (MO Interior Design)
  • Фото: Михаил Лоскутов

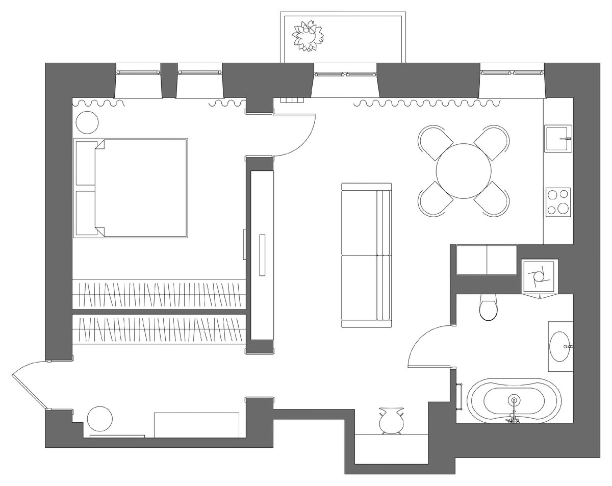
Планировка

Типовую двухкомнатную квартиру с маленькой кухней и длинным коридором превратили в евродвушку: кухню объединили с гостиной и частью коридора. Спальню уменьшили, чтобы организовать хранение в прихожей, а раздельный санузел сделали совмещённым и немного увеличили за счёт коридора.
Типовую двухкомнатную квартиру с маленькой кухней и длинным коридором превратили в евродвушку: кухню объединили с гостиной и частью коридора. Спальню уменьшили, чтобы организовать хранение в прихожей, а раздельный санузел сделали совмещённым и немного увеличили за счёт коридора.

Квартира до ремонта

Гостиная

Для отделки комнаты использовали краску Little Greene, на пол уложили инженерную доску. Диван поставили спинкой к проходу, чтобы очертить границы гостиной. Напротив находится зона с камином, с обеих сторон её симметрично обрамляют высокие дверные проёмы с наличниками до потолка. Телевизор скрыли за фасадами навесной секции.

Кухня

Кухонный гарнитур встроили в нишу. Его изготовили на заказ по эскизам дизайнеров. Фасады нейтрального оттенка не перегружают пространство. Фартук из кварцевого агломерата дублирует столешницу.

Спальня

Для стен в спальне выбрали более глубокий оттенок краски, нежели в гостиной. Обивка кровати имеет ярко выраженную текстуру. Привычную симметрию разбивает подвес только над одной из прикроватных тумб. Подоконники из массива перекликаются с фасадами встроенного шкафа у противоположной стены.

Прихожая

Большую нишу при входе продумали ещё на этапе перепланировки. В неё встроили вместительную систему хранения, близнеца той, что находится в спальне. Глянцевые фасады отражают в прихожую больше света из комнаты.

Санузел

В отделке санузла скомбинировали плитку и декоративную штукатурку под бетон. Ванная не встроенная и прилегает к стене только с одной стороны. Шторку повесили на овальный кронштейн. Тумбу под раковину изготовили на заказ и намеренно состарили, в её стилистике прослеживается дух ретро.

Подпишись на канал Филдс, чтобы первым видеть новые публикации. Интересные мнения в комментариях приветствуются. Если материал понравился — ставь лайк!

Facebook, Instagram, Вконтакте