Найти в Дзене
Новгородский строитель

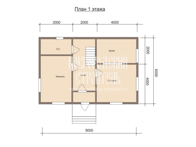
Сруб 6х9 м "Ковдор" под усадку с тремя спальнями

Крутоуклонные крыши с окнами-дормерами - хорошее решение для районов с сильными снегопадами, а также для владельцев домов, не склонных после каждой метели убирать снег с кровли. При этом такие окна позволяют осветить дневным светом помещения мансарды, не рискуя при этом повредить или ухудшить гидроизоляцию кровли. Достаточно большое крыльцо с отдельным односкатным навесом позволяет сделать вход в дом более защищенным и комфортным. В этом срубе первый этаж поделен между помещениями общего пользования - кухней-гостиной, холлом, тамбуром, санузлом - и спальней. Второй этаж полностью отдан под комнаты отдыха. При этом расположение лестницы позволяет устроить в мансарде второй санузел или гардеробную с окном. Форму лестницы можно изменить, сделав ее двухпролетной или Г-образной, это поможет уменьшить угол ее уклона. Дом возводится по технологии "рубка в теплый угол", с утеплением межвенцового пространства джутовой лентой. Использование профилированного, а не четырехкантного, бруса обеспечив

Крутоуклонные крыши с окнами-дормерами - хорошее решение для районов с сильными снегопадами, а также для владельцев домов, не склонных после каждой метели убирать снег с кровли. При этом такие окна позволяют осветить дневным светом помещения мансарды, не рискуя при этом повредить или ухудшить гидроизоляцию кровли.

Достаточно большое крыльцо с отдельным односкатным навесом позволяет сделать вход в дом более защищенным и комфортным.

-2

В этом срубе первый этаж поделен между помещениями общего пользования - кухней-гостиной, холлом, тамбуром, санузлом - и спальней. Второй этаж полностью отдан под комнаты отдыха. При этом расположение лестницы позволяет устроить в мансарде второй санузел или гардеробную с окном. Форму лестницы можно изменить, сделав ее двухпролетной или Г-образной, это поможет уменьшить угол ее уклона.

-3

Дом возводится по технологии "рубка в теплый угол", с утеплением межвенцового пространства джутовой лентой. Использование профилированного, а не четырехкантного, бруса обеспечивает большую стабильность здания, минимальный риск возникновения щелей в стенах.

-4

Фундаментом для этой сравнительно легкой постройки может стать опорно-блочное или свайно-винтовое основание с обвязкой брусом. Возможен также вариант с привязкой проекта к более традиционным видам фундамента - ленточному или плитному.

-5

Сруб сразу же возводится "под крышу", с качественной гидро- и пароизоляцией. Кровельным материалом может стать ондулин или металлочерепица, по выбору заказчика. А вот утепление каркасных фронтонов, крыши, основания и перекрытия выполняется уже после завершения усадки. Тем не менее необходимо выбрать толщину стены еще на стадии согласования, поскольку от этого зависят затраты на строительство. Профилированный брус может иметь сечение 150х150 мм или 200х150 мм.

-6

На итоговую сумму также сильно влияют траты на доставку комплекта стройматериалов и бригады на объект. Поэтому при выполнении предварительного расчета в онлайн-форме "Рассчитать стоимость" на странице проекта "Ковдор" следует точно указывать место строительства.

-7