Добавить в корзинуПозвонить
Найти в Дзене

Обзор проекта дома - шалаша Aframe-house

Знакомьтесь, наш новый проект - Aframe 7,8 х 8,5, площадью 98м2 Как вы относитесь к такому стилю дома? Лично у меня он вызывает двоякое чувство - с одной стороны необычное и стильное здание, с другой - очень нерационально использована площадь дома за счет его формы (треугольник), так же не вся мебель подойдет под такую архитектуру - так что почти на 100% уверен, что мебель в такие дома делают на заказ (а это дополнительные затраты). Планировка 1-го этажа: Планировка 2-го этажа: На первом этаже дома прекрасно разместились: 1. Просторная кухня-гостиная - 29,05м2 2. СУ - 4,71м2 3-4. Душевая - 5,5м2 и сауна - 8,59м2 5. Холл - 2,02м2 6. Просторный тамбур - 10,85м2 Итого по площади первого этажа получается 60,72м2 На втором этаже у нас лофт, площадью 21,05м2 Планировка отличная, тк есть все помещения, необходимые для комфортной жизни: - тамбур защитит от выдувания тепла в холодное время года, - в су можно удобно разместить как и ванну, так и душевую кабинку, раковина и унитаз и даже какой

Знакомьтесь, наш новый проект - Aframe 7,8 х 8,5, площадью 98м2

Как вы относитесь к такому стилю дома?

Лично у меня он вызывает двоякое чувство - с одной стороны необычное и стильное здание, с другой - очень нерационально использована площадь дома за счет его формы (треугольник), так же не вся мебель подойдет под такую архитектуру - так что почти на 100% уверен, что мебель в такие дома делают на заказ (а это дополнительные затраты).

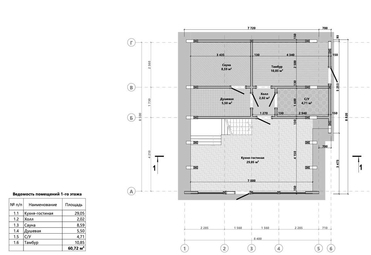
Планировка 1-го этажа:

1 этаж
1 этаж

Планировка 2-го этажа:

2 этаж
2 этаж

На первом этаже дома прекрасно разместились:

1. Просторная кухня-гостиная - 29,05м2

2. СУ - 4,71м2

3-4. Душевая - 5,5м2 и сауна - 8,59м2

5. Холл - 2,02м2

6. Просторный тамбур - 10,85м2

Итого по площади первого этажа получается 60,72м2

На втором этаже у нас лофт, площадью 21,05м2

-4

Планировка отличная, тк есть все помещения, необходимые для комфортной жизни:

- тамбур защитит от выдувания тепла в холодное время года,

- в су можно удобно разместить как и ванну, так и душевую кабинку, раковина и унитаз и даже какой-нибудь небольшой шкаф

-сауна поможет прогреться и расслабиться после рабочего дня

-душ - охладиться после жара парилки

-кухня-гостиная достаточно просторная и позволит функционально и эффективно разграничить пространство и обустроить его

-лофт - спальное место - отличный вариант уединения и личного пространства

Я бы еще добавил настил около дома, на площадке которого можно разместиться в летнее время года и с удовольствием побыть на свежем воздухе.

-5

Высота потолков 1-го этажа 2,545м, 2-го этажа 4,68м в коньке.

Итак, давайте посмотрим, что получилось у на по затратам:

(Фундамент - он в проекте представлен лишь планом, поэтому заливка плиты разная в зависимости от региона к региону, поэтому предлагаю его в расчетах не учитывать)

1. Пиломатериалы:

Общие данные
Общие данные
-7

Вам потребуется 6,4м3 сухой строганной доски(для МО стоимость 27тр/м3) - это внутренние перегородки и обрешетка и контробрешетка на кровле-стенах, основной каркас идет из клееного бруса разным сечением, в общей сложности 10,13м3 (для МО стоимость 40тр/м3).

Итого - 173тр на доску и 405тр на клееный брус.

2. Утепление:

у вас уйдет порядка 55м3 утеплителя на стены-кровлю(толщина 250мм), внутренние перегородки(толщина 100мм) и межэтажное перекрытие(200мм)

Итого 55 х 2700р = 148,5тр на утеплитель

Плюс 6 рулонов пароизоляции по 75м2 х 2тр= 12тр + 4 рулона супердиффузионной мембраны х 4тр = 16тр

Итого 28тр на пленки.

3. Отделка снаружи и внутри:

Остекление - 37,54м2 безрамное, толщина безрамного стеклопакета 54 мм, стоимость такого стеклопакета в районе 15тр/м2

итого по окнам 565тр

Клик-фальц - 219м2, средняя стоимость за м2 1200р

итого 263тр

Внутренняя отделка - имитация бруса 276м2 х 500р = 138тр

Итого по тому, что мы с вами посчитали получается 1,750млн.р - стоимость строительных материалов(без учета фундамента).

А вообще сейчас можно смело считать так:

  • стоимость по материалам за м2 составляет у обычных домов - 20тр
  • стоимость по материалам за м2 у домов с большой площадью остекления - 25-30тр

И пожалуйста не забывайте при планировании бюджета на строительство дома примерно половину от затрат на дом, заложить еще и на благоустройство придомовой территории, это тоже важный момент, про который многие просто забывают.

обрешетка и контробрешетка по стенам-кровле
обрешетка и контробрешетка по стенам-кровле
для наглядности, чтобы было понятнее
для наглядности, чтобы было понятнее
Разрез дома
Разрез дома

Состав данного проекта:

1. Конструктивный раздел(рабочие чертежи)

2. Эскизный проект

3. файл распиловки по пиломатериалам

4. модель дома и модель каркаса в bimx.

5. исходные файлы для производства(для станков ЧПУ)

Этот и много других проектов вы можете найти на сайте Domokea.ru

Рады каждому! Ждем вас и ваши вопросы, до встречи на канале.