Добавить в корзинуПозвонить
Найти в Дзене

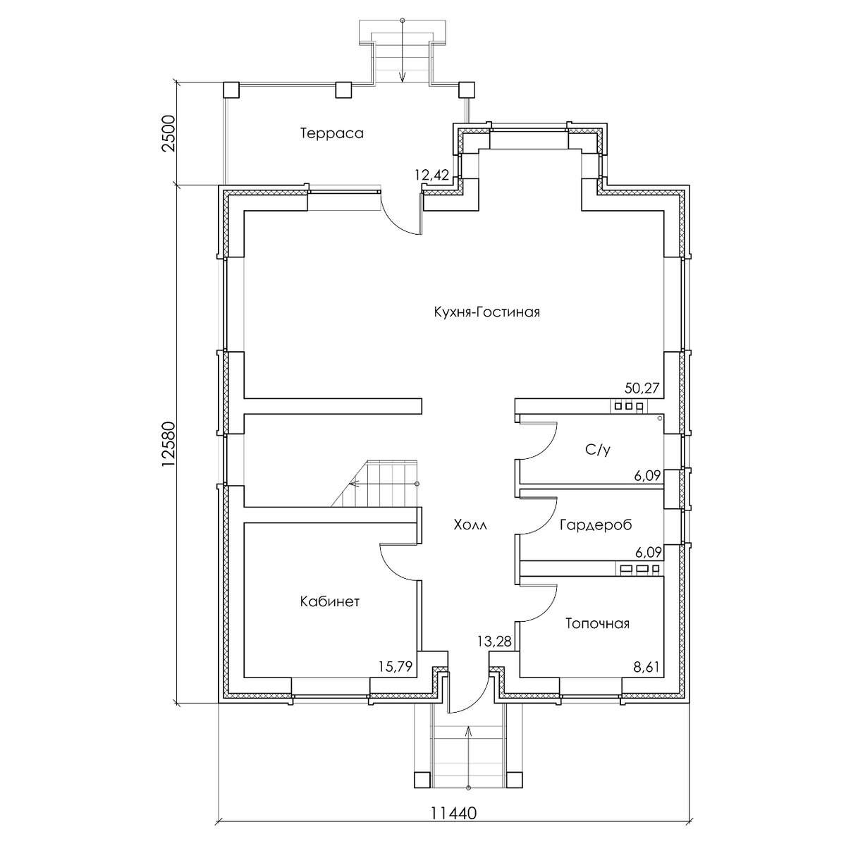
61-38 - Проект двухэтажного дома из газобетона с террасой. Большая кухня-гостиная, три спальни и кабинет, общая площадь 196м².

Общая площадь: 196 м² Габариты: 15.8x11.44 м Высота конька: 10.5 м Наружные стены: газобетон 400мм Фундамент: ленточный ж/б Перекрытия: монолитные ж.б Крыша: чердачная Кровля: металлочерепица Наружная отделка: лицевой кирпич 120мм Цоколь: нет Архитектурный стиль: европейский Подробнее о проекте:
https://catalog-dom.ru/catalog/61-38

Общая площадь: 196 м²

Габариты: 15.8x11.44 м

Высота конька: 10.5 м

Наружные стены: газобетон 400мм

Фундамент: ленточный ж/б

Перекрытия: монолитные ж.б

Крыша: чердачная

Кровля: металлочерепица

Наружная отделка: лицевой кирпич 120мм

Цоколь: нет

Архитектурный стиль: европейский

Подробнее о проекте:
https://catalog-dom.ru/catalog/61-38