Найти в Дзене
Z500 Архитектурное бюро

Новый проект Zz3 P!Формула идеального для проживания дома

Сочетание современных решений в области строительства и архитектуры с домашним уютом ✨, который создаете в своем доме вы! Zz3 представляет собой компактный проект двухэтажного дома. Чем интересен проект Zz3 Р: Проект Zz3 Р пригоден для строительства на узких участках и гармонично смотрится как в загородном пейзаже, так и в городской местности. Проект дома Zz3 Р  Общая площадь 189,0 м² Смотрите детальнее о проекте на сайте 👈 Понравился ли Вам проект? Ставьте 👍 вверх, пишите свои мысли в комментариях. 👉 Подписывайтесь на наш канал, у нас много интересных проектов!!! Будем благодарны за обратную связь! Удачи в выборе и строительстве дома вашей мечты! 👉 Приглашаем вас на сайт, где вы среди множества современных проектов домов, найдете подходящий именно вам проект! Наш каталог проектов 👉 КАТАЛОГ 👈 Если вы не найдете подходящий проект дома — наши архитекторы всегда готовы создать его для вас! По вопросам приобретения проекта дома и его доработок под ваши потребности обращайтесь 👉 Наши

Сочетание современных решений в области строительства и архитектуры с домашним уютом ✨, который создаете в своем доме вы!

Zz3 представляет собой компактный проект двухэтажного дома.

Чем интересен проект Zz3 Р:

  • Проект привлекает своим оригинальным ярким дизайном экстерьера, в котором удачно сочетается штукатурка белого и желтого цвета, а также обшивка деревом.
  • На первом этаже разместились помещения дневной зоны. Здесь находится красивая и просторная гостиная с выходом на террасу со стороны сада. На террасе в теплое время года хозяйка может принимать гостей, устраивать семейные приемы пищи, организовывать семейный досуг.
  • Хозяек привлекает частично отделенная от гостиной и столовой просторная функциональная кухня.
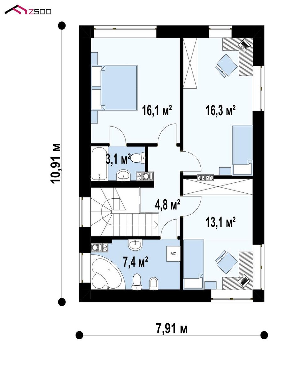
  • Верхний этаж – это зона, отведенная для сна и отдыха. Здесь находится три просторных светлых комнаты, одна из которых оснащена ванной комнатой. Также здесь есть и общая ванная комната.
  • На первом этаже предусмотрен санузел, который могут посещать гости дома.

Проект Zz3 Р пригоден для строительства на узких участках и гармонично смотрится как в загородном пейзаже, так и в городской местности.

Проект дома Zz3 Р  Общая площадь 189,0 м²

Смотрите детальнее о проекте на сайте 👈

Понравился ли Вам проект? Ставьте 👍 вверх, пишите свои мысли в комментариях.

👉 Подписывайтесь на наш канал, у нас много интересных проектов!!!

Будем благодарны за обратную связь!

Удачи в выборе и строительстве дома вашей мечты!

👉 Приглашаем вас на сайт, где вы среди множества современных проектов домов, найдете подходящий именно вам проект!

Наш каталог проектов 👉 КАТАЛОГ 👈

Если вы не найдете подходящий проект дома — наши архитекторы всегда готовы создать его для вас!

По вопросам приобретения проекта дома и его доработок под ваши потребности обращайтесь 👉 Наши контакты 👈