Найти Π² Π”Π·Π΅Π½Π΅

😍 «Анаир» – соврСмСнный Π΄ΠΎΠΌ Π½Π° 160 ΠΊΠ².ΠΌ с 5-ю ΠΊΠΎΠΌΠ½Π°Ρ‚Π°ΠΌΠΈ, тСррасой ΠΈ мансардным этаТом!

πŸ‘¨β€πŸ‘©β€πŸ‘§ Π£ вас большая сСмья ΠΈ слишком ΠΌΠ°Π»ΠΎ мСста для всСй Ρƒ вас Π΄ΠΎΠΌΠ°? ΠžΠ±Ρ€Π°Ρ‚ΠΈΡ‚Π΅ Π²Π½ΠΈΠΌΠ°Π½ΠΈΠ΅ Π½Π° «Анаир»! Π’ Π΄ΠΎΠΌΠ΅ Π΅ΡΡ‚ΡŒ Ρ†Π΅Π»Ρ‹Ρ… 5 ΠΊΠΎΠΌΠ½Π°Ρ‚, 2 Π²Π°Π½Π½Ρ‹, турассы ΠΈ мансардный этаТ. ΠŸΡ€ΠΎΡΡ‚Ρ€Π°Π½ΡΡ‚Π²Π° Ρ‚ΠΎΡ‡Π½ΠΎ Ρ…Π²Π°Ρ‚ΠΈΡ‚ Π½Π° всСх! 🏑 Π”Π°Π½Π½Ρ‹ΠΉ ΠΏΡ€ΠΎΠ΅ΠΊΡ‚ Π΄ΠΎΠΌΠ° являСтся двухэтаТным ΠΌΠΎΠ½ΠΎΠ»ΠΈΡ‚Π½Ρ‹ΠΌ особняком. Он ΠΎΡ‡Π΅Π½ΡŒ Ρ‚Ρ‘ΠΏΠ»Ρ‹ΠΉ, Π° стСны Π½Π΅ ΠΏΡ€ΠΎΠΏΡƒΡΠΊΠ°ΡŽΡ‚ ΡΡ‹Ρ€ΠΎΡΡ‚ΡŒ. Бквозняки Π² этот Π΄ΠΎΠΌ Π½Π΅ пробСрутся, Ρ‚Π°ΠΊ ΠΊΠ°ΠΊ стСклопакСты достаточно ΠΏΠ»ΠΎΡ‚Π½Ρ‹Π΅. На Ρ†ΠΎΠΊΠΎΠ»ΡŒΠ½ΠΎΠΌ Π³Π°Ρ€Π°ΠΆΠ΅ вмСстС с ΠΊΡƒΡ…Π½Π΅ΠΉ ΠΈ гостиной ΠΌΠΎΠΆΠ΅Ρ‚ Π±Ρ‹Ρ‚ΡŒ внСсён Ρ†Π΅Π»Ρ‹ΠΉ Π³Π°Ρ€Π°ΠΆ для Π»Π΅Π³ΠΊΠΎΠ²Ρ‹Ρ… Π°Π²Ρ‚ΠΎΠΌΠΎΠ±ΠΈΠ»Π΅ΠΉ. НавСрху располоТСна комфортная Π·ΠΎΠ½Π° для ΠΎΡ‚Π΄Ρ‹Ρ…Π°: 3 ΡƒΡŽΡ‚Π½Ρ‹Π΅ спальни ΠΈ 2 ΠΏΡ€ΠΎΡΡ‚ΠΎΡ€Π½Π΅ΠΉΡˆΠΈΠ΅ Π²Π°Π½Π½Ρ‹. Π”ΠΎΠΌ строится Π½Π° ΠΌΠΎΡ‰Π½ΠΎΠΌ Ρ„ΡƒΠ½Π΄Π°ΠΌΠ΅Π½Ρ‚Π΅. ΠŸΠΎΡΡ‚ΠΎΠΌΡƒ Π²Π°ΠΌ Π±ΡƒΠ΄ΡƒΡ‚ Π½Π΅ΡΡ‚Ρ€Π°ΡˆΠ½Ρ‹ Π·Π΅ΠΌΠ½Ρ‹Π΅ ΠΏΠΎΠ΄Π²ΠΈΠΆΠΊΠΈ. πŸ“ˆ ВСхничСскиС характСристики Π΄ΠΎΠΌΠ°: πŸ“‘ ΠžΡΠΎΠ±Π΅Π½Π½ΠΎΡΡ‚ΠΈ ΠΏΡ€ΠΎΠ΅ΠΊΡ‚Π° Π”Π°Π½Π½Ρ‹ΠΉ Π΄ΠΎΠΌ ΠΈΠΌΠ΅Π΅Ρ‚ 1 этаТ, Ρ‡Ρ‚ΠΎ Π΄Π°Ρ‘Ρ‚ Π²ΠΎΠ·ΠΌΠΎΠΆΠ½ΠΎΡΡ‚ΡŒ ускорСнного процСсса стройки. Π˜ΠΌΠ΅Π΅Ρ‚ΡΡ тСрраса, Ρ‡Ρ‚ΠΎ ΠΏΡ€ΠΈΠ΄Π°Ρ‘Ρ‚ Π΄ΠΎΠΌΡƒ ΡΡΡ‚Π΅Ρ‚ΠΈΡ‡Π΅ΡΠΊΡƒΡŽ красоту. Π”ΠΎΠΌ состоит ΠΈΠ· пяти ΠΊΠΎΠΌΠ½Π°Ρ‚, Π½ΠΎ Ρƒ вас Π΅ΡΡ‚ΡŒ Π²ΠΎΠ·ΠΌΠΎΠΆΠ½ΠΎΡΡ‚ΡŒ Ρ€Π°ΡΡˆΠΈΡ€ΠΈΡ‚ΡŒ ΠΈΠ»ΠΈ ΡƒΠΌΠ΅Π½ΡŒΡˆΠΈΡ‚ΡŒ ΠΈΡ… количСство Π½Π° этапС проСктирования. πŸ“œ Π’Π°Ρ€ΠΈΠ°Π½Ρ‚Ρ‹ ΡΡ‚Ρ€ΠΎΠΈΡ‚Π΅Π»ΡŒΡΡ‚Π²Π°
ОглавлСниС

πŸ‘¨β€πŸ‘©β€πŸ‘§ Π£ вас большая сСмья ΠΈ слишком ΠΌΠ°Π»ΠΎ мСста для всСй Ρƒ вас Π΄ΠΎΠΌΠ°? ΠžΠ±Ρ€Π°Ρ‚ΠΈΡ‚Π΅ Π²Π½ΠΈΠΌΠ°Π½ΠΈΠ΅ Π½Π° «Анаир»!

Π’ Π΄ΠΎΠΌΠ΅ Π΅ΡΡ‚ΡŒ Ρ†Π΅Π»Ρ‹Ρ… 5 ΠΊΠΎΠΌΠ½Π°Ρ‚, 2 Π²Π°Π½Π½Ρ‹, турассы ΠΈ мансардный этаТ. ΠŸΡ€ΠΎΡΡ‚Ρ€Π°Π½ΡΡ‚Π²Π° Ρ‚ΠΎΡ‡Π½ΠΎ Ρ…Π²Π°Ρ‚ΠΈΡ‚ Π½Π° всСх!

🏑 Π”Π°Π½Π½Ρ‹ΠΉ ΠΏΡ€ΠΎΠ΅ΠΊΡ‚ Π΄ΠΎΠΌΠ° являСтся двухэтаТным ΠΌΠΎΠ½ΠΎΠ»ΠΈΡ‚Π½Ρ‹ΠΌ особняком. Он ΠΎΡ‡Π΅Π½ΡŒ Ρ‚Ρ‘ΠΏΠ»Ρ‹ΠΉ, Π° стСны Π½Π΅ ΠΏΡ€ΠΎΠΏΡƒΡΠΊΠ°ΡŽΡ‚ ΡΡ‹Ρ€ΠΎΡΡ‚ΡŒ. Бквозняки Π² этот Π΄ΠΎΠΌ Π½Π΅ пробСрутся, Ρ‚Π°ΠΊ ΠΊΠ°ΠΊ стСклопакСты достаточно ΠΏΠ»ΠΎΡ‚Π½Ρ‹Π΅.

На Ρ†ΠΎΠΊΠΎΠ»ΡŒΠ½ΠΎΠΌ Π³Π°Ρ€Π°ΠΆΠ΅ вмСстС с ΠΊΡƒΡ…Π½Π΅ΠΉ ΠΈ гостиной ΠΌΠΎΠΆΠ΅Ρ‚ Π±Ρ‹Ρ‚ΡŒ внСсён Ρ†Π΅Π»Ρ‹ΠΉ Π³Π°Ρ€Π°ΠΆ для Π»Π΅Π³ΠΊΠΎΠ²Ρ‹Ρ… Π°Π²Ρ‚ΠΎΠΌΠΎΠ±ΠΈΠ»Π΅ΠΉ.

НавСрху располоТСна комфортная Π·ΠΎΠ½Π° для ΠΎΡ‚Π΄Ρ‹Ρ…Π°: 3 ΡƒΡŽΡ‚Π½Ρ‹Π΅ спальни ΠΈ 2 ΠΏΡ€ΠΎΡΡ‚ΠΎΡ€Π½Π΅ΠΉΡˆΠΈΠ΅ Π²Π°Π½Π½Ρ‹. Π”ΠΎΠΌ строится Π½Π° ΠΌΠΎΡ‰Π½ΠΎΠΌ Ρ„ΡƒΠ½Π΄Π°ΠΌΠ΅Π½Ρ‚Π΅. ΠŸΠΎΡΡ‚ΠΎΠΌΡƒ Π²Π°ΠΌ Π±ΡƒΠ΄ΡƒΡ‚ Π½Π΅ΡΡ‚Ρ€Π°ΡˆΠ½Ρ‹ Π·Π΅ΠΌΠ½Ρ‹Π΅ ΠΏΠΎΠ΄Π²ΠΈΠΆΠΊΠΈ.

πŸ“ˆ ВСхничСскиС характСристики Π΄ΠΎΠΌΠ°:

  • Π“Π°Π±Π°Ρ€ΠΈΡ‚Ρ‹ – 11Ρ…7 ΠΌΠ΅Ρ‚Ρ€ΠΎΠ²;
  • ΠŸΠ»ΠΎΡ‰Π°Π΄ΡŒ Π΄ΠΎΠΌΠ° -160 ΠΌ2.
  • ΠšΠΎΠ»ΠΈΡ‡Π΅ΡΡ‚Π²ΠΎ ΠΊΠΎΠΌΠ½Π°Ρ‚: 5;
  • ΠšΠΎΠ½ΡΡ‚Ρ€ΡƒΠΊΡ†ΠΈΡ являСтся одноэтаТной + мансардный этаТ.

πŸ“‘ ΠžΡΠΎΠ±Π΅Π½Π½ΠΎΡΡ‚ΠΈ ΠΏΡ€ΠΎΠ΅ΠΊΡ‚Π°

Π”Π°Π½Π½Ρ‹ΠΉ Π΄ΠΎΠΌ ΠΈΠΌΠ΅Π΅Ρ‚ 1 этаТ, Ρ‡Ρ‚ΠΎ Π΄Π°Ρ‘Ρ‚ Π²ΠΎΠ·ΠΌΠΎΠΆΠ½ΠΎΡΡ‚ΡŒ ускорСнного процСсса стройки. Π˜ΠΌΠ΅Π΅Ρ‚ΡΡ тСрраса, Ρ‡Ρ‚ΠΎ ΠΏΡ€ΠΈΠ΄Π°Ρ‘Ρ‚ Π΄ΠΎΠΌΡƒ ΡΡΡ‚Π΅Ρ‚ΠΈΡ‡Π΅ΡΠΊΡƒΡŽ красоту.

Π”ΠΎΠΌ состоит ΠΈΠ· пяти ΠΊΠΎΠΌΠ½Π°Ρ‚, Π½ΠΎ Ρƒ вас Π΅ΡΡ‚ΡŒ Π²ΠΎΠ·ΠΌΠΎΠΆΠ½ΠΎΡΡ‚ΡŒ Ρ€Π°ΡΡˆΠΈΡ€ΠΈΡ‚ΡŒ ΠΈΠ»ΠΈ ΡƒΠΌΠ΅Π½ΡŒΡˆΠΈΡ‚ΡŒ ΠΈΡ… количСство Π½Π° этапС проСктирования.
  • Π“Π°Π±Π°Ρ€ΠΈΡ‚Ρ‹ Π΄ΠΎΠΌΠ° ΡΠΎΡΡ‚Π°Π²Π»ΡΡŽΡ‚ 11 ΠΌΠ΅Ρ‚Ρ€ΠΎΠ² Π² Π΄Π»ΠΈΠ½Ρƒ ΠΈ 7 Π² ΡˆΠΈΡ€ΠΈΠ½Ρƒ.
  • Π‘Ρ‚ΠΈΠ»ΡŒ Π΄ΠΎΠΌΠ° – ΠΌΠΎΠ΄Π΅Ρ€Π½, Ρ‡Ρ‚ΠΎ Π΄Π°Ρ‘Ρ‚ ΠΏΡ€ΠΎΠ΅ΠΊΡ‚Ρƒ красочный ΠΌΠΈΠ½ΠΈΠΌΠ°Π»ΠΈΠ·ΠΌ.
  • ΠΠ°Ρ‡Π°Π»ΡŒΠ½Π°Ρ ΡΡ‚ΠΎΠΈΠΌΠΎΡΡ‚ΡŒ этой красотки Π±ΡƒΠ΄Π΅Ρ‚ ΡΠΎΡΡ‚Π°Π²Π»ΡΡ‚ΡŒ 2 880 000Ρ€.

πŸ“œ Π’Π°Ρ€ΠΈΠ°Π½Ρ‚Ρ‹ ΡΡ‚Ρ€ΠΎΠΈΡ‚Π΅Π»ΡŒΡΡ‚Π²Π° Π΄ΠΎΠΌΠ°:

  • ΠšΠ»Π΅Ρ‘Π½Ρ‹ΠΉ;
  • ΠŸΡ€ΠΎΡ„ΠΈΠ»ΠΈΡ€ΠΎΠ²Π°Π½Π½Ρ‹ΠΉ;
  • ΠšΠ°Ρ€ΠΊΠ°ΡΠ½Ρ‹ΠΉ;
  • SIP-ΠΏΠ°Π½Π΅Π»ΠΈ

К ΠΊΠ°ΠΆΠ΄ΠΎΠΌΡƒ ΠΈΠ· Π½ΠΈΡ… Π±ΡƒΠ΄ΡƒΡ‚ ΠΊΠΎΠΌΠΏΠ»Π΅ΠΊΡ‚Π°Ρ†ΠΈΠΈ Π΄ΠΎΠΌΠ° Π½Π° Π²Ρ‹Π±ΠΎΡ€. Π’Ρ‹ ΠΌΠΎΠΆΠ΅Ρ‚Π΅ ΡΠ΄Π΅Π»Π°Ρ‚ΡŒ своё Π²Ρ‹Π±ΠΎΡ€ Π½Π° ΡΠ»Π΅Π΄ΡƒΡŽΡ‰ΠΈΠ΅ ΠΊΠΎΠΌΠΏΠΎΠ½Π΅Π½Ρ‚Ρ‹:

  • Π€ΡƒΠ½Π΄Π°ΠΌΠ΅Π½Ρ‚;
  • Π’Π²ΠΎΠ΄ ΠΊΠΎΠΌΠΌΡƒΠ½ΠΈΠΊΠ°Ρ†ΠΈΠΉ;
  • Π”ΠΎΠΌΠΎΠΊΠΎΠΌΠΏΠ»Π΅ΠΊΡ‚;
  • Π˜Π½ΠΆΠ΅Π½Π΅Ρ€Π½Ρ‹Π΅ ΠΊΠΎΠΌΠΌΡƒΠ½ΠΈΠΊΠ°Ρ†ΠΈΠΈ;
  • ЦокольноС, мСТэтаТноС ΠΏΠ΅Ρ€Π΅ΠΊΡ€Ρ‹Ρ‚ΠΈΠ΅;
  • ΠšΡ€ΠΎΠ²Π»Ρ;
  • Π”Π²Π΅Ρ€ΠΈ ΠΈ ΠΎΠΊΠ½Π°

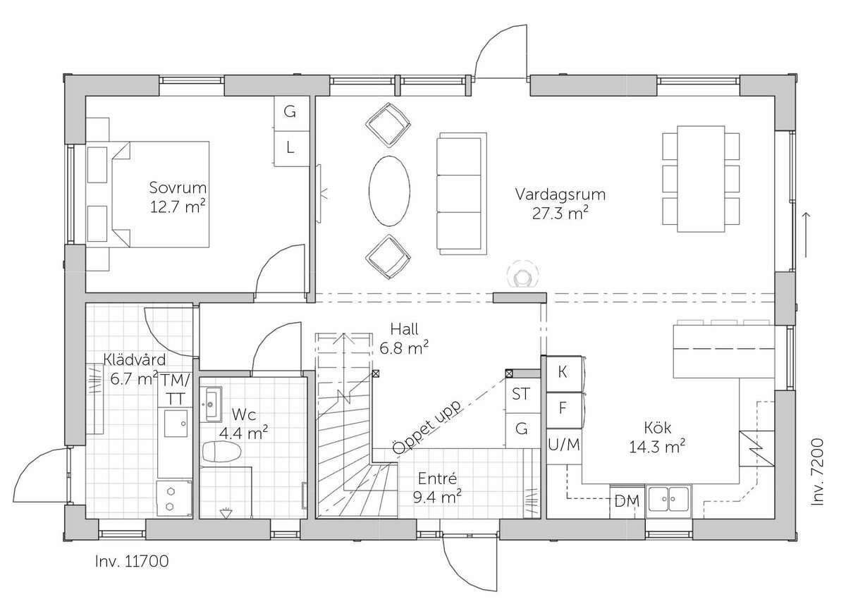
🧐Вак ΠΊΠ°ΠΊ ΠΆΠ΅ Π΄ΠΎΠΌ состоит ΠΈΠ·Π½ΡƒΡ‚Ρ€ΠΈ?

1️⃣ ΠŸΠ΅Ρ€Π²Ρ‹ΠΉ этаТ:

-2

ΠŸΠ΅Ρ€Π²Ρ‹ΠΉ этаТ состоит ΠΈΠ· просторной ΠΊΡƒΡ…Π½ΠΈ, Ρ…ΠΎΠ»Π»Π°, гостиной, спальни ΠΈ санузла.

2️⃣ Π’Ρ‚ΠΎΡ€ΠΎΠΉ этаТ:

-3

Π’Ρ‚ΠΎΡ€ΠΎΠΉ этаТ совмСщаСт Π² сСбС Ρ†Π΅Π»Ρ‹Ρ… 3 спальни ΠΈ Π²Π°Π½Π½Ρƒ.

Π”ΡƒΠΌΠ°ΡŽ, ΠΏΠΎ ΠΏΠ»Π°Π½Ρƒ Π΄ΠΎΠΌΠ° Π²Π°ΠΌ стало понятно, ΠΏΠΎΡ‡Π΅ΠΌΡƒ ΠΎΠ½ стоит ΠΈΠΌΠ΅Π½Π½ΠΎ Ρ‚Π°ΠΊΠΈΡ… Π΄Π΅Π½Π΅Π³!

-4

ΠŸΠΈΡˆΠΈΡ‚Π΅ Π² коммСнтариях, нравится Π»ΠΈ Π²Π°ΠΌ Π΄Π°Π½Π½Ρ‹ΠΉ ΠΏΡ€ΠΎΠ΅ΠΊΡ‚ Π΄ΠΎΠΌΠ°.

Π’ΠΎΠ·ΠΌΠΎΠΆΠ½ΠΎ, Π²Π°ΠΌ понравятся Π΄Ρ€ΡƒΠ³ΠΈΠ΅ наши ΠΏΡ€ΠΎΠ΅ΠΊΡ‚Ρ‹: