Добавить в корзинуПозвонить
Найти в Дзене

Размышления про септик

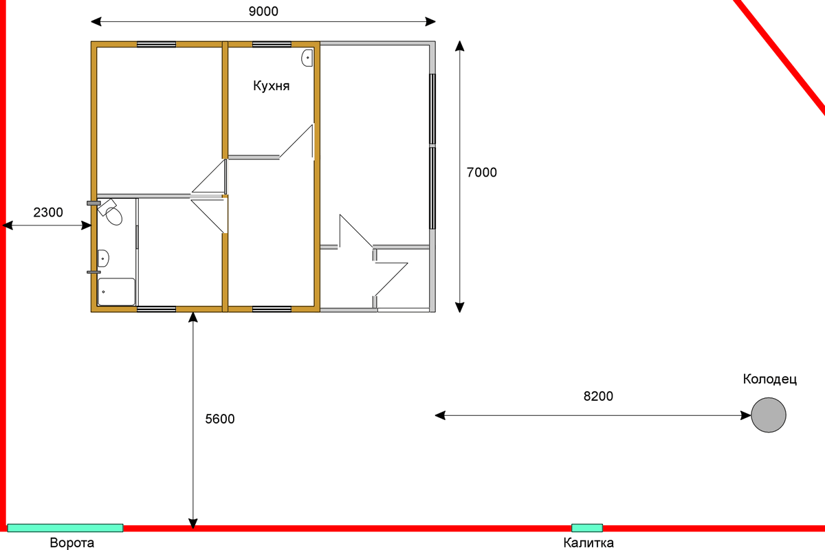
Моей даче в этом году исполняется 21 год. Я решил, что это повод оснастить её уже наконец нормальным туалетом с унитазом. :) Долго думал, где разместить санузел и решил, что лучшее место - неиспользуемая комната 2.85x3.25м. В ней можно сделать перегородку и выделить под санузел помещение 2.85x1.0 м. Почва на даче глинистая, мой участок последний. За правой границей участка (красная наклонная линия) заболоченная территория, а дальше ручей. Чистые стоки можно сливать туда в любых количествах. Уклон участка идёт от ворот вправо и вверх по моем плану. На даче я сейчас бываю раз десять за сезон (в этом году уже два раза ездил одним днём), поэтому объём стоков очень маленький. Возможно, в септик имеет смысл делать слив только от унитаза (а от душа, раковины и кухни - просто под забор). В этом случае объём стоков будет от 0 до 300 литров в месяц, или до 2000 литров в год (возможно и меньше). Думаю, какой выбрать септик или станцию очистки в такой ситуации и, самое главное, где это всё размест

Моей даче в этом году исполняется 21 год. Я решил, что это повод оснастить её уже наконец нормальным туалетом с унитазом. :)

Долго думал, где разместить санузел и решил, что лучшее место - неиспользуемая комната 2.85x3.25м. В ней можно сделать перегородку и выделить под санузел помещение 2.85x1.0 м.

Почва на даче глинистая, мой участок последний. За правой границей участка (красная наклонная линия) заболоченная территория, а дальше ручей. Чистые стоки можно сливать туда в любых количествах. Уклон участка идёт от ворот вправо и вверх по моем плану.

-2

На даче я сейчас бываю раз десять за сезон (в этом году уже два раза ездил одним днём), поэтому объём стоков очень маленький.

Возможно, в септик имеет смысл делать слив только от унитаза (а от душа, раковины и кухни - просто под забор). В этом случае объём стоков будет от 0 до 300 литров в месяц, или до 2000 литров в год (возможно и меньше).

Думаю, какой выбрать септик или станцию очистки в такой ситуации и, самое главное, где это всё разместить.

Сначала я думал взять простейший маленький дешёвый септик Микроб 450 на 450 литров. Он стоит около 15 тысяч рублей, с установкой тысяч 30-40.

-3

Но сливать из него полуочищенные стоки под забор нельзя, а в почву не получится, да и колодец рядом.

Второй вариант - взять большой септик, например СептоБак БИО 2.0 на 2000 литров. Он стоит около 30 тысяч, с установкой тысяч 60 наверное.

-4

Эксплуатировать его, никогда не допуская перелива, и раз в год или реже вызывать машину откачки.
Интересно, кстати, содержимое септика со временем уменьшается в объёме за счёт испарения воды или нет?

Третий вариант - ставить очистные сооружения, вроде Топас, но это уже тысяч 140 с установкой.

-5

В этом случае все стоки, включая душ, раковину и кухню можно лить в ЛОС, а слив этой системы выводить под забор (там почти чистая вода без запаха).

Насколько я понимаю, ЛОС можно ставить вплотную к дому, то есть в моём случае их можно запихнуть слева от дома в промежуток 2.3 м до забора с соседями. Но эта система требует постоянного подключения электричества и не очень понятно, как относится к отсутствию стоков в течение долгого времени.

Посоветуйте, что брать и в каком месте участка ставить, при том, что расположение унитаза в доме изменить не получится и колодец оказался в самом неудобном месте.

© 2021, Алексей Надёжин

Десять лет я каждый день пишу о технике, скидках, интересных местах и событиях. Читайте мой блог на сайте ammo1.ru, в ЖЖ, Дзен, МирТесен, Telegram.
Мои проекты:
Lamptest.ru. Тестирую светодиодные лампы и помогаю разобраться, какие из них хорошие, а какие не очень.
Elerus.ru. Собираю информацию об отечественных электронных устройствах для личного использования и делюсь ей.
Вы можете связаться со мной в Телеграм
@ammo1 и по почте ammo1@mail.ru.