Найти в Дзене

Экскурсия по дому 5 x 5 м².

Точнее 5 x 4.6 м² - 23 м² на этаж. Это по площади как квартира-студия. Статья про "планировку Квартиры студии 23 м²" вызвала живой интерес (более 1000 просмотров). Предлагаю рассмотреть планировку дома аналогичной площади. Считаем квадратные метры. 2 этажа площадью 23 метра каждый. Всего 46 метров. Высота крыши второго этажа позволяет сделать ещё одно перекрытие - и получится трёхэтажный дом площадью 69 м² !!! Для квартиры 69 м² - это комфортная площадь (трёшка средних размеров). Но для дома это очень-очень мало. Три санузла. На 1 этаже санузел нужен? Обязательно! На 2 этаже детская. Там тоже санузел нужен. На мансардном этаже спальня. Там тоже санузел хочется. ... ещё и лестница. Лестница "съела" 2,8 м² на этаж. Всего 8 м². Полезной площади не так уж и много остается. К тому же, если 1 и 2 этаж - полноценные, то мансардный этаж не очень. Окон нет. Крыша скошена, так что половина мансардного этажа имеет высоту 1,8 метров. Головой потолок задеваешь. Гостиная. Про эту гостиную у меня
Оглавление

Точнее 5 x 4.6 м² - 23 м² на этаж. Это по площади как квартира-студия.

Статья про "планировку Квартиры студии 23 м²" вызвала живой интерес (более 1000 просмотров). Предлагаю рассмотреть планировку дома аналогичной площади.

Вот и весь домик.
Вот и весь домик.

Считаем квадратные метры.

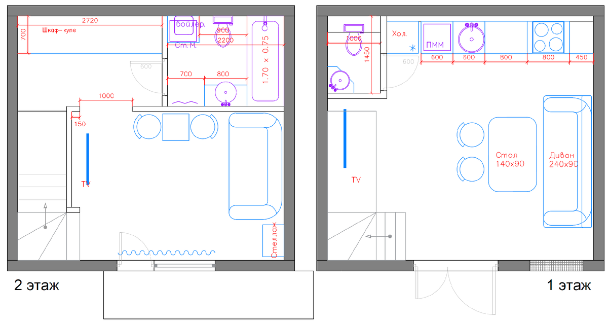
2 этажа площадью 23 метра каждый. Всего 46 метров.

Высота крыши второго этажа позволяет сделать ещё одно перекрытие - и получится трёхэтажный дом площадью 69 м² !!!

Для квартиры 69 м² - это комфортная площадь (трёшка средних размеров). Но для дома это очень-очень мало.

Три санузла.

На 1 этаже санузел нужен? Обязательно!

На 2 этаже детская. Там тоже санузел нужен.

На мансардном этаже спальня. Там тоже санузел хочется.

... ещё и лестница.

Лестница "съела" 2,8 м² на этаж. Всего 8 м².

Полезной площади не так уж и много остается.

план 1 и 2 этажа
план 1 и 2 этажа

К тому же, если 1 и 2 этаж - полноценные, то мансардный этаж не очень. Окон нет. Крыша скошена, так что половина мансардного этажа имеет высоту 1,8 метров. Головой потолок задеваешь.

Впрочем, если окно в крыше сделать, то уютная спальня получится.
Впрочем, если окно в крыше сделать, то уютная спальня получится.

Гостиная.

Про эту гостиную у меня на канале есть отдельная статья: Кухня-гостиная. Три варианта оформления.

Детская.

Прикинем доп. работы.

По полезной площади (по вместительности) этот домик, пожалуй можно сравнить с двушкой средних размеров. Но если в двушке достаточно сделать простой ремонт, то в этом доме нужно кое что достроить.

  1. Лестница в 3 пролёта.
  2. Перекрытие над 2 этажом.
  3. Утепление скатной кровли и окно в ней.
  4. Пристройка-тамбур перед домом.

Это не обычные строительные работы, которые любой джигит из братских республик выполнит. Тут нужны более цивилизованные (и дорогие) специалисты...

Рационально ли? Стоит ли такой дом этих вложений?
Не знаю...

Что лучше: Квартира или такой Таунхаус?

А вы как считаете что лучше: маленький таунхаус или квартира ?
А может быть, правильнее купить землю и построить на ней просторный Дом ?

Предлагаю высказать своё мнение в комментариях к статье.

Канал: Будни Дизайнера Сайт: ТРИ ЛУЧА

🔷 Ремонт и обустройство квартир.
🔶
Дизайн проект ( до 999 р/м² ).
💠 Всяка-Всячина
: Двушка в доме И-209а - какие могут быть варианты планировки.