Добавить в корзинуПозвонить
Найти в Дзене
Папа VSTAVAY

Удобная, а главное ЗАКОННАЯ перепланировка в хрущевке.

Звучит конечно неплохо: "трехкомнатная квартира", но на деле...

Год назад я стал счастливым обладателем трехкомнатной квартиры в центре своего небольшого города. Пощекотал нервы со сделками купли-продажи (на своем канале я уже писал об этом), теперь новая головная боль - РЕМОНТ!

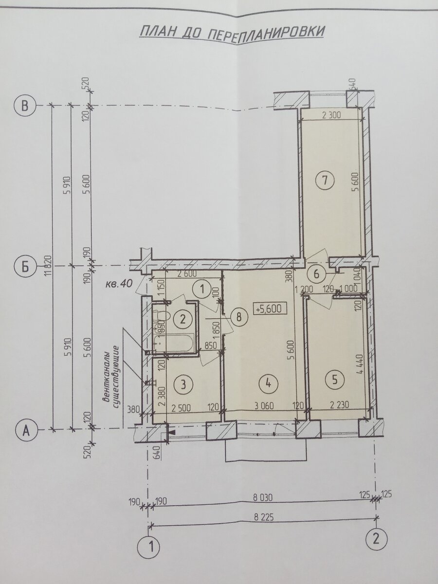
Звучит конечно неплохо: "трехкомнатная квартира", но на деле это небольшая (55,7 кв.м) хрущевка, где ремонт не делали с постройки дома, но квартира была куплена по привлекательной цене, так что я знал на что шел.

План квартиры до перепланировки
План квартиры до перепланировки

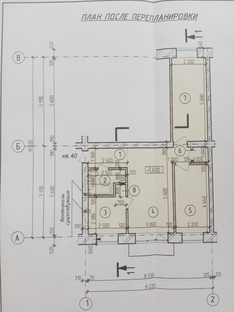
Первым делом конечно было решение сделать перепланировку, посмотрев множество вариантов мы определились, что необходимо расширить коридор, сделать нишу для холодильника на кухне и получится отличная ниша под стиральную машину в ванной. В этом случае мы не затрагиваем несущие стены, так что соседям не о чем волноваться.

Оказалось, что узаконить такую перепланировку не так и сложно, мы заказали в управляющей компании технический паспорт на жилой дом, после получения отправились в проектную организацию, там нам сделали проект перепланировки квартиры. Полученные документы отнесли в архитектурный отдел администрации города и спустя месяц получили РАЗРЕШЕНИЕ на перепланировку квартиры.

План квартиры после перепланирвки
План квартиры после перепланирвки

Сейчас ремонт уже закончен, так что необходимо вновь подготовить документы на внесение изменений в технический план дома. Как только проведем эту процедуру обязательно напишу и об этом.

А пока подписывайтесь на мой канал ПАПА VSTAVAY. Ставьте большие пальцы вверх, а еще можете задавать вопросы в комментариях, я обязательно на них отвечу!