Добавить в корзинуПозвонить
Найти в Дзене
Plastok

Самые опасные ошибки при установке окон и советы домашнему мастеру

Установка новых окон - сложная задача
Оглавление

Выбор и установка новых окон - это не та задача, которая нас может ошеломить, при условии, что мы вооружимся необходимыми знаниями. Для этого нужны компетенции и опыт. Узнайте о самых частых ошибках, и вы сможете установить пластиковые окна сами.

Неправильный монтаж окон

Это может быть как неправильный шаг анкеров или дюбелей, крепящих каркас к косяку, так и недостаточное количество этих креплений, или даже их полное отсутствие. Смелые установщики иногда относятся к монтажной пене как к единственному способу крепления окон.

Окно, закрепленное анкерами на слишком большом расстоянии, недостаточно устойчиво, что приводит к деформации горизонтальных направляющих рамы и нарушению герметичности стыков окна и стены.

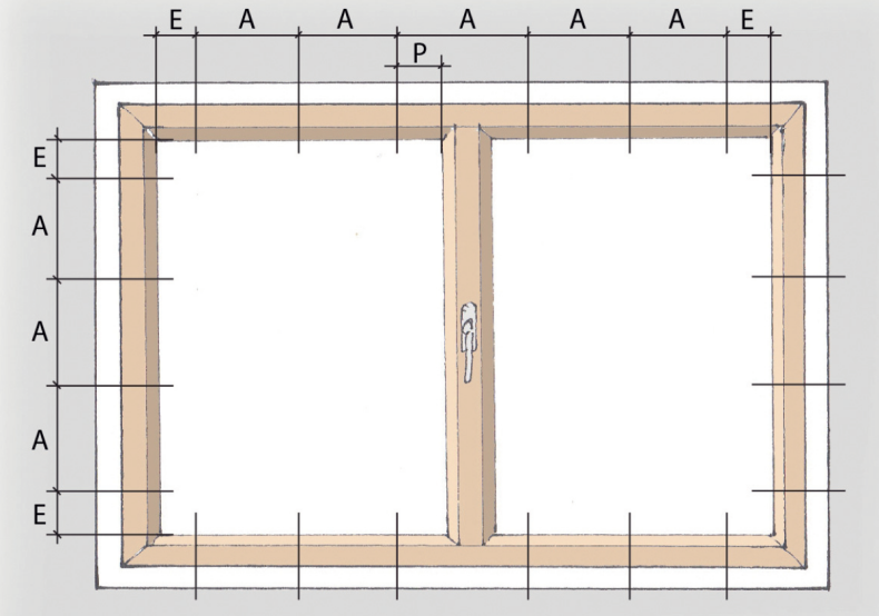
Правильный шаг анкеров
Правильный шаг анкеров

Использование слишком большого количества анкеров приводит к чрезмерной жесткости соединения окна со стеной, что, в свою очередь, ограничивает свободу движения оконной конструкции из-за изменений температуры и влажности: в результате окно может со временем деформироваться, и на поверхности могут появиться трещины. штукатурка.

Наш совет. Монтажную пену нельзя использовать для крепления окна в откосе, а только для заделки стыка по их периметру.

Для правильной установки рамы ее сначала стабилизируют в откосе с помощью деревянных или пластиковых дистанционных клиньев, размещаемых вплотную к ее углам, располагая ее точно по вертикали и горизонтали. После обмеров и регулировки каркас прочно фиксируется в стене дюбелями или анкерами на следующем расстоянии:

  • максимум 70 см - в пластиковых окнах,
  • максимум 80 см в деревянных окнах.
-2

Рекомендации в документации по установке или инструкции по установке для конкретных окон следует считать более важными, чем общие рекомендации относительно расстояния между разъемами, приведенные выше.

Неправильная герметизация окна

Ошибка - вводить слишком мало пены в щель вокруг окна. В результате такой экономии вокруг окна образуются пустоты без уплотнения, а значит - тепловые мосты. Также ошибкой является слишком обильное заполнение щелей между стеной и окном, так как это может привести к деформации оконного профиля.

Дефекты герметизации также могут быть вызваны слишком ранним началом обработки монтажной пены - до того, как она полностью высохнет: такая спешка может привести к уменьшению объема изоляционного слоя и, как следствие, к ухудшению эффективности герметизации.

Причиной дефектов также является неправильный порядок выполнения работ, например, нанесение последнего слоя утеплителя изнутри перед укладкой штукатурки.

-3

Наш совет. Условием правильной герметизации стыков окна и стены является соблюдение правильной последовательности работ:

  1. Перед нанесением пены между стойками каркаса необходимо вставить распорки, чтобы предотвратить их деформацию из-за расширения пены.
  2. Вы также можете выбрать пену с пониженным расширением, благодаря чему меньше риск деформации каркаса.
  3. Перед началом заделки косяки хорошо смочить водой, что повысит адгезию пены.
  4. Заполняем щель на 1/3 своего объема. Пену оставляют сохнуть на время, указанное производителем. После высыхания излишки срезаются ножом.