Добавить в корзинуПозвонить
Найти в Дзене
Филдс

Трешка 104 м² для семьи дизайнера: некоторые фишки захочется повторить каждому

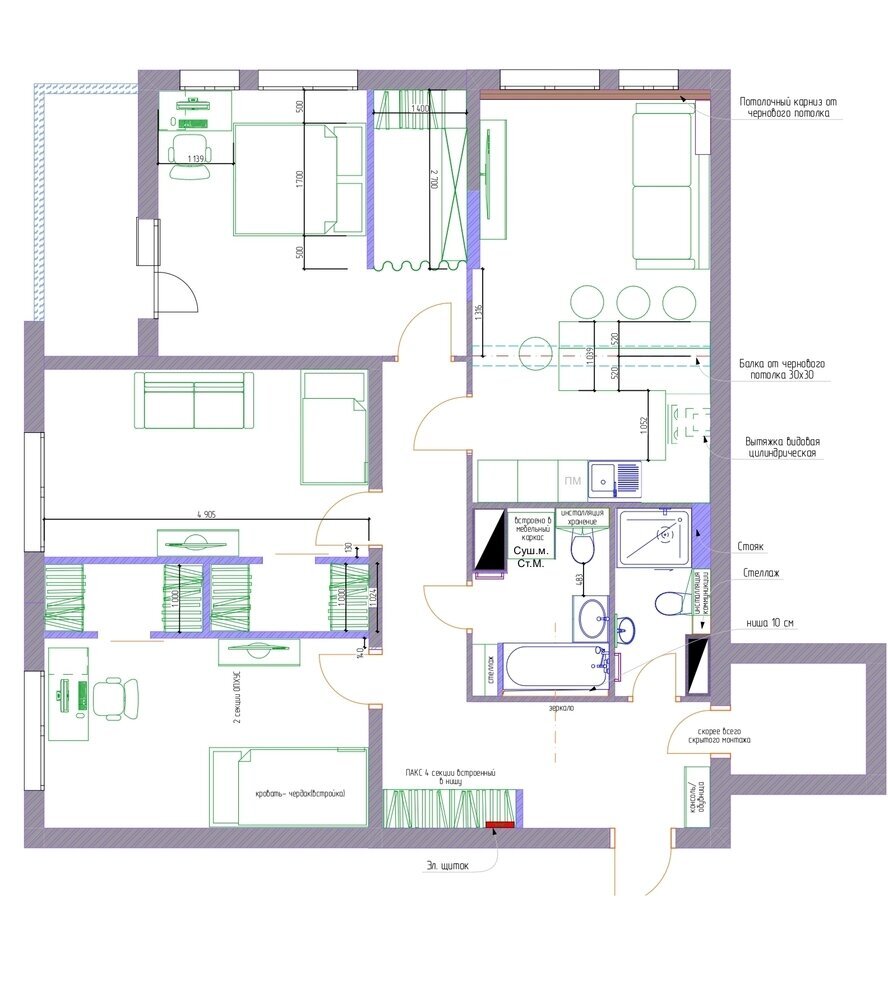
Дизайнер Лена Харлова оформила трехкомнатную квартиру площадью 104 м² для себя и своей семьи. В проекте удалось воплотить множество необычных решений, которые сделали интерьер по-настоящему уникальным. Планировка В результате перепланировки часть объединенной кухни-гостиной отдали спальне, помимо этого сформировали два санузла и две одинаковые детские с гардеробными. Гостиная Стены в комнате покрасили в песочный оттенок, цвет завели и на карнизы, чтобы визуально приподнять потолок. На пол уложили ламинат. Диван расположили вблизи окна. Темные рамы картин на стене за ним, как и кофейный столик необычного силуэта, помогают добавить интерьеру выразительности. Нетипичным решением стала стоящая на полу ТВ-тумба в черно-белом исполнении. Кухня Гарнитур расположили Г-образно и дополнили барной стойкой, которая выполняет роль обеденного стола. Большую часть фасадов оформили под дерево, а навесные модули укомплектовали нежно-голубыми дверцами. Спальня Спальня очень хорошо освещена — в комна
Оглавление

Дизайнер Лена Харлова оформила трехкомнатную квартиру площадью 104 м² для себя и своей семьи. В проекте удалось воплотить множество необычных решений, которые сделали интерьер по-настоящему уникальным.

  • Общая площадь: 104 м²
  • Место: Санкт-Петербург
  • Количество комнат: 3
  • Бюджет: 5 млн рублей
  • Кто здесь живет: семья с двумя детьми
  • Дизайнер: Лена Харлова
  • Стиль: Мария Пятова, Лена Харлова
  • Фото: Мария Пятова

Планировка

В результате перепланировки часть объединенной кухни-гостиной отдали спальне, помимо этого сформировали два санузла и две одинаковые детские с гардеробными.

Гостиная

Стены в комнате покрасили в песочный оттенок, цвет завели и на карнизы, чтобы визуально приподнять потолок. На пол уложили ламинат. Диван расположили вблизи окна. Темные рамы картин на стене за ним, как и кофейный столик необычного силуэта, помогают добавить интерьеру выразительности.

-2

Нетипичным решением стала стоящая на полу ТВ-тумба в черно-белом исполнении.

-3

Кухня

Гарнитур расположили Г-образно и дополнили барной стойкой, которая выполняет роль обеденного стола. Большую часть фасадов оформили под дерево, а навесные модули укомплектовали нежно-голубыми дверцами.

-4

Спальня

Спальня очень хорошо освещена — в комнате два окна и полностью остекленная балконная дверь. Кровать поставили изголовьем к перегородке с гардеробной, так что ее не видно при входе. В изножье предусмотрели неглубокий стол-консоль, за которым при необходимости можно работать.

Акцентной, вопреки традиционному оформлению, сделали стену, смежную с детской. Ее покрасили в насыщенный коралловый оттенок и декорировали лепниной.

-6

Детская

Комнату дочери дизайнер оформила в спокойных тонах. В отделке задействовали МДФ-панели, которые покрасили в цвет карнизов.

-7

Подоконник заменили на столешницу, создав удобную рабочую зону у окна. Откатную дверь в гардеробную сделали зеркальной, чтобы визуально увеличить пространство. Винтажную ТВ-тумбу нашли в одном из старых петербургских домов.

В комнате сына появилась советская бельевица. Ее отреставрировали и кастомизировали.

-9

Прихожая

Прихожую не стали перегружать системами хранения — предусмотрели только встроенный шкаф и комод. В квартире есть отдельная кладовая, в которую ведет дверь скрытого монтажа.

Санузел

В отделке большого санузла с ванной скомбинировали вертикальную белую плитку и краску, на пол уложили керамику с орнаментом. Немаловажную роль в интерьере отвели арочным зеркалам — они уходят прямо в пол, создавая иллюзию дверного проема.

Душевую оформили без лишних изысков. Чтобы сэкономить место, установили узкую раковину без тумбы, а для хранения предусмотрели шкафчик над инсталляцией.

Дизайнер Лена Харлова также приглашает на свой канал на Дзен.

Интересные мнения в комментариях приветствуются. Если материал понравился — ставь лайк!

🖤 Филдс — это не только блог на Дзене, но и магазин дизайнерских предметов интерьера. Заходите на сайт, чтобы увидеть мебель, которую дизайнеры выбирают для своих проектов.