Добавить в корзинуПозвонить
Найти в Дзене

Просторные 70 м2. Оптимальная планировка дома. Высокий мансардный потолок. Две спальни.

Всем привет! Вот и подошли к концу новогодние праздники, с которыми я всех вас поздравляю! Желаю вам в новом 2023г понимать свои потребности и двигаться в сторону их реализации( решать ситуации и находить новые выходы, а не просто говорить, что что то не так, как хотите вы). И будьте здоровы)) А у нас с вами сегодня на обзоре будет проект дома, с жилой площадью 72м2, общей площадью 90м2, размер дома - 9х10 плюс навес под машину - 9х3 Как вам?) Планировка этого дома: Помещения какого назначения мы видим на планировке: В этом доме два входа и выхода, один основной, второй - на задний двор, но я бы еще сделал террасу, это удобнее в эксплуатации и смотрится эстетичнее и более красиво. Быстро пробегусь по всем помещениям и обсудим с вами что здесь ТАК, а что НЕ ТАК: 1. Зал, он же гостиная Не маленький - почти 24м2. Здесь гармонично разместится большой диван, журнальный столик( можно и поработать в гостиной и чай попить - есть куда поставить ноутбук и чашку), повесить большой телевизор, а ещ

Всем привет!

Вот и подошли к концу новогодние праздники, с которыми я всех вас поздравляю! Желаю вам в новом 2023г понимать свои потребности и двигаться в сторону их реализации( решать ситуации и находить новые выходы, а не просто говорить, что что то не так, как хотите вы). И будьте здоровы))

А у нас с вами сегодня на обзоре будет проект дома, с жилой площадью 72м2, общей площадью 90м2, размер дома - 9х10 плюс навес под машину - 9х3

если я не ошибаюсь, то это дом в стиле Шале
если я не ошибаюсь, то это дом в стиле Шале

Как вам?)

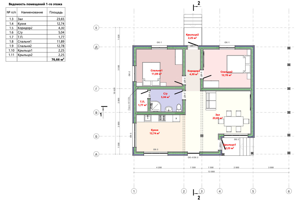
Планировка этого дома:

-2

Помещения какого назначения мы видим на планировке:

  • зал
  • кухня
  • санузел
  • техпомещение
  • две спальни
  • и небольшой коридор между спальнями

В этом доме два входа и выхода, один основной, второй - на задний двор, но я бы еще сделал террасу, это удобнее в эксплуатации и смотрится эстетичнее и более красиво.

Быстро пробегусь по всем помещениям и обсудим с вами что здесь ТАК, а что НЕ ТАК:

1. Зал, он же гостиная

-3
-4
-5

Не маленький - почти 24м2. Здесь гармонично разместится большой диван, журнальный столик( можно и поработать в гостиной и чай попить - есть куда поставить ноутбук и чашку), повесить большой телевизор, а еще лучше полотно и проектор и вуаля)) у вас уже дома есть кинотеатр - классно же?) Большие окна дадут ощущение простора, самое главное разместить их на южной стороне дома, чтобы солнечный свет был как можно дольше внутри и наполнял комнату своим светом и теплом, ну и конечно вид - позаботьтесь, чтобы там был не забор у соседа, а деревья например, чтобы то, что вы видели радовало вас день ото дня.

2. Кухня

-6
-7
-8

Тоже не маленькая - 13м2. Здесь спокойно разместятся кухонный гарнитур с рабочей зоной готовки, большой и удобный обеденный стол, ну и вся необходимая кухонная техника. Здесь так же два больших панорамных окна - поэтому опять же не забываем разместить дом этой стороной на юг. Я бы убрал одно окно и продлил туда кухонный гарнитур - так будет более эффективно использовано пространство и значительно сократятся теплопотери (большие окна- мостики холода, как ни крути).

вот так - убираем окно, продлеваем кухонный гарнитур или ставим сюда радиатор
вот так - убираем окно, продлеваем кухонный гарнитур или ставим сюда радиатор

3. Коридор маленький и нефункциональный, хотя он ведет к выходу на задний двор, а не является прихожей, поэтому шкаф для одежды тут и не нужен.

-10

4. Санузел - 5м2 и техпомещение - почти 2м2 - один вход, поэтому пишу в одном пункте. Здесь поместится и ванна и душевая кабинка - решайте, что вам удобнее, ну и естественно унитаз, раковина, стиральная и сушильная машины и даже небольшой шкаф для полотенец и хранения химии. В техпомещении можно разместить котел и использовать, как кладовую, но если у нас там будет котел, то нужно еще сделать окно, пусть небольшое, но оно должно быть по СНиПам.

5. Спальни - 12м2 и 13м2 - хорошие размеры - здесь у нас может быть двуспальная кровать, шкаф для одежды, письменный стол, дальше на ваше усмотрение - места должно хватить (один из вариантов расположения мебели вы увидите на наших рендерах).

Первая спальня:

-11
-12

Вторая спальня:

-13

Тут много говорить не буду - все мы разные, поэтому и варианты отделки и установки и выбора мебели - будут разные- подумайте, что хотите именно вы и реализуйте это из своей головы в действительность!

Я свое мнение написал, думаю, что у вас оно свое- поделитесь в комментариях - думаю, что всем будет интересно послушать - какие идеи у разных людей, кто то может быть вдохновится и воспримет это как совет.

Теперь техническая часть - состав проекта:

1. КР(конструктивный раздел) - это то, что вы берете с собой на стройку - рабочие чертежи. Он же содержит важную информацию из ЭП(эскизного проекта) - планировку дома с размерами, разрезы, высоты, фасады по осям- все размеры вы можете видеть в нем.

2. 3д модель в формате bimx. (Архикад) - вы можете погулять по своему дому в модели, заглянуть во все комнаты и уже представить, как это - жить в таком доме.

3. Файлы распиловки - это грубо сказать - домокомплект - указаны размеры, по которым нужно распилить доски и их маркировка, чтобы не запутаться, плюс на каждом листе есть информация по конкретному конструктиву - его внешний вид, спецификация по пиломатериалам, правильные узлы соединений.

это распиловка конкретно по этому проекту(без учета контробрешетки и обрешетки), здесь итого 17,7м3
это распиловка конкретно по этому проекту(без учета контробрешетки и обрешетки), здесь итого 17,7м3

Данного пакета документов хватит для самостоятельного строительства, даже, если у вас нет строительного образования.

Стоимость реализации данного проекта составит, примерно:

1. материалы - от 1,8млн.р

2. фундамент - 200тр

3. работы 500тр - 800тр(цены очень разные в разных регионах нашей большой страны)

ИТОГО: от 2,5млн.р вы можете реализовать данный проект, если у вас есть участок, проведены коммуникации - если нет, то считаем их плюсом. Сейчас идет рассмотрение ипотеки на строительство под 2% - вообще красивая ставка, почитайте внимательно, если вам интересен этот вопрос.

ну хорош же?)
ну хорош же?)

И авто под крышей - не страшны осадки, не нужно отчищать машину от снега... брр.. сейчас зима и все меня поймут))

Подробное описание проекта можно увидеть на нашем сайте domokea.ru в разделе готовые проекты домов площадью от 50 до 100м2, что входит - описание подробное и оно соответствует.

-16

Остались вопросы- напишите мне в комментарий -я прочитаю и отвечу вам, если нужен срочный ответ или помощь- пишите Юлие +79124500779

А пока я с вами прощаюсь, до следующего интересного проекта!