Найти в Дзене
Розовый фламинго

Стройка 2022г. Как построить дом🏠 когда нет денег.

Участок в СНТ мы купили несколько лет назад. Заброшенный, заросший с маленьким стареньким сарайчиком 20м2. За 2 сезона мы привели сарай в порядок и более или мене разобрались на участке. Денег на строительство дачи с нынешними ценами, накопить не получается. А дом так хочется, чтобы новенький , чтобы свой. Хоть и небольшой. Я уже молчу о том как всегда мечтала иметь открытую террасу. ❤️ Мы понимали что время идёт. Что скоро наступит третий сезон , а у нас никаких изменений. Проштудировав весь рынок услуг на строительство, ознакомившись со всеми ценами. Мы решились на шаг на котором всегда были категорически против. Взять кредит и построиться. Ох, это страшное слово кредит. Процент безобразно высок, переплаты. Как же так..., да чтобы мы... , да никогда. Но жизнь штука непредсказуемая и от того интересная. Мы взяли кредит. Но очень выгодный. Так как мы выбрали компанию не очень известную , не раскрученную но при этом компетентную мы сэкономили себе бюджет. Именно тот который мы и

Участок в СНТ мы купили несколько лет назад. Заброшенный, заросший с маленьким стареньким сарайчиком 20м2.

За 2 сезона мы привели сарай в порядок и более или мене разобрались на участке.

Денег на строительство дачи с нынешними ценами, накопить не получается. А дом так хочется, чтобы новенький , чтобы свой. Хоть и небольшой.

Я уже молчу о том как всегда мечтала иметь открытую террасу. ❤️

Мы понимали что время идёт. Что скоро наступит третий сезон , а у нас никаких изменений.

Проштудировав весь рынок услуг на строительство, ознакомившись со всеми ценами. Мы решились на шаг на котором всегда были категорически против. Взять кредит и построиться.

Ох, это страшное слово кредит.

Процент безобразно высок, переплаты. Как же так..., да чтобы мы... , да никогда.

Но жизнь штука непредсказуемая и от того интересная.

Мы взяли кредит.

Но очень выгодный.

Так как мы выбрали компанию не очень известную , не раскрученную но при этом компетентную мы сэкономили себе бюджет. Именно тот который мы и будет в итоге переплачивать.

Почему зимой построились?

Тут все просто. Нам сказали что весной цены вырастут на 30 %.

Но у данной компании, если даже цена вырастит на 30 % это все равно будет в разы дешевле чем у других.

Проект , замеры, комплектация.

-2

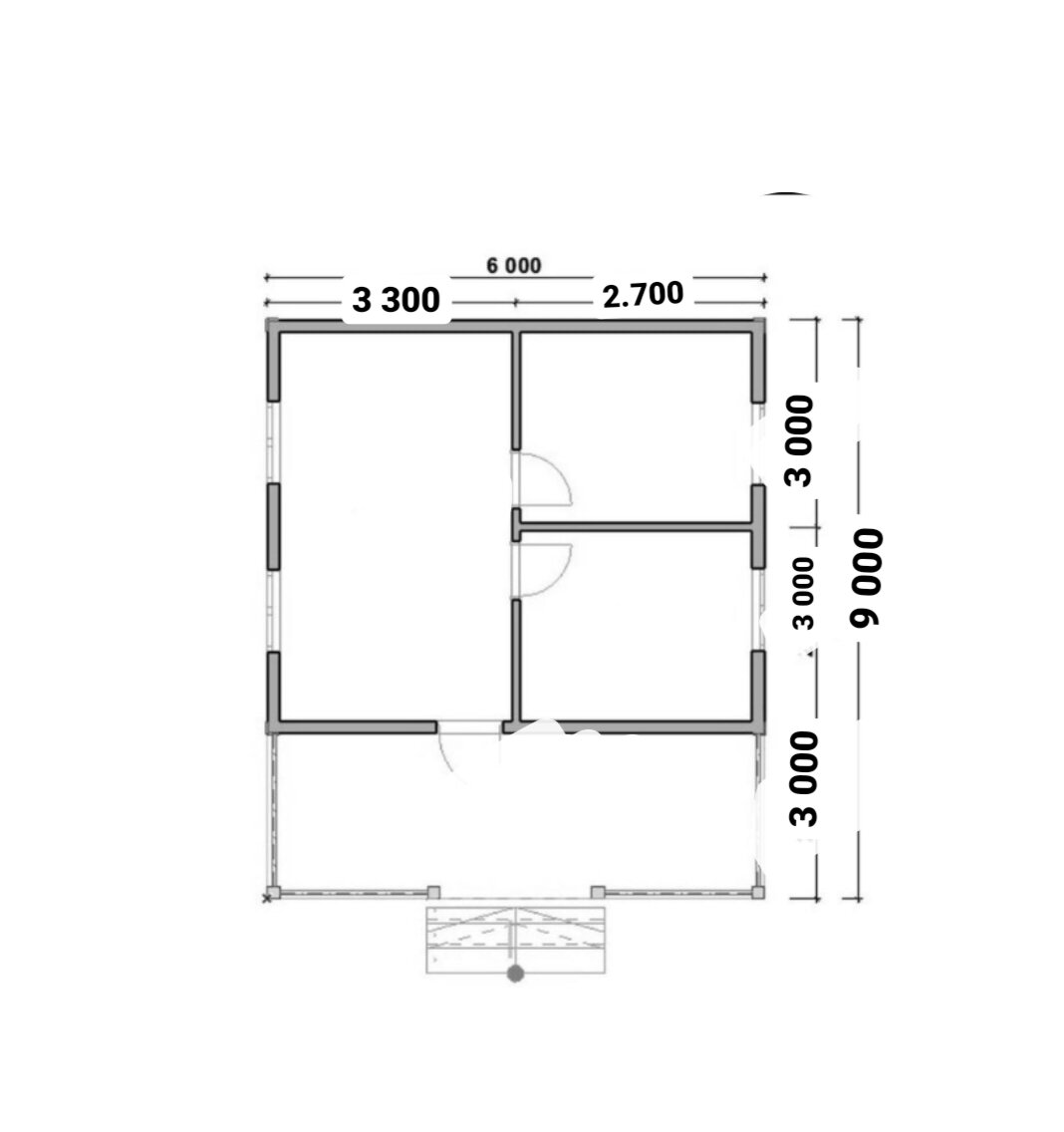
✅ Дом каркасно щитовой. 6 на 6 35кв. и терраса 3 на 6. 18 кв.

✅ Холодный чердак , в будущем мансарда. Жилая площадь 20кв.

✅ Высота потолка первого этажа 2.2 мансарда 2.0

✅ Вагонка внутри , вагонка снаружи.

✅ Утепление 100.

✅ Разводка электричество.

( При большом желание от того что высота сваи позволяют можно в будущем добавить внизу пола утеплитель и сделать его подходящим для зимнего проживания. )

➖ Терраса в стоимость не входила. Только фундамент под неё.

Мы весной будем что-то доделывать что-то переделывать. Например купим другие межкомнатные двери, доделаем террасу.
Мы весной будем что-то доделывать что-то переделывать. Например купим другие межкомнатные двери, доделаем террасу.

Время стройки.

Ровно 2 недели. Хоть нам и не были важны сроки, согласитесь весьма оперативно.

Стоит отметить что работа выполнена качественно. Не халтура.

Мы позвонили в компанию а через 2 дня уже приехали ставить фундамент. Без рекомендации и отзывов. Просто нашли на Авито.

-4

Стоимость .

Это самый актуальный вопрос у всех подписчиком моего Инстаграмма , после интерьера конечно.

Так вот, домик в такой комплектации обошёлся нам в 550 тысяч.

Дом летом уже должен выглядеть как-то так. 😉
Дом летом уже должен выглядеть как-то так. 😉

Что касается интерьера то планируется смесь шале и сканди.

-6