Добавить в корзинуПозвонить
Найти в Дзене
Настоящий ремонт

Ванная комната 3.8м с плиткой Villeroy Boch в Одинцово.

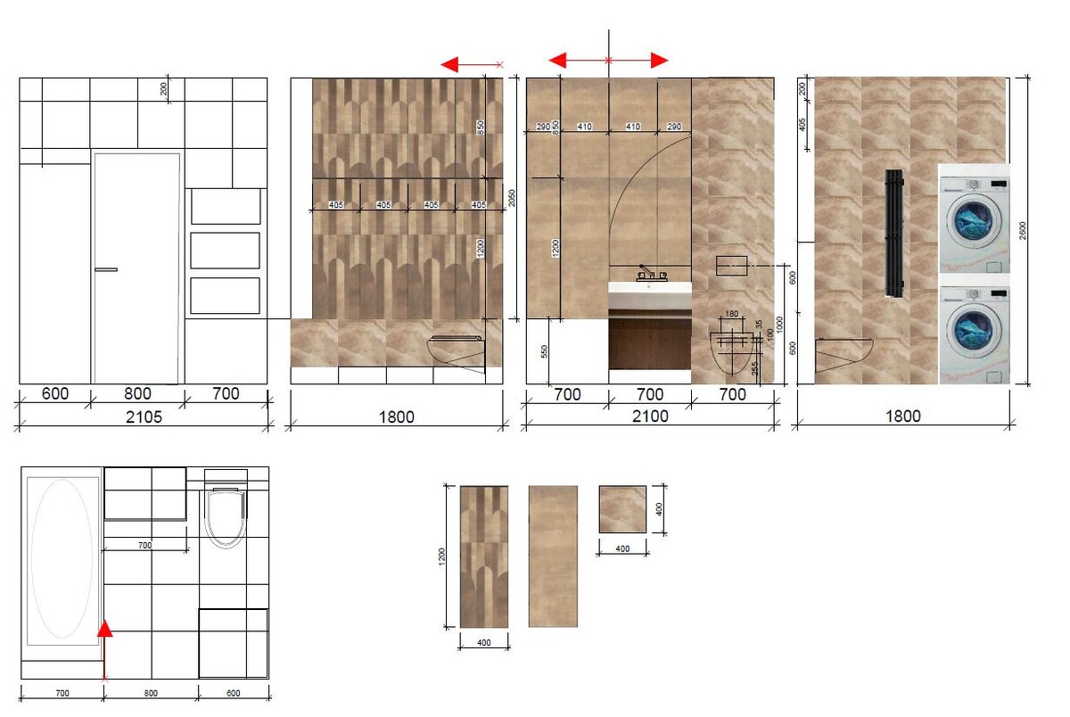
Небольшая ванная комната ( 3.8 м) должна была включать в себя 4 предмета -полноценную ванну, раковину, инсталляцию с туалетом , и колонку из стиральной и сушильной машины. Для создания ощущения дорогого отеля была выбрана коллекция плитки Villeroy Boch Arc Noir Matt бежевого цвета с небольшим рельефом и мелким шиммерным блеском. На таком цвете не будет видно желтоватых разводов от высохших капель что облегчает уборку. В торце ванной будут сделаны стеклянные полочки для флаконов. Зеркало овальной формы поддерживает геометрию основной коллекции плитки. Черный цвет душа и кранов повторяется и в полотенцесушителе и элементах стиральных машин. Обязательно использовать электрический полотенцесушитель а не водяной . Водяной змеевик является самым опасным с точки зрения протечек местом сантехнического оборудования. Для хранения бытовой химии было принято решение не закрывать экран ванной плиткой а сделать раздвижной экран в общей цветовой гамме. При планирование колонны из стиральной и суши

Небольшая ванная комната ( 3.8 м) должна была включать в себя 4 предмета -полноценную ванну, раковину, инсталляцию с туалетом , и колонку из стиральной и сушильной машины.

Раскладка плитки и расположение оборудования.
Раскладка плитки и расположение оборудования.

Для создания ощущения дорогого отеля была выбрана коллекция плитки Villeroy Boch Arc Noir Matt бежевого цвета с небольшим рельефом и мелким шиммерным блеском. На таком цвете не будет видно желтоватых разводов от высохших капель что облегчает уборку.

-3

В торце ванной будут сделаны стеклянные полочки для флаконов.

-4

Зеркало овальной формы поддерживает геометрию основной коллекции плитки.

Черный цвет душа и кранов повторяется и в полотенцесушителе и элементах стиральных машин.

-5

Обязательно использовать электрический полотенцесушитель а не водяной . Водяной змеевик является самым опасным с точки зрения протечек местом сантехнического оборудования.

-6

Для хранения бытовой химии было принято решение не закрывать экран ванной плиткой а сделать раздвижной экран в общей цветовой гамме.

При планирование колонны из стиральной и сушильной машины следует помнить что они занимают больше места чем стандартные машинки 60-60 также должны быть предусмотрены 2 розетки за приборами и слив от сушильной машинки если он нужен для конкретной модели . Также обязательно обе машинки должны быть из одной коллекции и иметь специальный крепежный элемент который крепится между ними.