Добавить в корзинуПозвонить
Найти в Дзене

Проект реконструкции частного дома в Стригино. Часть 1

Собственно, общий внешний вид дома можно увидеть на фото в предыдущей новости. Тут речь пойдёт об интерьере (эскизы внизу публикации).
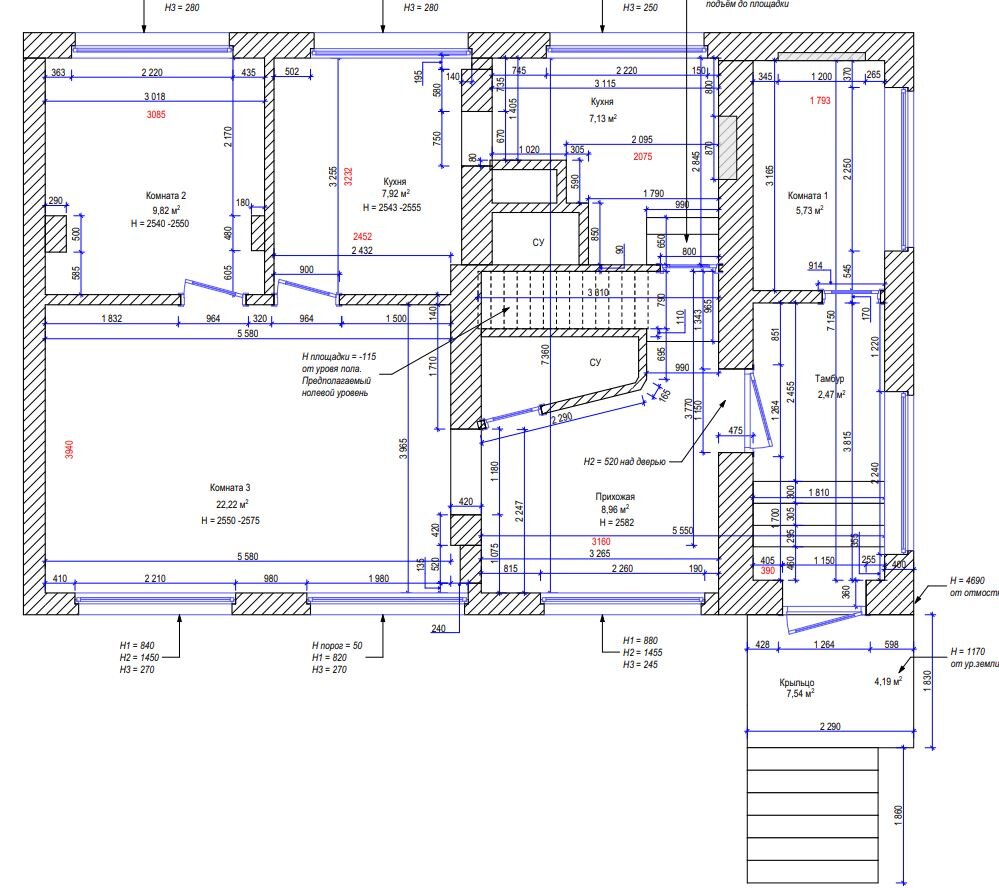
Существующий план дома организован так, что при входе попадаешь в тамбур с дополнительной гостевой спальной. Поворот налево, через вторую металлическую дверь попадаешь в прихожую комнату, и тут начался кошмар. Два микро санузла разделены между собой проходом по лестнице ведущей вниз. Обойдя санузел справа, поднявшись на 2 ступени, а потом спустившись на 2 ступени попадаешь в кухню. Очень странную кухню. Мне она напомнила старые английские дома, и штаб-квартиру Ордена Феникса из Гарри Поттера. Санузел и кухня граничат с большой дымоходной шахтой, которая занимает 1 кв.м площади. К сожалению, по настоянию хозяина я не мог эту шахту куда либо перенести, и сломать. Хотя мог бы вынести шахту в угол помещения, или между окнами для значительного расширения кухни. Сделано было 11 вариантов перепланировки 1 этажа, остановились на последнем. В этом варианте,

Собственно, общий внешний вид дома можно увидеть на фото в предыдущей новости. Тут речь пойдёт об интерьере (эскизы внизу публикации).
Существующий план дома организован так, что при входе попадаешь в тамбур с дополнительной гостевой спальной. Поворот налево, через вторую металлическую дверь попадаешь в прихожую комнату, и тут начался кошмар. Два микро санузла разделены между собой проходом по лестнице ведущей вниз.

Существующий план первого этажа
Существующий план первого этажа

Обойдя санузел справа, поднявшись на 2 ступени, а потом спустившись на 2 ступени попадаешь в кухню. Очень странную кухню. Мне она напомнила старые английские дома, и штаб-квартиру Ордена Феникса из Гарри Поттера.

Санузел и кухня граничат с большой дымоходной шахтой, которая занимает 1 кв.м площади. К сожалению, по настоянию хозяина я не мог эту шахту куда либо перенести, и сломать. Хотя мог бы вынести шахту в угол помещения, или между окнами для значительного расширения кухни.

Сделано было 11 вариантов перепланировки 1 этажа, остановились на последнем. В этом варианте, я вынес лестницу ближе к входу в дом, где ей там самое место. Тем самым лестница становиться комфортная по подъёму и спуску. Вместо старой лестницы соединил две половинки (моечную и унитазную) в полноценный гостевой санузел, и немного расширил кухню.

Предварительная перепланировка
Предварительная перепланировка

Кухонный гарнитур приобрёл Г-образную конфигурацию, а помещение остаётся без обеденной зоны, исключительно для приготовления пищи. Эстетически интерьер решён в лёгком неоклассическом стиле.