Найти в Дзене
Лесстрой Портал

Дом из строганного бруса за 628 тыс.

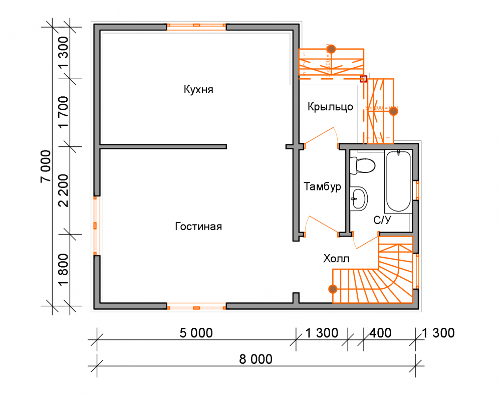
Дом из бруса «Гущино» от строительной компании "Дом из бруса СБК". Площадь застройки: 7 x 8 м, Общая площадь: 84 м2, стоимость: от 628 000 руб. Комплектация: под усадку. Данная комплектация включает доставку и сборку дома Возможно строительство из профилированного бруса и другого сечения, стоимость уточняйте. Стены: • Сруб из бруса 150×150 мм. • Высота потолков 1 этажа 2.7 м. • Высота потолков 2 этажа 2.5-2.7 м. • Сборка стен сруба на деревянные нагеля. • Рубка угловых соединений в «ласточкин хвост» (теплый угол). • Все перегородки — брус 100×150 мм Крыша: Крыша • Фронтоны крыши из бруса 150×150мм. • Стропильная система (стропила, ригеля, стойки) – брус 50×150мм • Обрешетка крыши — доска 25×150 мм. • Покрытие крыши рубероидом Перекрытия: Перекрытия • Балки половые и потолочные — брус 150×100 мм. • Черный пол и потолок-доска 25×150 мм. Прочее: Прочее • Все расходные материалы (деревянные нагеля льноволокно, гвозди, гидроизоляция фундамента, рубероид). • Доставка по Московской области и

Дом из бруса «Гущино» от строительной компании "Дом из бруса СБК". Площадь застройки: 7 x 8 м, Общая площадь: 84 м2, стоимость: от 628 000 руб. Комплектация: под усадку.

-2
-3
-4
-5

Данная комплектация включает доставку и сборку дома Возможно строительство из профилированного бруса и другого сечения, стоимость уточняйте. Стены: • Сруб из бруса 150×150 мм. • Высота потолков 1 этажа 2.7 м. • Высота потолков 2 этажа 2.5-2.7 м. • Сборка стен сруба на деревянные нагеля. • Рубка угловых соединений в «ласточкин хвост» (теплый угол). • Все перегородки — брус 100×150 мм Крыша: Крыша • Фронтоны крыши из бруса 150×150мм. • Стропильная система (стропила, ригеля, стойки) – брус 50×150мм • Обрешетка крыши — доска 25×150 мм. • Покрытие крыши рубероидом Перекрытия: Перекрытия • Балки половые и потолочные — брус 150×100 мм. • Черный пол и потолок-доска 25×150 мм. Прочее: Прочее • Все расходные материалы (деревянные нагеля льноволокно, гвозди, гидроизоляция фундамента, рубероид). • Доставка по Московской области и др. регионам центральной части РФ, разгрузочные работы и сборка на участке заказчика. Важно знать! С учетом пожеланий заказчика, на стадии проектирования и согласования возможно: — внести изменения в планировку дома, разработка индивидуального проекта; — изменить высоту этажей, толщину стен, комплектацию дома и строительных материалов; — для снижения цены строительства заменить не несущие перегородки из бруса на каркасные, поменять их количество; — изменить расположение и количество окон/дверей.

Ссылка на проект: https://lesstroy.net/user/13843/project/37287/