Найти в Дзене
ЭлектроПроект

Для чего нужен план розеток?

Добрый день уважаемые читатели! В этой статье речь пойдет о том, для чего нужен план расположения розеток и силовых групп при начале отделки или ремонта в новостройке. В этой статье мы постараемся максимально подробно разобрать все вопросы и нюансы на которые должен отвечать данный план. Итак, начнем с того, что как должен выглядеть данный план, который в свою очередь является частью проекта ЭОМ (внутреннее электроснабжение и электроосвещение) Для начала хотелось бы сказать, что необходимость в проекте электроснабжения особенно при строительстве или ремонте, а также перепланировки или изменения концепции всего сооружения, фактически постоянная. В каких-то моментах наличие проекта является подотчетной составляющей, однако в большинстве случаев проект необходим для реальной реализации задуманного в нем, в свою очередь все задуманное отражает желания собственника или заказчика. Т.е простыми словами - собственник нового частного дома только что осуществил его строительство и теперь необхо

Добрый день уважаемые читатели! В этой статье речь пойдет о том, для чего нужен план расположения розеток и силовых групп при начале отделки или ремонта в новостройке.

В этой статье мы постараемся максимально подробно разобрать все вопросы и нюансы на которые должен отвечать данный план.

Итак, начнем с того, что как должен выглядеть данный план, который в свою очередь является частью проекта ЭОМ (внутреннее электроснабжение и электроосвещение)

План прокладки и расположения силового электрооборудования для кафе.
План прокладки и расположения силового электрооборудования для кафе.

Для начала хотелось бы сказать, что необходимость в проекте электроснабжения особенно при строительстве или ремонте, а также перепланировки или изменения концепции всего сооружения, фактически постоянная. В каких-то моментах наличие проекта является подотчетной составляющей, однако в большинстве случаев проект необходим для реальной реализации задуманного в нем, в свою очередь все задуманное отражает желания собственника или заказчика. Т.е простыми словами - собственник нового частного дома только что осуществил его строительство и теперь необходимо решить вопрос с монтажем электроснабжения. Для этого он заказывает проект электроснабжения (ЭОМ), чтобы в дальнейшем по данному проекту монтажная компания могла реализовать все задуманное в нем.

Теперь подробно расскажу на какие вопросы отвечает именно данный план проекта электроснабжения:

1. Это конечно само расположение всех розеток с наименованием принадлежности их к группе электроснабжения и высотой установки от уровня пола.

2. Тип и вид самой розетки, а также высота их установок от уровня пола. Они бывают встраиваемой установки и открытой, двойные и одинарные, с защитным контактом и без, 1-фазные и 3-фазные (220/380В), а также по степени защиты. Подробно об это я напишу в нашей следующей статье.

3. Расположение распределительных (ответвительных коробок). Обычно проектировщики этим пренебрегают, однако профессионалы обязательно отображают их на планах, что значительно помогает монтажникам.

4. Место расположения группового (распределительного) щита объекта, высота его установки.

5. Место расположения силовых выводов. Когда например на объекте устанавливается оборудование подключаемое напрямую от автоматического выключателя (коммутирующего устройства в щите), а не через розетку. Например таковыми являются двигатели приточной и вытяжной системы.

6. Место устройства технологических отверстий в стенах для прокладки кабелей. Обычно проектировщики тоже пренебрегают данной процедурой пуская это на усмотрение монтажной организацией, но все же это помогает для общего понимания и просчета сметных документов.

7. Вид кабеля группы электроснабжения, его сечение и длинна.

8. Место подъема и опуска кабельных линий.

9. Способ прокладки кабельных линий (в штробах, лотке или трубе гофрированной с протяжкой)

10. Наименование помещений и их площадь.

11. Вспомогательные указания и расшифровки обозначений.

12. Примечания.

А также иные обозначения, дополнения и указания к монтажу, технические условия и обозначения.

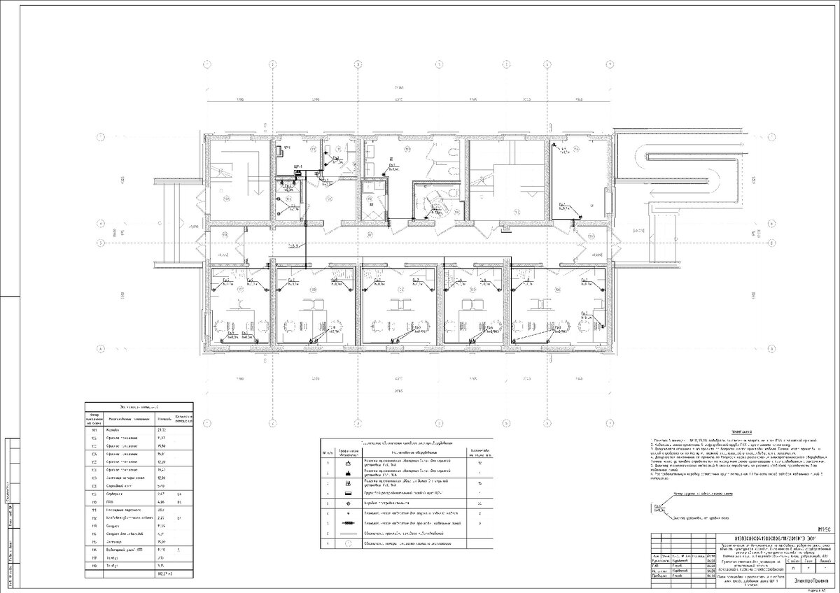
План прокладки и расположения силового электрооборудования для офисного помещения.
План прокладки и расположения силового электрооборудования для офисного помещения.

Как видно из перечня, все эти пункты помогают ответить на все возможные вопросы с которыми можно столкнуться при монтаже электропроводки.

В заключение хотелось бы подчеркнуть, что в первую очередь проект необходимо разрабатывать технически правильно (в соответствии с действующими ГОСТ, СНиП и СП), удобно с точки зрения читаемости чертежей и самое главное возможности реализации отображенного в Ваших чертежах.

В следующих статьях мы поговорим о других наиболее важных вопросах которые нельзя не учитывать при расчетах и проектировании электроснабжения

Подписывайтесь на мой канал, следующая статья - новые познания в нашем деле.