Найти в Дзене
Alexs plans

Наконец закончили свою кухню мечты. Где заказывали? Сколько стоила? И какие ошибки мы допустили?

Привет дорогой читатель! Мы наконец закончили кухню. Ура! Путь этот был не простым, стоил сил, средств и нервов, но результат того стоил. В этой статье я поделюсь всем, что узнала в процессе создания своей кухни. Расскажу об опыте работы с одним из крупных производителей кухонь. Ну и конечно покажу свою кухню в деталях. Поехали...
1. Дизайн-проект, материалы и первые сложности
Дизайн для меня
Оглавление

Привет дорогой читатель! Мы наконец закончили кухню. Ура! Путь этот был не простым, стоил сил, средств и нервов, но результат того стоил. В этой статье я поделюсь всем, что узнала в процессе создания своей кухни. Расскажу об опыте работы с одним из крупных производителей кухонь. Ну и конечно покажу свою кухню в деталях. Поехали...

1. Дизайн-проект, материалы и первые сложности

Дизайн для меня оказался самой сложной частью. Именно он занял наибольшее количество времени, вызвал споры и сомнения. О процессе выбора и согласования проекта я уже рассказывала в статьях:

Выбираю кухню в новенькую квартиру. Как мне поместить все на 4х квадратных метрах?

Выжимаем максимум функциональности из кухни за 180 тысяч рублей. Поговорим о кухонной технике.

3 проекта кухонь от дизайнеров. Сколько стоит обставить 4 квадратных метра?

Финально мы остановились на таком проекте.

Все фасады (кроме ПММ, бутылочницы и верхнего ящика) без ручек, открываются нажатием. Высота столешницы 91 см.
Все фасады (кроме ПММ, бутылочницы и верхнего ящика) без ручек, открываются нажатием. Высота столешницы 91 см.

Просчет такого проекта мы делали в нескольких компаниях, которые были готовы сделать нам кухню в короткий срок и в условиях карантина. Вариантов оказалось не много: Стильные кухни, Кухни Мария, Кухни Сити.

По результатам расчетов оказалось, что стоимость нашего проекта в данных компаниях получается примерно одинаковая (порядка 270 т.р. без техники, но с учетом каменной раковины, смесителя и фильтров) и мы решили остановиться на компании с максимально известным именем. Выбрали "Стильные кухни".

Сразу скажу, заказывая достаточно дорогую кухню у известного производителя, я ожидала высокий уровень сервиса. К сожалению, вплоть до этапа установки я этого сервиса не увидела.

Что НЕ ПОНРАВИЛОСЬ на этапе проекта?

  1. Некомпетентность менеджера. Эта кухня стала первой в нашей с супругом жизни. Какого-либо опыта у нас нет, поэтому помощь профессионалов была нам очень важна.
    Увы, наш менеджер косячила практически все время. Сначала присылала расчеты с двумя холодильниками, потом забывала добавить шкаф, затем у нас были приключения с открыванием холодильника (поскольку кухня стоит в нише, нужно было просчитать, насколько необходимо отодвинуть холодильник, чтобы он открылся).
    В результате я даже просила сменить менеджера, но руководитель убедила меня, что не стоит этого делать и текущий менеджер исправится.
    После разборок работать действительно стало легче, но я не учла одного - после всех косяков было потеряно доверие. Я реально перепроверяла все до сантиметра. Сама перемеряла и до последнего дня боялась, что что-то пойдет не так.
  2. Ограниченный выбор материалов корпуса. Возможно, это особенность производителя, но цвет корпуса для светлых кухонь у них всего один - белый. Серые оттенки - очень темные, деревянные - рыжие. Конечно, это все вкусовщина, но меня ограниченный выбор смутил. С фасадами таких проблем нет, там палитра огромная.
  3. Дорогая техника. Нет, не так, ПОДОЗРИТЕЛЬНО дорогая техника. Да, Стильные кухни предлагают качественные бренды Electrolux, Bosсh, Neff, но намного дороже (разница в 1,5 - 2 раза), чем можно найти на том же яндекс.маркете. Изначально мы были готовы купить все в одном месте, но, после сравнения цен на маркете и в смете Стильных кухонь, мы всю технику заказывали сами и в целом остались довольны.

2. Подготовка к установке, большой скандал и снова некомпетентность

Если вы хоть раз заказывали кухню, то наверняка знаете, что на этапе заказа самой кухни и техники приключения только начинаются. Нужно еще перенести розетки, продумать подключение вытяжки к воздуховоду, посудомойки, раковины и прочих девайсов к воде и множество других мелочей.

Все это делается после составления финального проекта и, в идеале, создатели кухни дают даже схему, куда какую розетку перенести, где должен быть вывод для воды и т.д.

Что было у нас? Да ничего, после финальных замеров девушка-менеджер сообщила, что нам нужно перенести 2 розетки (под посудомоечную машину и под варочную панель) и все. Выводы для воды у нас установлены в нужном месте. Все замечательно. Было...

Ровно до момента, когда мы начали переносить эти самые розетки.

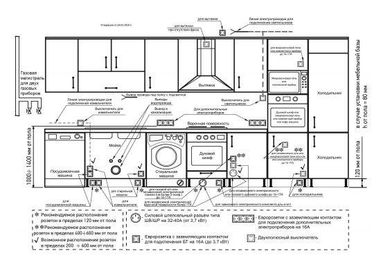
Во-первых, никто не уточнил, куда конкретно нужно их перенести. Прислали схему, но по ней тоже не понятно, как, например, меряется расстояние от пола? Мы, как настоящие инженеры, померили от пола до центра розетки. Оказалось - неверно.

"Рекомендуемое расположение розеток в пределах 200-600 мм от пола". Вот и как понять, что 600 мм - это от пола до верхнего края розетки, а не до центра?!
"Рекомендуемое расположение розеток в пределах 200-600 мм от пола". Вот и как понять, что 600 мм - это от пола до верхнего края розетки, а не до центра?!

Во-вторых, розеток не хватало для всей встроенной техники. Хорошо, что мы сами еще раз пересчитали все девайсы и удвоили несколько розеток, в противном случае жила бы наша кухня на удлинителях.

Вишенкой на торте стала вода. За два дня до установки кухни мне приходит СМС с перечнем того, что должно быть подготовлено к установке и там неожиданным образом есть целый список требований к водяным коммуникациям. За 2 дня до установки кухни! В итоге моя душа не выдержала и после 45 минут скандала на всех уровнях удалось добиться, чтобы установщик сделал все, что нужно сам.

3. Сборка и установка

Эта часть оказалась самой успешной. Установщик, который работал у нас, просто мой идеал мастера. Приходил вовремя, сам замечал нюансы и косяки производства. Благодаря его внимательности нам удалось заменить поцарапанные фасады, их оказалось 8 штук! Один фасад вообще приехал на 2 см меньше, чем по проекту. В верхнем ящике был ошибочно установлен нажимной мехнизм tip-on, хотя по проекту предполагалась врезная ручка и вместе они не работают.

Здесь "Стильные кухни" проявили себя хорошо и без проблем все заменили. Переделки заняли всего неделю, а не месяц, как у других производителей. И за пару приездов установщика все было устранено.

Подводя итог

За эти два месяца подготовки кухни я поняла следующее:

1. Доверие и уверенность в профессионализме дизайнера/менеджера - максимально важны. Если есть хоть минимальные сомнения - менеджера нужно менять.

2. Идеально и "под ключ" не бывает. Хотя может и бывает, если у вас есть дизайнер с авторским надзором, во всех остальных случаях - увы. Даже за очень немаленькие деньги все равно приходится вникать в то, что происходит. С этим можно только смирится.

3. Важно говорить, если что-то не устраивает. Иногда приходится говорить громко и на разных уровнях, но это работает. Компании сейчас следят за репутацией и стараются держать контакт с клиентом. После того, как я рассказала о ситуации с подготовкой к установке кухни в своем инстаграм (3500 подписчиков), буквально в течение 15 минут со мной связалась служба клиентского сервиса и решила проблему.

В результате я осталась очень довольна своей кухней, постепенно дополняю ее аксессуарами и нужными мелочами.

Вот такой опыт со "Стильными кухнями" был у меня. А как родилась ваша кухня? Или вы еще в процессе?