Добавить в корзинуПозвонить
Найти в Дзене
ВИД СВЕРХУ

Однушка. Покупай с умом, 7 вариантов планировочных решений.

Вариантов планировочных решений однокомнатных квартир на рынке, с первого взгляда, очень много. Если присмотреться все сводится к нескольким типам планировок, о которых сегодня расскажу. 1. Хрущевка В хрущевках, как правило, есть два основных планировочных варианта квартир. Отличаются они расположением входа и окон. Такая квартира подойдет для тех, кто не любит готовить, но любит приглашать к себе друзей, а просторную комнату можно делить на зоны, поэтому места хватит всем. 2. Гардеробная вместо шкафа Второй тип планировок часто встречающихся в новостройках - это однушки с кладовками/гардеробными, вариантов много суть одна (смотри примеры в галерее). Как правило, в таких квартирах квадратная/прямоугольная прихожая, санузел с кухней находятся смежно и комната смежная с гардеробной. Единственная квартира, которую можно выделить среди этого многообразия-однообразия - это с "утилитирум" (местом под стиралку и прочие бытовые вещи). Из плюсов: просторная ванна без стиралок/сушилок и корзин
Оглавление
Фото взято с pinterest.ru
Фото взято с pinterest.ru
Вариантов планировочных решений однокомнатных квартир на рынке, с первого взгляда, очень много. Если присмотреться все сводится к нескольким типам планировок, о которых сегодня расскажу.

1. Хрущевка

В хрущевках, как правило, есть два основных планировочных варианта квартир. Отличаются они расположением входа и окон. Такая квартира подойдет для тех, кто не любит готовить, но любит приглашать к себе друзей, а просторную комнату можно делить на зоны, поэтому места хватит всем.

2. Гардеробная вместо шкафа

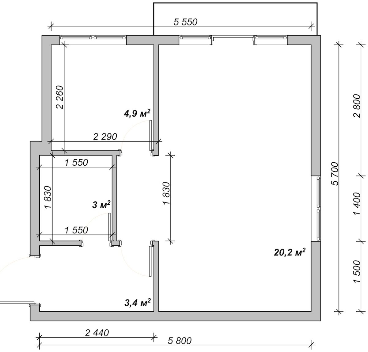
Второй тип планировок часто встречающихся в новостройках - это однушки с кладовками/гардеробными, вариантов много суть одна (смотри примеры в галерее). Как правило, в таких квартирах квадратная/прямоугольная прихожая, санузел с кухней находятся смежно и комната смежная с гардеробной.

Единственная квартира, которую можно выделить среди этого многообразия-однообразия - это с "утилитирум" (местом под стиралку и прочие бытовые вещи). Из плюсов: просторная ванна без стиралок/сушилок и корзин с грязным бельем, есть место для хранения пылесоса, швабры, тазиков и бытовой химии. (Сделаю подробный разбор на эту квартиру в следующих статьях).

Площадь однокомнатной квартиры 33,56 кв.м.
Площадь однокомнатной квартиры 33,56 кв.м.

3. С нишами под шкаф/кровать

Такие квартиры с нишей под кровать удобно делить на зоны, и что самое приятное, в таком варианте у вас в комнате стоит и кровать и диван! Плюс, есть шкаф в прихожей и выделенная грязная зона. Из минусов, мало хранения! Такой вариант подходит для минималистов.

Площадь 38.1 кв.м
Площадь 38.1 кв.м

Площадь 37,4 кв.м.
Площадь 37,4 кв.м.

4. Со стенами под 45 градусов.

Такой вариант планировки случается, когда квартира узкая, а хочется чтобы и площадь комнаты была побольше и место под шкаф в прихожей было. В таких вариантах важно помнить, что может возникнуть проблема с установкой плинтусов и ламинат придется подпиливать тоже.

5. Вход с боку

Самый удачный вариант, такого типа квартиры, найденный на просторах интернета. Для тех кто любит шкафы и хранение.

Площадь 37 кв.м.
Площадь 37 кв.м.

6. Проходная кухня, а почему бы и "ДА"!

Эта квартира привлекает внимание, логика такая: в кухню, как правило, в однокомнатных квартирах, покупатели двери не ставят, либо снимают уже имеющиеся, так как хочется больше пространства.

Площадь квартиры без балкона 35,3 кв.м
Площадь квартиры без балкона 35,3 кв.м

7. Классика!

Ровные прямоугольные комната, кухня и узкая прихожая. Если поставить справа от двери шкаф, то даже одному человеку будет тесно находиться в такой прихожей, мне это напоминает проход в плацкарте между спальными местами.

-10

Поделитесь вашей точкой зрения в комментариях, может быть, мы что-то упустили?

Статьи по теме:

Квартира-полуторка. На что обратить внимание?

Какой должна быть однушка?

7 советов как выбрать квартиру мечты!

Чтобы быстрее всех получать новые статьи и не пропустить интересные подписывайтесь на мой канал "ВИД СВЕРХУ"