Добавить в корзинуПозвонить
Найти в Дзене
Z500 Архитектурное бюро

Z3 Компактный дом с мансардой с камином на террасе.

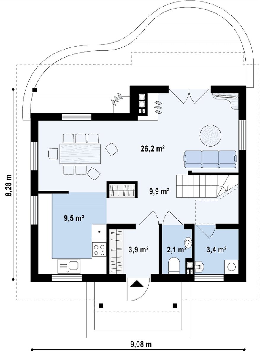
ПроектZ3 представляет собой компактный функциональный дом с мансардой с камином на террасе. В нем очень удачно сочетаются аккуратная форма, комфорт внутреннего пространства и стильный дизайн экстерьера.  Преимущества проекта Z3: Понравился проект? Пишите комментарии. Посмотреть другие проекты вы можете на сайте.
Подписывайтесь чтобы быть в курсе новинок.

ПроектZ3 представляет собой компактный функциональный дом с мансардой с камином на террасе. В нем очень удачно сочетаются аккуратная форма, комфорт внутреннего пространства и стильный дизайн экстерьера. 

-2

Преимущества проекта Z3:

  • функциональная, практичная планировка интерьера обеспечивает максимально удобное использование всех помещений;
  • небольшая несущая стена, отделяющая технические помещения от остальной части дома, позволяет вносить многочисленные изменения в планировку. Например, есть возможность отказаться от «п»-образной перегородки для шкафа в холле, тем самым визуально увеличив пространство гостиной. Кухню можно сделать полностью открытой или полностью закрытой,  и т.д.;
  • Двойной камин обеспечит чудесное барбекю на террасе и создаст уютную атмосферу в доме;
-3
  • окна в гостиной, расположенные с трех сторон, гарантируют хорошее естественное освещение комнаты в течение всего дня;
  • большое мансардное окно с балконом cо стороны сада  делает главную спальню еще более комфортной;
  • санузлы, расположенные один над другим, облегчат оборудование водопровода/канализации в доме;
  • традиционный стиль архитектуры придется по вкусу всем любителям классики.
-4

Понравился проект? Пишите комментарии.

  • Заказать проект можно ЗДЕСЬ! 
  • Все подробности о данном проекте Вы найдете ЗДЕСЬ! 

Посмотреть другие проекты вы можете на сайте.

Подписывайтесь чтобы быть в курсе новинок.