Найти в Дзене
Проектная мастерская №16

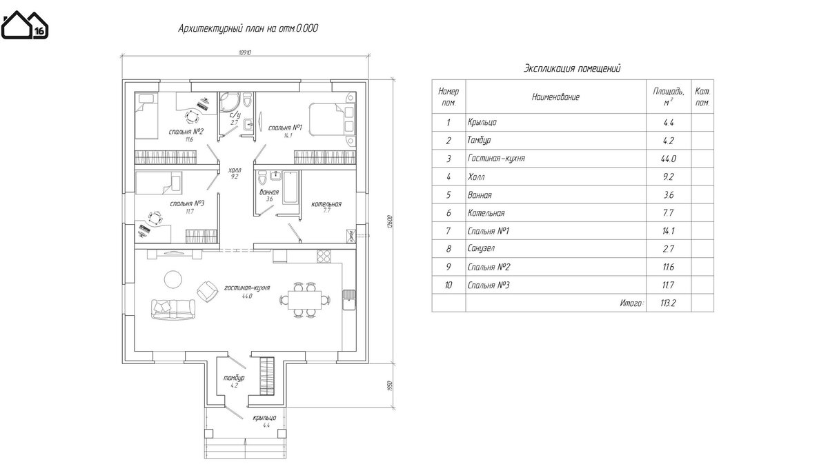
Проект одноэтажного дома площадью 113кв.м. с вынесенным тамбуром и объединенными гостиной и кухней

Вашему вниманию переработка проекта одноэтажного одноквартирного жилого дома со стенами из газобетона ПМ1-105. для заселения семьей из четырех человек

Вашему вниманию переработка проекта одноэтажного одноквартирного жилого дома со стенами из газобетона ПМ1-105. для заселения семьей из четырех человек. Обзор на проект ПМ1-105 смотрите на нашем КАНАЛЕ. Не забудьте подписаться!

В основе планировочного решения лежит деление дома на коллективную и индивидуальную зоны. Внутренние несущие стены делят дом на 3 объема и отдельным объемом вынесен тамбур.

-2

Первый по входу с тамбура объем занимает помещение гостиной-кухни. Далее следует индивидуальная зона, где находятся три спальни, два санузла и помещение котельной. Между коллективной и индивидуальной зоной заполнение проёма выполнено откатными дверями.

-3

Проект жилого дома со стенами из кирпича запроектирован с несущими поперечными стенами. Пространственная жесткость здания обеспечивается совместной работой продольных и поперечных стен. Варианты конструкций принять исходя из условий участка строительства и по согласованию с заказчиком.

-4

Больше проектов смотрите на нашем сайте pm16.ru.

Для заказа проекта воспользуйтесь тел.+79047122103

-5