Добавить в корзинуПозвонить
Найти в Дзене

Что Вам стоит дом построить? (Статья №1. Проект)

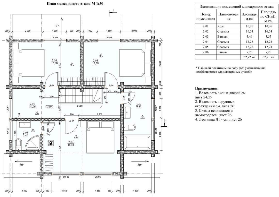
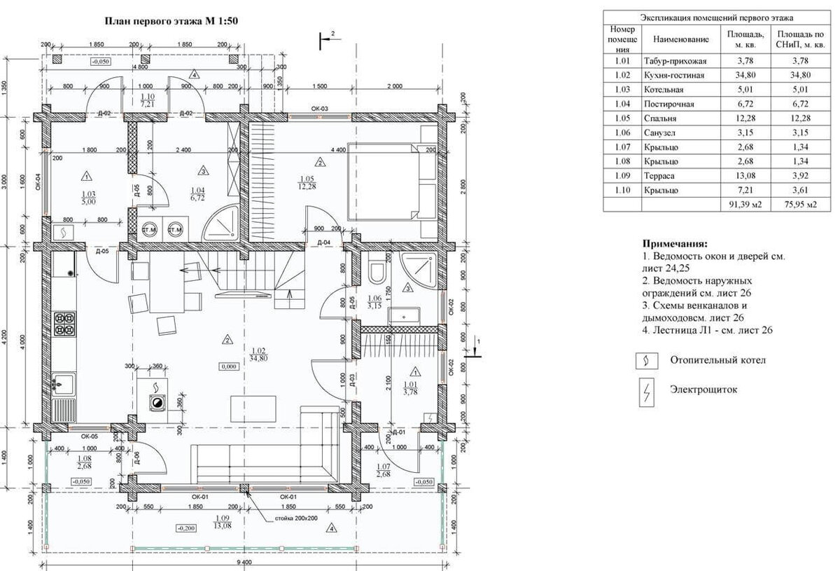
Представим что Вы уже купили участок, провели инженерные коммуникации, посадили дерево, вырастили сына и задумали строительство дома. С чего стоит начать? Строительство дома начинается с создания проекта, никогда не пренебрегайте этим правилом, в будущем стоимость проекта окупиться, а также сократит драгоценное время и нервы. Типовой проект дома удешевляет стоимость строительства, но не всегда улучшает его качество. Индивидуального проект учитывает: Создание архитектурного и рабочего проекта деревянного дома в Московской области стоит около 300 рублей за 1 м.кв. . Проект включает в себя: 1. Общие данные (Технико-экономические показатели, конструктивные решения, примечания) 2. Поэтажные планы. 3. Основные разрезы по дому. 4. Фасады всех 4-х сторон. 5. 3-D визуалиацию (количество видов по согласованию). 6. Развертки стен. 7. Планы по венцам. 8. Ведомость оконных и дверных проемов. 9. План кровли. 10. Развертки скатов. 11. План стропил. Если вы задумали строительство загородного до

Представим что Вы уже купили участок, провели инженерные коммуникации, посадили дерево, вырастили сына и задумали строительство дома. С чего стоит начать?

Строительство дома начинается с создания проекта, никогда не пренебрегайте этим правилом, в будущем стоимость проекта окупиться, а также сократит драгоценное время и нервы. Типовой проект дома удешевляет стоимость строительства, но не всегда улучшает его качество. Индивидуального проект учитывает:

  • Ваше семейное положение и образ жизни.
  • Ваши вкусы и предпочтения.
  • Ориентацию по сторонам света.
  • Подъездные пути.
  • Грунты и рельеф участка.

Создание архитектурного и рабочего проекта деревянного дома в Московской области стоит около 300 рублей за 1 м.кв. .

Проект включает в себя:

1. Общие данные (Технико-экономические показатели, конструктивные решения, примечания)

2. Поэтажные планы.

3. Основные разрезы по дому.

4. Фасады всех 4-х сторон.

5. 3-D визуалиацию (количество видов по согласованию).

6. Развертки стен.

7. Планы по венцам.

8. Ведомость оконных и дверных проемов.

9. План кровли.

10. Развертки скатов.

11. План стропил.

Если вы задумали строительство загородного дома, ремонт в своей квартире, или хотите почерпнуть идею для будущего проекта подписывайтесь на мой канал и следите за публикациями! 👍

На все интересующие вопросы всегда готов дать ответ в комментариях.