Найти в Дзене
Планировка

Проект бани (раздам)

Предлагаю рассмотреть проект бани в каменном исполнении, выполненный для заказчика в 2012г. Разработан проект для МО. Идея проекта - подвал для хранения, баня и терраса-зона барбекю в одном строении.
Конечно, ценители срубов и готовых решений не оценят данный проект. Однако, каждому свое.
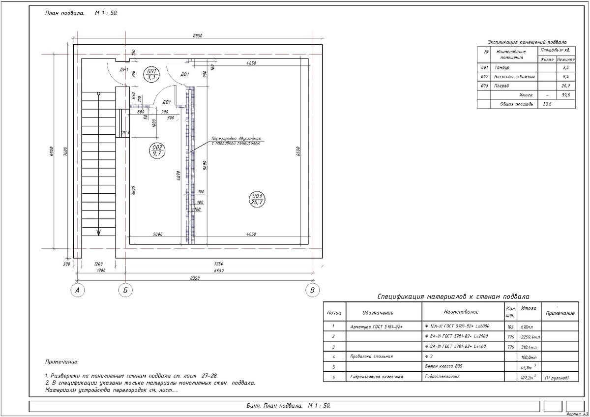
План подвала
Простейшие компактные формы помещений с лестницей в подвал, расположенной снаружи.

Предлагаю рассмотреть проект бани в каменном исполнении, выполненный для заказчика в 2012г. Разработан проект для МО. Идея проекта - подвал для хранения, баня и терраса-зона барбекю в одном строении.

Конечно, ценители срубов и готовых решений не оценят данный проект. Однако, каждому свое.

План подвала
План подвала

Простейшие компактные формы помещения с лестницей снаружи.

План плиты основания. Схема армирования.
План плиты основания. Схема армирования.
Разрез.
Разрез.
План кровли.
План кровли.
План стропильной системы.
План стропильной системы.
Фасады.
Фасады.
-7
Фасады.
Фасады.
Разрез.
Разрез.
План помещений 1-го этажа.
План помещений 1-го этажа.

Проект реализован.

Нужен проект (этот и другие на моем канале) - в комментарии пишите почту куда отправить! Раздаю личный архив. Проект выполнен архитектором.

В комплект входит то, что на картинках.

Понравилось - подписывайся на канал!