Добавить в корзинуПозвонить
Найти в Дзене

Новые проекты из бревна, которые будут популярны в 2021 году!

В 2020 году мы сделали 10 новых проектов и построили по ним дома, бани и даже детскую горку! Показываем, что получилось
Детская горка с качелями из бревна
Самый необычный для нас - детская двухэтажная горка на два этажа с качелями. Причем качели, с двух сторон, качаться можно, как взрослым, так и детям.
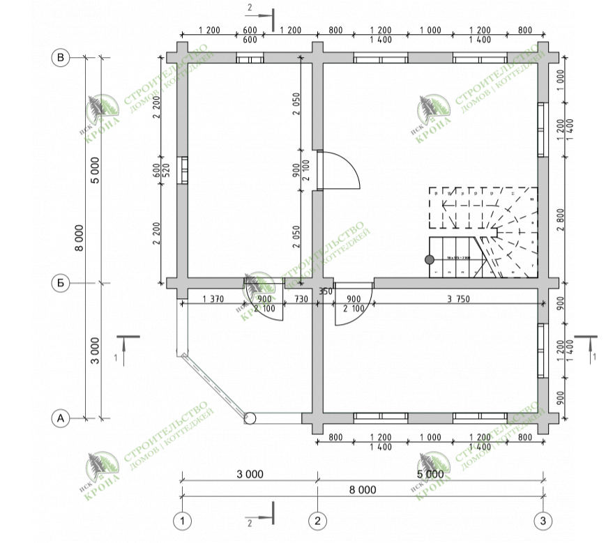
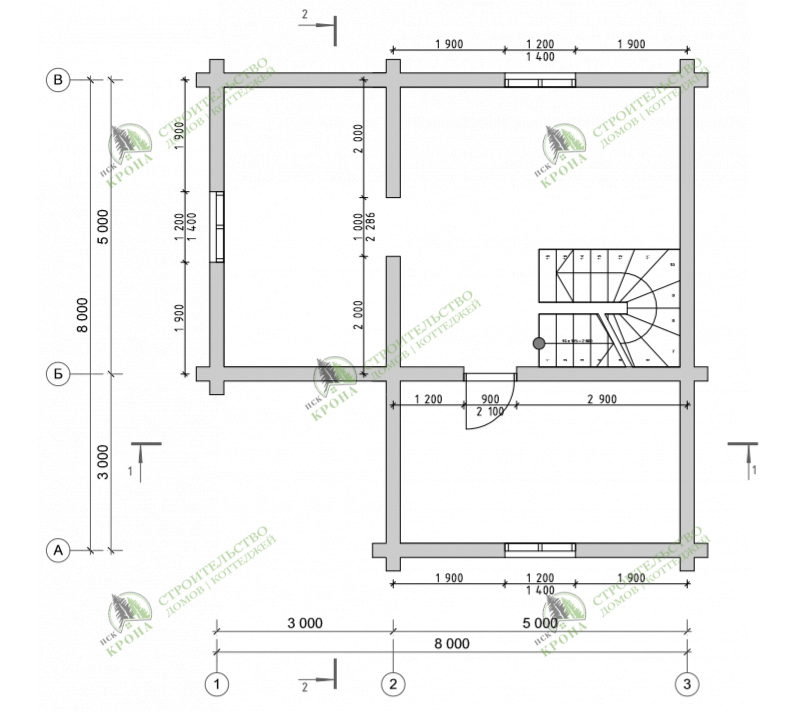
Двухэтажный дом из бревна 8х8 метров

В 2020 году мы сделали 10 новых проектов и построили по ним дома, бани и даже детскую горку! Показываем, что получилось

Самый необычный для нас - детская двухэтажная горка на два этажа с качелями. Причем качели, с двух сторон, качаться можно, как взрослым, так и детям.

Еще один проект - двухэтажный дом размеров 8х8 метров из оцилиндровки. Очень классное крыльцо и кровля, удачная планировка сделают его хитом в следующем строительном сезоне. При этом небольшие размеры позволяют его разместить практически на любом участке.

Еще один наш новый проект - баня 5,4х4 метров! Самая классическая баня, странно почему до этого ее не было у нас! Три помещения: предбанник, моечная и парная. Идеально решение для 2-3 человек.

Все планировки и стоимость проектов можете посмотреть на сайте, каждый из этих проектов мы уже строили.