Добавить в корзинуПозвонить
Найти в Дзене
Проектная мастерская №16

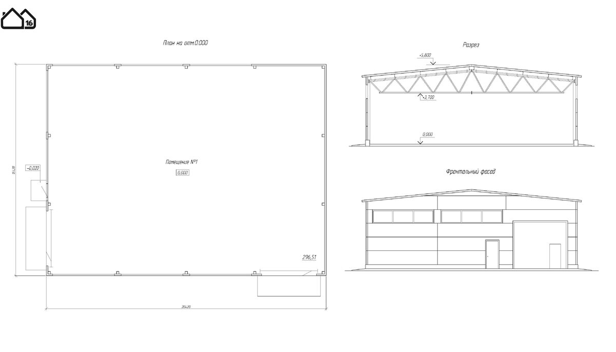
Проект склада площадью 300кв.м. с размерами в осях 15х20м

Проект склада площадью 300кв.м. с размерами в осях 15х20м. Здание запроектировано на металлическом каркасе с колоннами из квадратных труб, фермами по типу молодечно, прогонами из 24 швеллера. Стены и кровля выполнены из сендвич панелей толщиной 120мм. Полы выполнены по бетонному основанию с упрочняющим покрытием. Предлагаем услуги по проектированию зданий на металлическом и монолитном железобетонном каркасах различного назначения (склады, гаражи, производственные здания, теплицы, промышленные корпуса и т.д.). Проектная мастерская №16 - info@pm16.ru

Проект склада площадью 300кв.м. с размерами в осях 15х20м. Здание запроектировано на металлическом каркасе с колоннами из квадратных труб, фермами по типу молодечно, прогонами из 24 швеллера. Стены и кровля выполнены из сендвич панелей толщиной 120мм. Полы выполнены по бетонному основанию с упрочняющим покрытием.

фронтальный фасад здания
фронтальный фасад здания
план и разрез здания
план и разрез здания

Предлагаем услуги по проектированию зданий на металлическом и монолитном железобетонном каркасах различного назначения (склады, гаражи, производственные здания, теплицы, промышленные корпуса и т.д.). Проектная мастерская №16 - info@pm16.ru