Добавить в корзинуПозвонить
Найти в Дзене
HousePlans - проекты домов

«Золотой стандарт» одноэтажного дома — планировка, фасад, габариты: 99,16 м2!

Проект удобного и компактного дома, оптимального для проживания семьи из 4 человек. Комфортабельный коттедж обладает всеми необходимыми помещениями. Жилое пространство организовано рационально, без сквозных комнат или коридоров. Размер дома подходит для строительства на небольшом участке. Конструктив данного проекта (фундамент, стены, кровля и т.д.) будет заменён под Ваши пожелания и климатические условия региона застройки. Внесение этих изменений входит в базовую стоимость проекта. Цена проекта: 10 000₽ Внешний вид, варианты наружной отделки Парадный вход в дом несколько утоплен в стену фасада. Полученная ниша выполняет роль крыльца. Кроме этого, фронтальная плоскость не имеет никаких архитектурных дополнений. Простота решения дает возможность применить массу способов наружного оформления стен. Для отделки подойдут любые стили и варианты, могут быть использованы натуральные или синтетические материалы. Подойдет облицовка натуральным или искусственным камнем, установка фасадных панел
Оглавление

Проект удобного и компактного дома, оптимального для проживания семьи из 4 человек. Комфортабельный коттедж обладает всеми необходимыми помещениями. Жилое пространство организовано рационально, без сквозных комнат или коридоров. Размер дома подходит для строительства на небольшом участке.

Конструктив данного проекта (фундамент, стены, кровля и т.д.) будет заменён под Ваши пожелания и климатические условия региона застройки. Внесение этих изменений входит в базовую стоимость проекта. Цена проекта: 10 000₽

Внешний вид, варианты наружной отделки

Парадный вход в дом несколько утоплен в стену фасада. Полученная ниша выполняет роль крыльца. Кроме этого, фронтальная плоскость не имеет никаких архитектурных дополнений. Простота решения дает возможность применить массу способов наружного оформления стен. Для отделки подойдут любые стили и варианты, могут быть использованы натуральные или синтетические материалы.

Подойдет облицовка натуральным или искусственным камнем, установка фасадных панелей или сайдинга. Допускается двухцветная отделка или применение нескольких материалов. Единственным ограничивающим фактором станет вкус и чувство меры владельца дома.

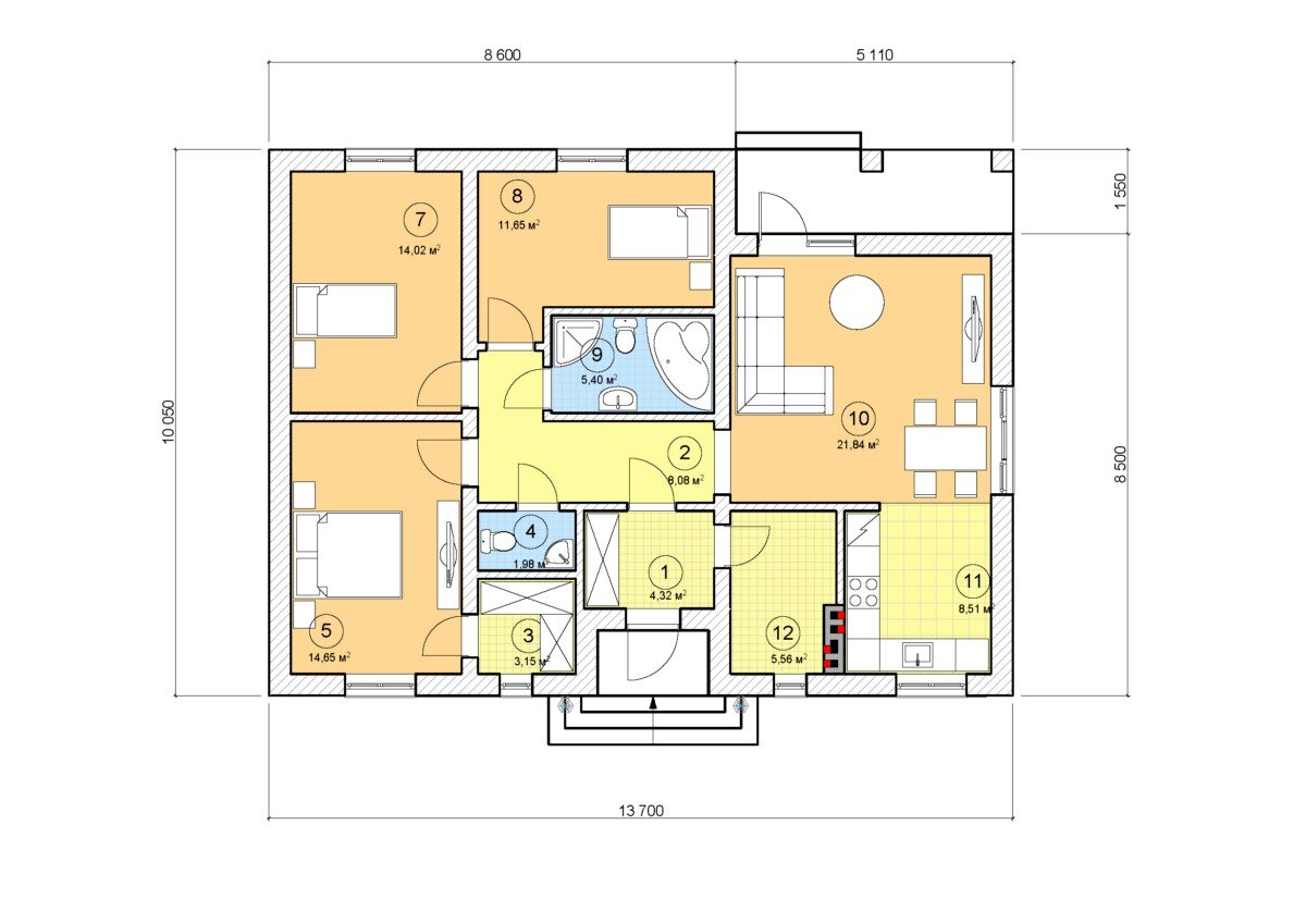
Планировка внутренних помещений

Внутренняя планировка тщательно продумана, учтены все потребности и возможные пожелания жильцов. Парадный вход ведет в тамбур-прихожую, откуда можно пройти либо в холл, либо в котельную. Она оборудована в соответствии со всеми действующими нормами, имеет собственный оконный проем. Левое крыло дома отведено под спальни — супружескую, совмещенную с гардеробной комнатой, и детскую. Вторая спальня для ребенка находится позади холла, рядом со входом в совмещенный санузел. Отдельный, гостевой туалет размещен напротив, слева от входа в холл.

-2

Правое крыло дома представлено совмещенными гостиной, столовой и кухней. Это удобно, позволяет более гибко использовать пространство. Сзади гостиной расположен выход на террасу. Ее размер не годится для проведения мероприятий или званых вечеров, но вполне подходит для семейного отдыха на свежем воздухе. Кроме того, навес над террасой ограничивает проникновение прямых солнечных лучей в гостиную, что в летнюю жару весьма ценно.

Планировка дома произведена удобно, отсутствуют узкие коридоры, мешающие заносить крупную мебель или бытовую технику. Нет проходных комнат, все помещения хорошо освещены и могут проветриваться благодаря оконным проемам. Наличие запасного выхода обеспечивает безопасность при возникновении пожара или утечки газа.

Если понравился проект - ставь палец вверх и подписывайся на канал!

Дзен | HousePlans