Добавить в корзинуПозвонить
Найти в Дзене
Николай Projectcore

Архитектурное проектирование

Советское образование стало основой норм и правил в строительной сфере. Мы имеем выработанные годами и практикой удобства и заменяем их красотой, модой и т.д.
У нас ко всему советскому отношение, как к "совковщине" и несовременности.
Что касается визуальной части - не могу спорить, не обладаю профессиональным архитектурным знанием.
А вот с точки зрения функциональной части - очень даже нормативы применимы в жизни.
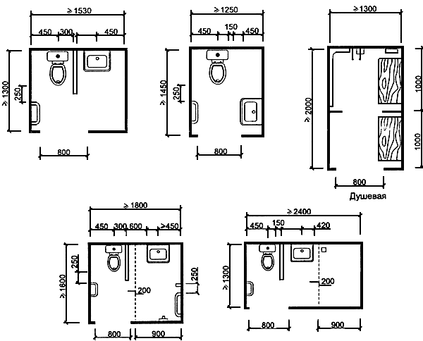
Обратите внимание, что расстояние от центра унитаза до стены 450 мм - длина локтя для манипуляций.
И таких деталей и нюансов в каждом помещений, типе зданий.
Влияет на это ещё и этажность, ориентация по сторонам света.
Поэтому, когда в квартирах расставляют мебель и сантехприборы так, как хочется - натыкаются потом на много неудобств.
О процессе Зачастую процесс проектирования происходит так:
- встречаемся, обсуждаем задачу и назначение здания или помещений;
- заполняем ТЗ по входам, движению потоков людей, ориентации помещений, расстановке мебели ( примерно 5


О нормах и пользе

В современных реалиях ценности изменяются.
Мы ищем дешевле, не понимая с чем сравниваем.

Советское образование стало основой норм и правил в строительной сфере. Мы имеем выработанные годами и практикой удобства и заменяем их красотой, модой и т.д.

У нас ко всему советскому отношение, как к "совковщине" и несовременности.

Что касается визуальной части - не могу спорить, не обладаю профессиональным архитектурным знанием.

А вот с точки зрения функциональной части - очень даже нормативы применимы в жизни.

Обратите внимание, что расстояние от центра унитаза до стены 450 мм - длина локтя для манипуляций.
И таких деталей и нюансов в каждом помещений, типе зданий.
Влияет на это ещё и этажность, ориентация по сторонам света.

Поэтому, когда в квартирах расставляют мебель и сантехприборы так, как хочется - натыкаются потом на много неудобств.

О процессе

Зачастую процесс проектирования происходит так:
- встречаемся, обсуждаем задачу и назначение здания или помещений;
- заполняем ТЗ по входам, движению потоков людей, ориентации помещений, расстановке мебели ( примерно 50 вопросов);
- выдаем эскизный проект, чтобы отследить правильно ли мы поняли пожелания заказчика и все ли заказчик предусмотрел;
- оформляем рабочую документацию;
- выдаем документацию и согласовываем с надзорными органами.

Кучу нюансов в процессе принятия решений возникает и ситуаций.
Пока все наши клиенты довольны.



Об объектах

Футбольный стадион, концепция
Футбольный стадион, концепция

Салехард, спортивный центр
Салехард, спортивный центр

Новая Анапа, жилой комплекс
Новая Анапа, жилой комплекс

Красногорск, жилой комплекс
Красногорск, жилой комплекс


В каких случаях мы принимаем участие в согласованиях


- Согласования цветовых решений, объемно-планировочных решений в комитете архитектуры Москвы или Московской области.


- Согласования принятый решений в государственной или негосударственной экспертизе.


- Согласования реконструкции или ремонта с Мосгорнаследие при работе с памятниками архитектуры.


Подробно о дизайн-проекте бутика
здесь