Найти в Дзене
Я - "недизайнер"

Перепланировка в панельной "трешке". Гардеробная vs постирочная

Перепланировка в "панельке". О чем, казалось бы, разговаривать? Несущие стены двигать нельзя, новые проемы прорубать нельзя, даже существующие расширять нельзя. Остаются только перегородки, вот на них и оторвемся и переругаемся с домочадцами не раз :)

Перепланировка в "панельке". О чем, казалось бы, разговаривать? Несущие стены двигать нельзя, новые проемы прорубать нельзя, даже существующие расширять нельзя. Остаются только перегородки, вот на них и оторвемся и переругаемся с домочадцами не раз :)

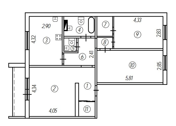
Первоначальный план квартиры:

Красным цветом выделены внутренние несущие стены, которые трогать нельзя.
Красным цветом выделены внутренние несущие стены, которые трогать нельзя.

Основные минусы, от которых хотелось бы избавиться:

-вход в гостиную напротив входа в квартиру;

- слишком много разнокалиберных дверей и проемов в холле.

Можно в подробностях рассмотреть в предыдущей статье.

Улучшения, которые хотелось бы внести:

- выделить гардеробную на входе (установка раздвижной перегородки);

- изолировать "грязную" входную зону, заложив существующий дверной проем в гостиную;

- включить гостиную в общее пространство (демонтаж 1/3 перегородки между прихожей и гостиной);

- присоединить кладовку к спальне (демонтировать существующую перегородку кладовки, выстроить новую, прорубить проем в перегородке спальни);

- переставить оборудование в санузлах.

И вот что получилось:

Так какой же был повод, чтобы переругаться с домочадцами?

Во-первых, меня не поддержало старшее поколение в части объединения гостиной и прихожей. По их мнению все комнаты должны быть изолированы. Главный аргумент :"А мало ли что..." А мне не хотелось иметь комнату, в которую в будни даже заходить никто не будет. Сейчас гостиная действительно включена в общее пространство и полноценно используется. В этом решении я не разочаровалась.

Во-вторых, у меня возник конфликт интересов уже с самой собой. И касается это превращения кладовки в гардеробную при спальне. С одной стороны, гардеробная-это очень удобно, в разы вместительнее и эргономичнее любого шкафа. В ней можно выделить место не только для одежды, но и для сумок, несезонной одежды и даже остатков стройматериалов. В гардеробную можно в конце концов просто зайти, закрыться и переодеться.

Шкаф же совсем не такой вместительный. Максимальная длина получилась бы 1.5 м. Для двух человек маловато, как мне кажется. Да еще эти вечно мешающиеся распашные дверки. Или, как альтернатива, поставить громоздкий шкаф-купе. Совершенно не греют душу такие варианты.

НО, иметь в квартире хоз.помещение, в которое можно поставить стиральную машину, хранить пылесос , отпариватель, мешок с сахаром, ящик с инструментами-тоже не помешало бы. Тем более, что в нашу кладовку можно без особых трудностей провести воду и канализацию, поскольку она находится рядом с ванной комнатой.

И после длительных раздумий "девочка" все же победила во мне "хозяйку". В нашей квартире будет гардеробная. Решено.

Если интересно, что будет дальше, ставьте лайки и подписывайтесь.