Добавить в корзинуПозвонить
Найти в Дзене
L. Design Studio

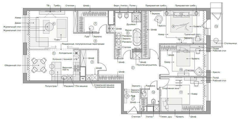
ОСНОВНЫЕ ПРАВИЛА ПЕРЕПЛАНИРОВКИ КВАРТИР

Приступая к перепланировке квартиры, нужно учитывать три ключевых аспекта – удобство эксплуатации, эстетичность и законность.
Когда все эти правила перепланировки учтены, помещение получается именно таким, как Вам хочется – комфортным и функциональным. При этом у Вас не будет сложностей с продажей квартиры, если планировка сделана по всем правилам и согласована.
Этот момент необходимо учитывать
Оглавление

Приступая к перепланировке квартиры, нужно учитывать три ключевых аспекта – удобство эксплуатации, эстетичность и законность.

Когда все эти правила перепланировки учтены, помещение получается именно таким, как Вам хочется – комфортным и функциональным. При этом у Вас не будет сложностей с продажей квартиры, если планировка сделана по всем правилам и согласована.

Этот момент необходимо учитывать всегда, даже если Вы прямо сейчас не задумываетесь о продаже недвижимости. Обстоятельства бывают разными и меняются очень быстро, поэтому стоит заранее позаботиться о том, чтобы перепланировка была законной и соответствовала всем нормам – иначе процесс продажи может затянуться на неопределенное время.

-2

Снос перегородок

Первое желание, которое возникает при появлении возможности передвинуть стены – сделать это прямо сейчас, немедленно. Для людей, выросших в жестких рамках и условиях квартир советского периода, это вполне естественно – хочется распорядиться полученным пространством по своему усмотрению, создать уникальный формат.

Чтобы перепланировка была законной, ее нужно проводить аккуратно, соблюдая порядок действий.

Убирать можно только те перегородки, которые не являются несущими – как правило, их толщина не превышает 10 см. При этом необходимо сверяться с планом, т.к. даже не несущие перегородки могут выступать в роли опор, принимающих на себя сверхнормативную нагрузку.

В любом случае, следует согласовать новую планировку без перегородок в БТИ и получить разрешение – это избавит Вас от недопониманий в будущем.

Создание дверных проемов

Проще всего делать проемы в стенах, которые не являются несущими – это безопасно. Такая деталь перепланировки не будет представлять опасности для других жильцов.

Тонкие перегородки можно вообще сносить целиком, и это никак не повлияет на безопасность сооружения по нормативам.

Если же Вам хочется сделать проем в несущей стене – это необходимо согласовать и зафиксировать в документах, иначе последствия могут быть очень печальными. В лучшем случае Вам придется заплатить штраф, в худшем – компенсировать все убытки, которые повлекла за собой подобная несогласованная перепланировка.

В среднем, чем выше этаж, тем больше шансов согласовать создание дверного проема в непредусмотренном месте. Это связано с тем, что на нижние этажи приходится максимальная нагрузка – поэтому их стены должны оставаться целыми.

Основное правило – проемы нельзя создавать на расстоянии ближе 80 см от стыков и ближе 100 см от несущей стены. Если стена несущая, проем в ней не может превышать 120 см – это касается квартир на всех этажах, даже последних.

Возведение перегородок

Создание новых перегородок – это намного более простой процесс с точки зрения согласования, по сравнению со сносом.

Если толщина перегородки менее 10 см, такое изменение планировки не обязательно согласовывать – достаточно просто уведомить жилинспекцию.

Если перегородка имеет толщину более 10 см – это уже полноценная стена, и ее вес будет значительным, что создает дополнительную нагрузку на фундамент и нижние этажи.

Все изменения следует фиксировать документально, т.к. ответственные органы должны быть осведомлены о том, какие изменения были произведены и как они могут повлиять на все здание.

Объединение балкона с комнатой

За счет балкона можно существенно увеличить полезную площадь квартиры. Самый простой вариант — утеплить балкон и обустроить его так, как хочется. Эту зону можно будет использовать почти весь год, за исключением самых сильных холодов.

Существует и более кардинальный вариант – сделать балкон продолжением комнаты или кухни. При этом удаляется вся входная группа, ведущая на балкон – дверь и окно. Такая перепланировка выглядит неоднозначно, и не всегда ее стоит делать. В большинстве случаев можно устроить на балконе отличную зону для отдыха или работы, не убирая двери. Если задуманная Вами переделка включает в себя подобное решение – его нужно согласовать, чтобы в дальнейшем не было вопросов по поводу законности изменений.

Расширение площади ванной комнаты

Ванная комната – это мокрая зона, которая должна находиться только там, где это предусмотрено застройщиком. Ванну или душевую кабину нельзя ставить в произвольном месте квартиры, чтобы не допустить протечки воды в условную спальню соседей снизу. В многоквартирных домах все мокрые зоны расположены строго друг над другом – это сделано именно для безопасности и минимизации ущерба в случае аварии.

Но если Вы все же хотите увеличить площадь ванной комнаты – это можно сделать за счет коридора, если планировка это позволяет. Важно, чтобы ванная комната была расширена именно за счет нежилого пространства, иначе согласовать новое решение не получится. Это общее правило для всех мокрых зон – ванных, санузлов, кухонь.  Их площадь можно увеличивать только за счет нежилых помещений – это правило обеспечивает безопасность соседей снизу.

Автор: Анна Лях, главный архитектор-дизайнер