Найти в Дзене
4living

Однушка в молодежном стиле

Как по мнению молодежи должно выглядеть современное жилье? Ответ на этот вопрос можно найти в проекте молодого архитектора из Казахстана.  Сведения о квартире: однокомнатная квартира площадью 33 кв. м в 16-этажном кирпичном доме в Усть-Каменогорске. Владельцы квартиры: молодая пара. Пожелания клиентов: современный молодежный интерьер.  План однокомнатной квартиры после перепланировки. Создавать дизайн-проект для друзей и легко, и одновременно трудно. С одной стороны, зная характер, увлечения и пристрастия своих клиентов, проще не ошибиться в выборе решения оформления квартиры. С другой стороны, клиенты приходят и уходят, а от друзей никуда не спрячешься, этот интерьер ты будешь наблюдать каждый раз, приходя к ним в гости. Этот проект — великолепный пример дизайна однокомнатной квартиры, над которым (сразу видно) трудились друзья — владельцы жилья и архитектор Дмитрий Григорьев. Проект изобилует интересными смелыми решениями — в гостевой зоне стены оклеены обоями с необычным расти

Как по мнению молодежи должно выглядеть современное жилье? Ответ на этот вопрос можно найти в проекте молодого архитектора из Казахстана.

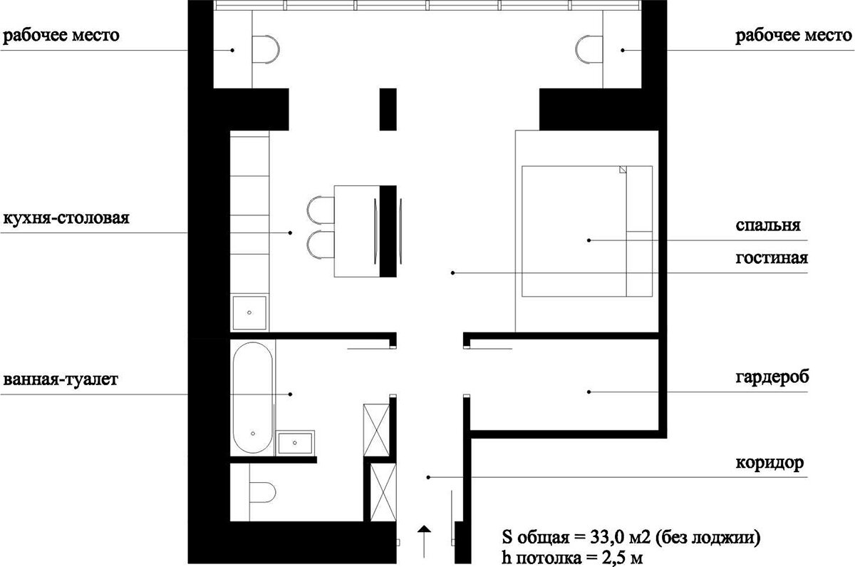
 Сведения о квартире: однокомнатная квартира площадью 33 кв. м в 16-этажном кирпичном доме в Усть-Каменогорске.

Владельцы квартиры: молодая пара.

Пожелания клиентов: современный молодежный интерьер. 

-2

План однокомнатной квартиры после перепланировки.

Создавать дизайн-проект для друзей и легко, и одновременно трудно. С одной стороны, зная характер, увлечения и пристрастия своих клиентов, проще не ошибиться в выборе решения оформления квартиры. С другой стороны, клиенты приходят и уходят, а от друзей никуда не спрячешься, этот интерьер ты будешь наблюдать каждый раз, приходя к ним в гости.

Этот проект — великолепный пример дизайна однокомнатной квартиры, над которым (сразу видно) трудились друзья — владельцы жилья и архитектор Дмитрий Григорьев. Проект изобилует интересными смелыми решениями — в гостевой зоне стены оклеены обоями с необычным растительным рисунком (сама природа пришла в дом). В ванной комнате тот же рисунок покрывает потолок и мебель, чистоту интерьера не портят радиаторы (все отопление спрятано под полом), интересно оформлено место для сна — настоящее «каменное ложе».

По цвету интерьер получился сдержанно строгий лишь с парой ярких акцентов в виде красного стула и покрывала. 

-3

В интерьере квартиры есть два объединяющих все помещения момента — наливной белый пол и рисунок на стенах или потолке в виде строя деревьев.

-4

В качестве зонирующего элемента выступает выстроенная перегородка, которая визуально разделяет две соседние зоны.

-5

После присоединения балкон стал частью жилого пространства.

-6

У каждого члена семьи есть свое рабочее место на территории бывшего балкона.

-7

Перегородка между гостиной-спальней и кухней с обеих сторон оборудована ТВ-плазмой.

-8

Кухонные фасады и столешница-фартук оформлены по контрасту — черный глянец и светлый натуральный камень.

-9

Это другой вариант расположения обеденного стола. Если установить его в проеме, то кухня станет намного просторнее.

-10

Одна из граней в кубе-кровати светится (интенсивность света можно регулировать), дополнительно в нее встроены часы, что превращает необычное ложе в настоящий арт-объект. 

-11

Ванная комната выдержана в стиле общей концепции — как таковой отделки стен нет, только специальная обработка и лак.

-12

Потолок в санузле выполнен из сегментов матового стекла с принтом под обои. Сам по себе весь потолок функционален и служит основным источником освещения.  © 4living.ru