Найти в Дзене
Пикабу

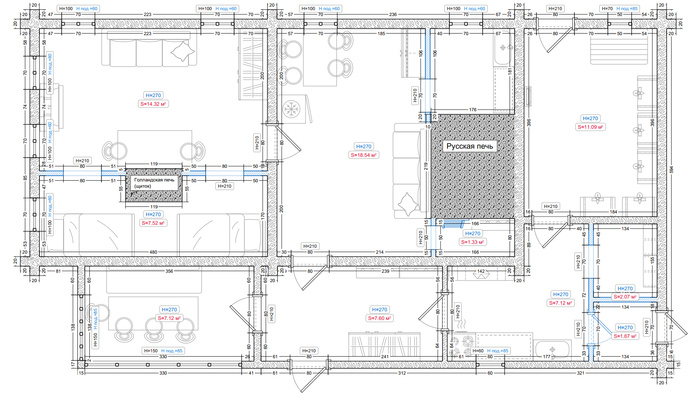
Пятистенок, как он есть

Пятистенок - деревянный том в виде прямоугольника, жилая площадь которого разделена поперечной, несущей, стенкой на две части.

Как правило внешние габариты таких срубов приближались к 6х12 м. Всё из-за того, что сложно найти деловую древесину, в товарных количествах, длиной более шести метров. Вот и рубили срубы, в нынешнем понимании "теплый контур", исходя из этих размеров. В дальнейшем стена со стороны входа обвязывалась т.н.мостом". Который объединял вспомогательные помещения "холодной" пристройки такие как: веранда, летняя кухня, кладовые и второй выход ведущий в хозяйственные помещения (овин, курятник и пр.)

Приведенная планировка дома мало отличается от 90% (или близко к этому значению) домов в деревнях Московской области.

Непременным атрибутом была русская печь. С щитком и лежанкой. В печи готовили, мыли детей, на ней спали (как правило дети и гости). Но отопление не было её основной функцией.

Об удобствах. Так как дом, планировку которого я нарисовал, построил мой дед то и кое-какой опыт проживания в нем я имею.

Туалет. (Пикабушникам вечно не хватает туалетов. Либо количества, либо их смущают "огромные" расстояния до него). ОДИН НА УЛИЦЕ. Хватало всем. Не припомню очередей или жалоб. Хотя бывали времена, когда единовременно проживало около десятка человек.

Вода. Водопроводная вода была только в одном месте - в маленькой кухне, около русской печи. В других местах, на летней кухне, в огороде, саду и бане, висели рукомойники.

Баня и душ. Баня стояла в 50-ти метрах от дома. Топилась, как минимум, два раза в неделю. Это для попариться. Но обмыться, простирнуть вещи можно было в любой день. (бельё вывешенное после стирки на мороз, через несколько дней становилось мягким и как же оно потом пахло...)

Отопление. Сколько себя помню в доме было очень тепло зимой и прохладно летом. Топили, в основном,Голландку" - закладка вечером и утром, по четыре полена. Даже после того как постоянных жителей в нем не осталось и русская печь была выведена из эксплуатации только "голландки" хватало для отопления всего "теплого контура" при -30 на улице.

Подписаться на Пикабу Познавательный. и Пикабу: Истории из жизни.