Найти в Дзене
DIVAN.RU

Лофт в маленькой студии: «голый» бетонный потолок и промышленные полы на 31 кв.м

Оглавление

Спальню в этой студии расположили на антресолях, а интерьер выстроили на контрастах. Заглянем в гости и посмотрим, что получилось.

  • Об объекте: студия 31 кв.м в г. Сочи
  • Автор проекта: дизайнер Михаил Шишкин; автор фото: Михаил Чекалов

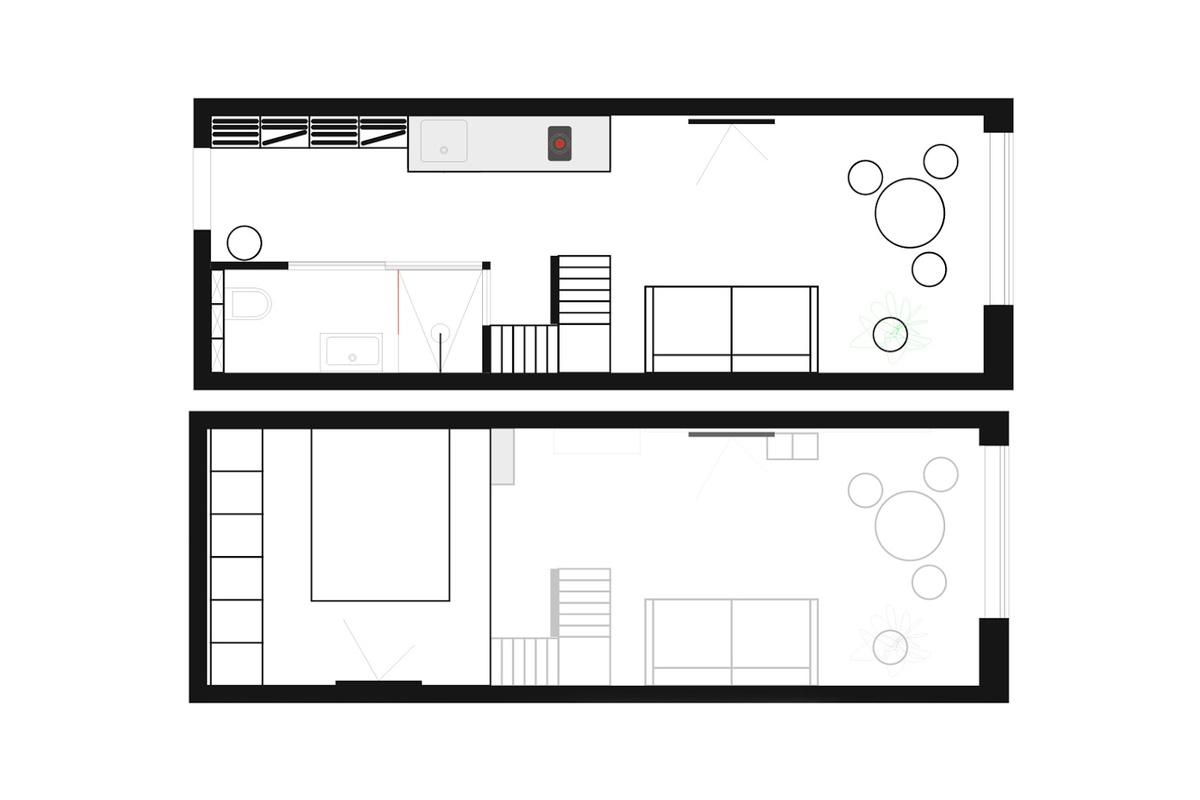
Планировочное решение

Высокие потолки (3,4 м) стали решающим фактором для возведения антресоли. Второй этаж увеличил полезную площадь студии на целых 12 кв.м. Кухню перенесли на противоположную стену, что сделало пространство более функциональным и уютным. Итогом работы дизайнеров стало объединение грубых и мягких текстур, которые идеально дополняют друг друга, создавая гармоничный интерьер.

Планировка и расстановка мебели
Планировка и расстановка мебели

Кухня-гостиная

Бетонный потолок не стали закрывать отделкой, стены покрыли краской, пол сделали наливным. В зоне кухни установили гарнитур с металлическими фасадами, столешницей и фартуком из нержавейки. Дизайнер сам наклеил стальные листы на фасады из МДФ — специалиста, готового взяться за такой заказ, найти не удалось.

Кухня укомплектована посудомойкой, СВЧ-печью, холодильником, двухконфорочной варочной панелью. От вытяжки отказались, так как квартира хорошо вентилируется и предполагается, что готовить здесь будут нечасто.

Прохладную палитру разбавили теплыми терракотовыми оттенками и плакатами современных художников в зоне гостиной. Атмосферу в комнате можно легко менять по настроению простым обновлением декора.

Диван Льери в бежевой обивке заказали на сайте divan.ru. Ткань выбрали в конструкторе мебели. Подобрали идеальное сочетание с кухонными фасадами.

➡️Товары бренда divan.ru

Владельцы часто обращаются к площадкам, таким как Авито, чтобы подобрать уникальные вещи — местные магазины обычно предлагают стандартные и скучные аксессуары. Винтажные предметы (ночник в виде гриба и старые вазы из полипропилена производства СССР) удалось найти на блошиных рынках. Постер над диваном купили у художника во время недели дизайна.

Место под лестницей решили использовать рационально и обустроили там дополнительные места для хранения, в том числе нишу для чемоданов. За перегородкой выделили место для стиральной машины.

-7

Спальня

Основной задачей проекта было создание полноценного спального места. Для этого была спроектирована антресоль над прихожей с металлическим основанием и ступенями, покрытыми нержавеющей сталью. Кровать устанавливать не стали, разместили удобный матрас и компактный шкаф для книг и личных вещей.

-8

Входная зона и санузел

Прихожая оборудована шкафом нестандартной глубины (40 см). В зоне у входной двери имеется подвесная часть с местом для обуви. Одна из секций используется для хранения кухонной утвари.

Входная дверь, выполненная из вишневого шпона, гармонирует с разделяющей перегородкой. Чтобы визуально увеличить пространство при входе, санузел сузили, вместо двери установили раздвижную перегородку. Благодаря этому решению солнечный свет проникает в санузел в течение дня, а вечерами специальная подсветка превращает его в роскошный светильник.

💥 Обновили курс на хиты хранения — успейте до 30.07 купить тумбы, комоды, витрины, стеллажи и шкафы со скидками до 60% на divan.ru >>

-10

==========

Оцените интерьер в комментариях, а если статья понравилась — не забудьте поставить лайк👍

🖤divan.ru — не только блог про интерьеры, но и производитель доступной дизайнерской мебели. Ищите новые идеи и переходите на сайт, чтобы воплотить их в жизнь.