Найти в Дзене

Еще один шикарный проект…

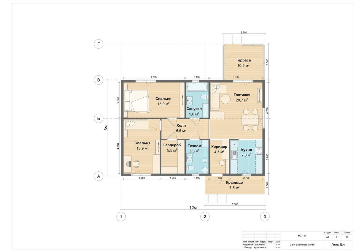
Представляем Вашему вниманию нашу новинку – проект «Оскар» общей площадью 103 м²! 

Дом по проекту «Оскар»
Дом по проекту «Оскар»

Этот проект идеально подойдет для небольшой семьи.

Давайте посмотрим, что внутри: 

  • гостиная-кухня 28 м²;
  • 2 спальни по  15 и 14 м²;
  • гардеробная 5,5 м²;
  • ванная 5,6 м²;
  • терраса 10 м² и крыльцо 7,5 м²
-2

Цена этого дома составляет 4.990.000 рублей без скидок! 

Понравился дом? Ставь 👍