Найти в Дзене
INMYROOM

6 крутых идей для малогабаритки, подсмотренных в крошечной студии 20 м²

Оглавление

Вдохновляйтесь и берите на заметку интересные идеи из проекта

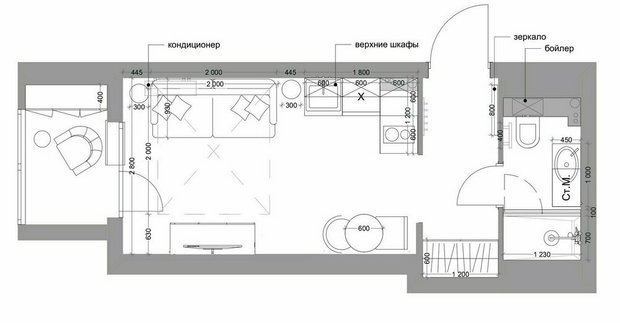
Площадь этой студии — всего 20 кв. м. Однако дизайнеру Марии Саблиной удалось спроектировать в ней уютный интерьер с атмосферой загородного дома и обустроить все необходимые функциональные зоны. Показываем классные идеи из проекта, которые точно достойны вашего внимания.

 📷
📷

1. Сочетание контрастных элементов

Одной из ключевых особенностей интерьера стало гармоничное сочетание контрастных элементов. Дизайнер использовала разнообразные материалы, фактуры и оттенки. Игра четких линий на ковре, скатерти и фартуке в сочетании с мягкими, плавными формами принтов в картинах и занавесках придает интерьеру динамичность и индивидуальность.

 📷
📷

2. Объединение пространства

Одним из значимых изменений стало удаление дверного проема из прихожей. Вместо традиционного зонирования пространства дизайнер предпочла его объединение. Это решение значительно расширило визуальные границы и значительно улучшило функционал комнаты.

 📷
📷

3. Отказ от верхних шкафов

Смелое решение — отказ от верхних шкафов на одной из стен кухни. Благодаря этому потолки кажутся выше, а комната не выглядит перегруженной. Такой подход позволяет создать легкость и воздушность, которые так необходимы в малогабаритной квартире.

 📷
📷

4. Скрытые бытовые приборы

Чтобы оптимально использовать скромные метры, технику выбрали негабаритную. Маленький холодильник скрыли под столешницей гарнитура за шторкой, обеспечивающей функциональность и эстетическое единство пространства. Таким же образом скрыли стиральную машинку в санузле — это решение не только бюджетное, но и красивое: дополнительная драпировка смотрится очень мило и добавляет уют.

 📷
📷

5. Раскладной диван

Вместо большой кровати был выбран раскладной диван, который идеально подходит для малогабаритной квартиры. Он экономит пространство и в зависимости от необходимости может служить для отдыха, размещения гостей, для дневного или ночного сна.

 📷
📷

6. Продуманное хранение

Отказавшись от громоздких систем хранения, дизайнер спроектировала нишу для шкафа-купе в холле и добавила комод под ТВ в комнате, а на балконе предусмотрела хозяйственный шкафчик. Такой подход помогает сохранить чистоту и порядок в пространстве без излишней нагрузки.

 📷
📷

Малогабаритные квартиры могут стать стильными и удобными, если использовать креативный подход к их оформлению. Применение нестандартных решений позволит эффективно использовать каждый квадратный метр и создать уникальное пространство, которое будет отражать личность владельца.

Сейчас читают: